26/0019/FUL
Middlesbrough Council
Status
Pending Consideration
House extension
Received
16 Jan 2026
New homes
0
Full proposal
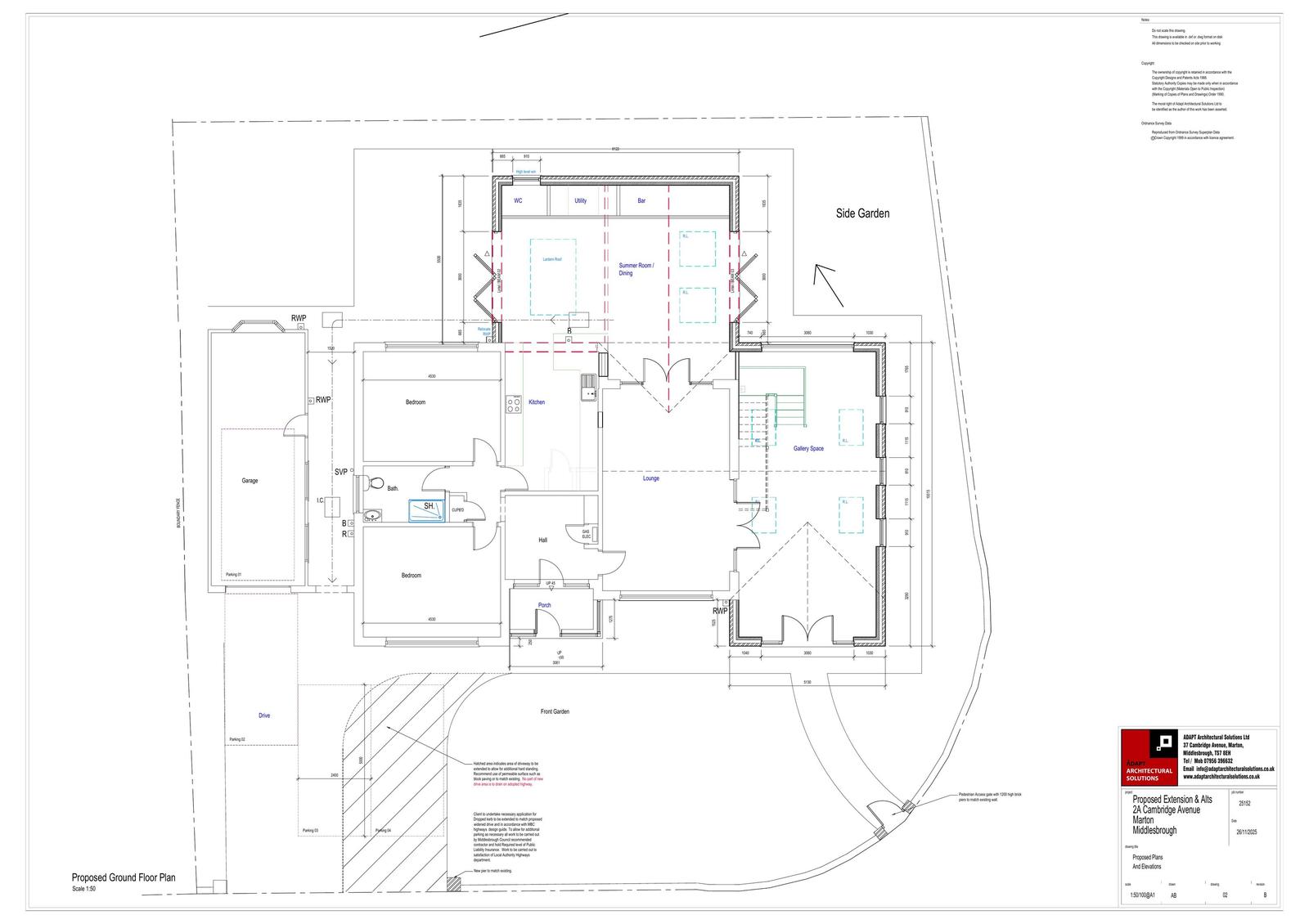
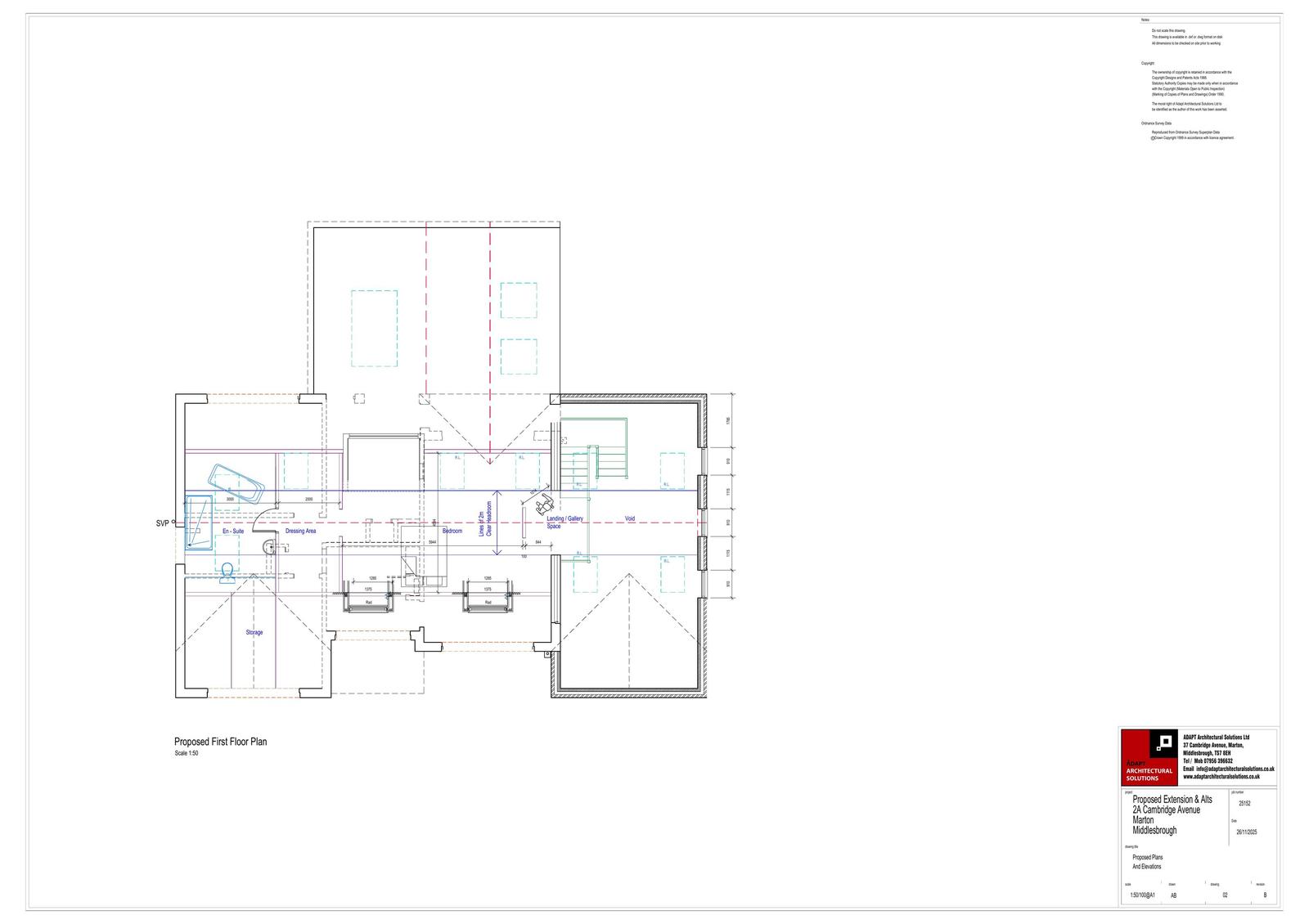
Single storey extension to side and rear, replacement of existing roof with increased ridge height, dormer to rear and roof windows to front and rear, erection of porch to front and installation of new pedestrian gate access and widening driveway (Demolition of existing porch)
Documents
Have your say
Your comment matters. Councils must consider every representation that raises material planning considerations.