← Middlesbrough Council

Status

Pending Consideration Change of use
Received
30 Jan 2026
New homes
0

Full proposal

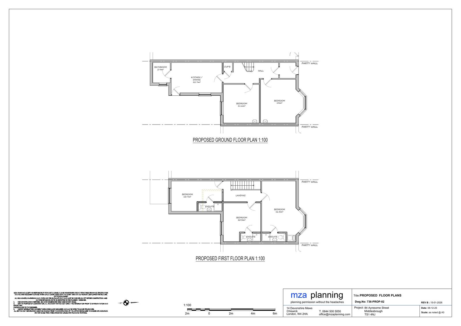
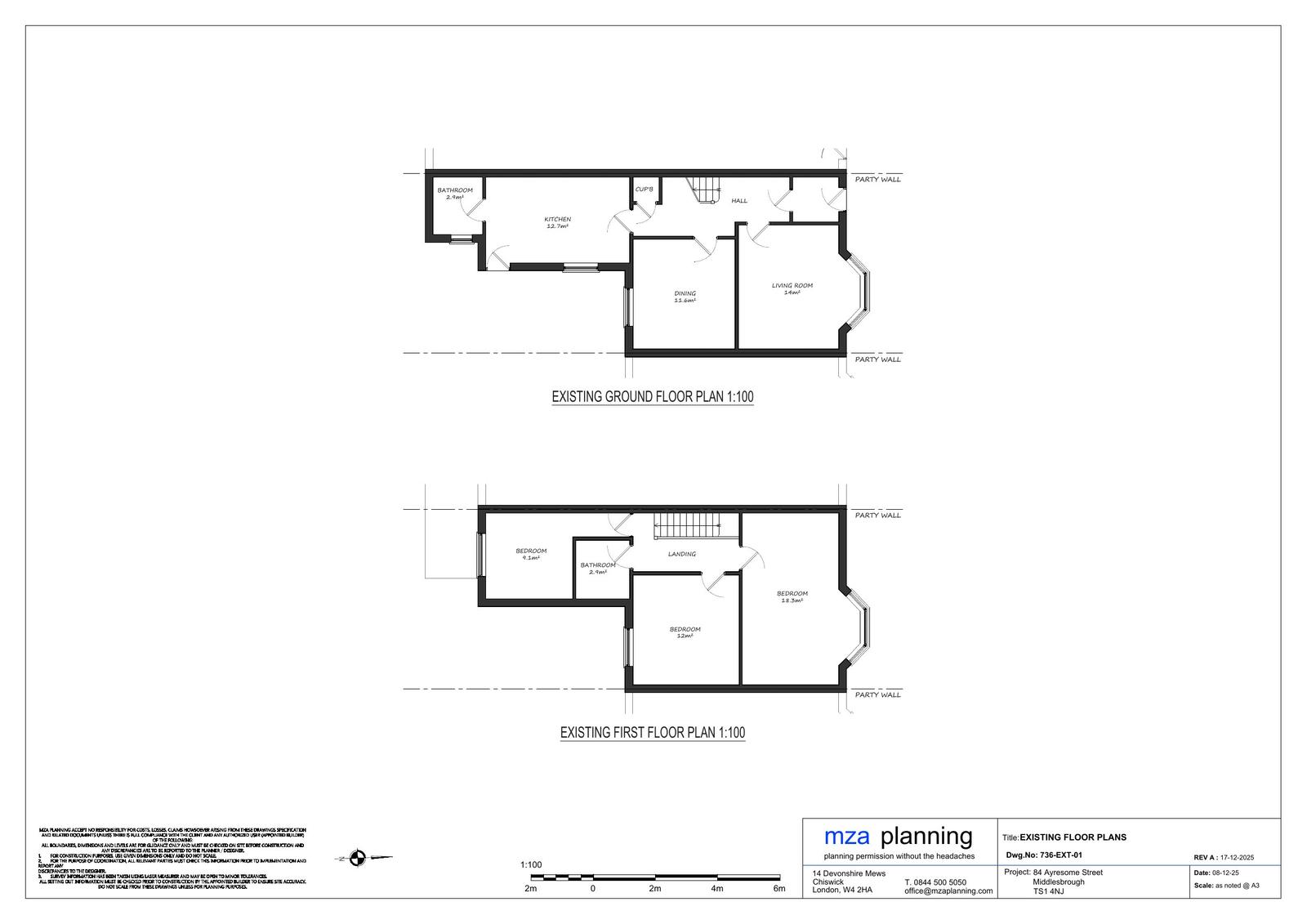
Change of use from Dwelling (Use class C3) to HMO (Use class C4)

Documents

Application Form
Archived · Original link
Consultation Notification List
Archived · Original link
Drawing
Archived · Original link
Neighbour Notification List
Archived · Original link
Supporting Documents
Archived · Original link

Have your say

Your comment matters. Councils must consider every representation that raises material planning considerations.

Write a comment