← Middlesbrough Council

Status

Pending Consideration Change of use
Received
Last month
New homes
0

Full proposal

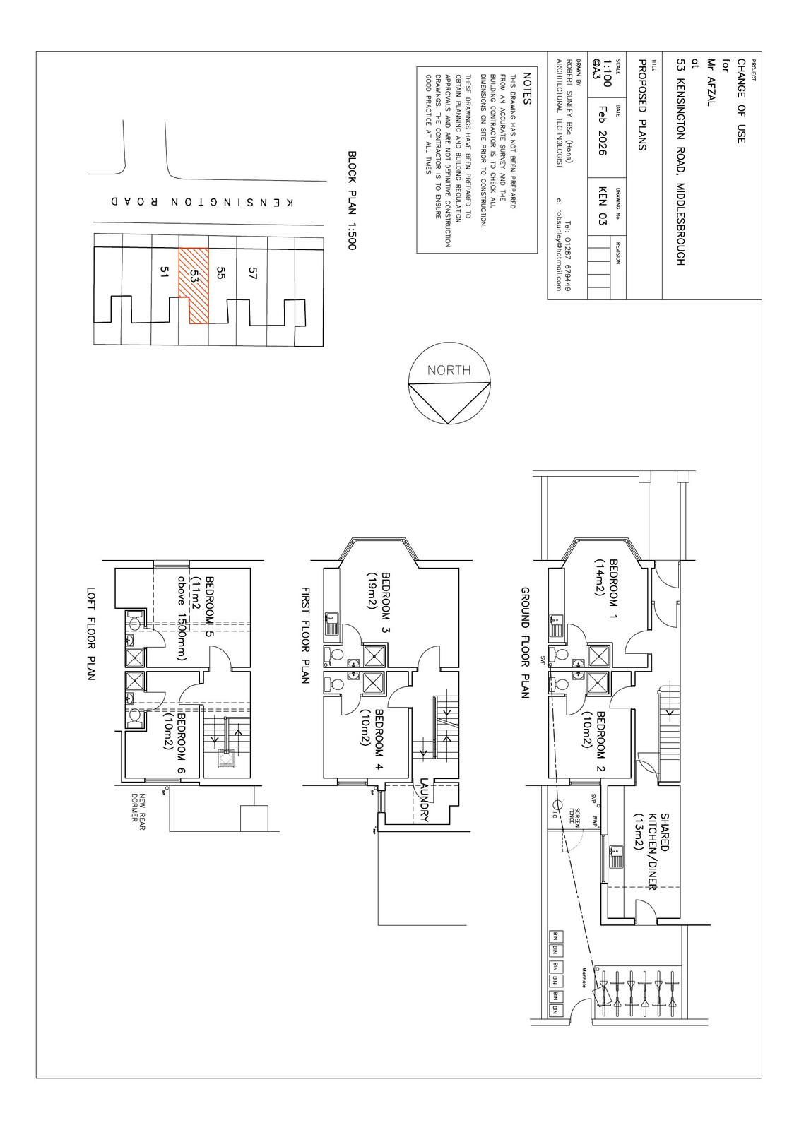
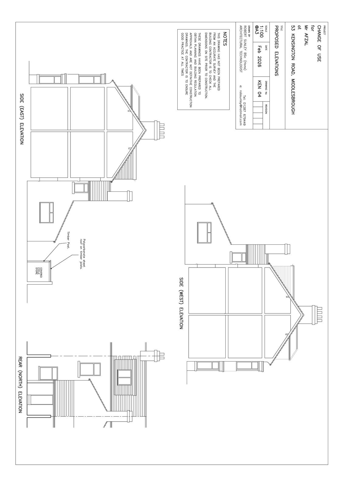
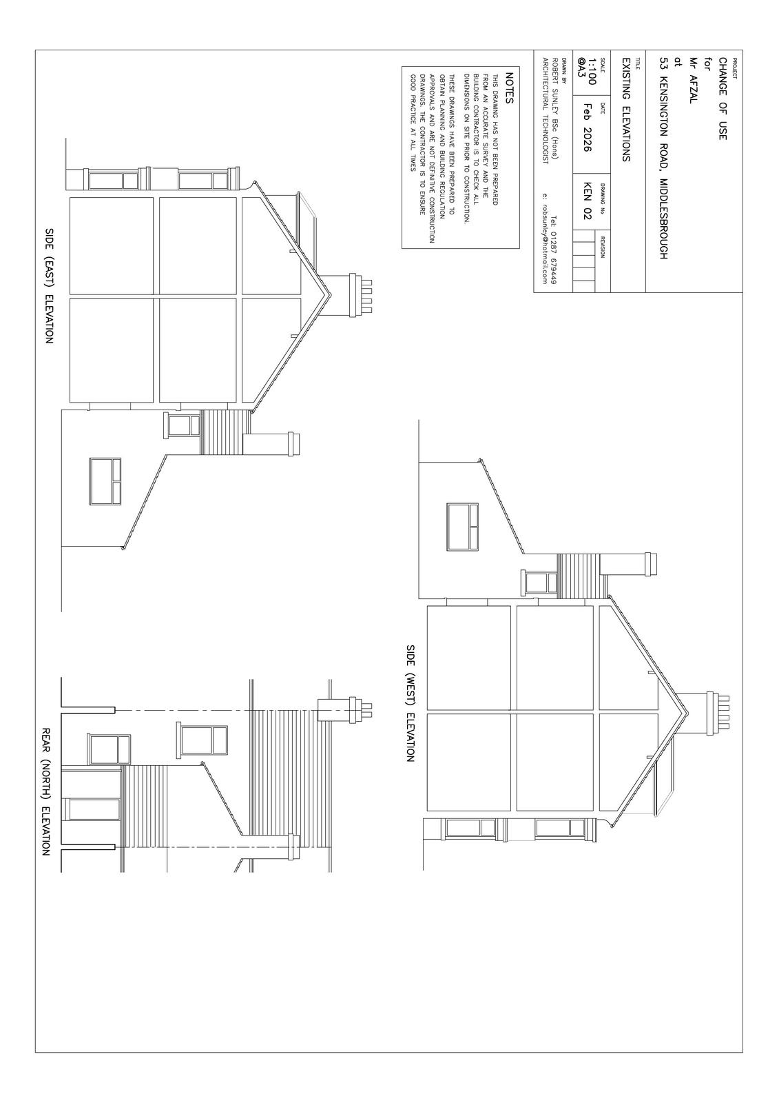
Retrospective change of use and conversion of 4 bedroom dwelling to 6 bed HMO and proposed erection of dormer to rear

Have your say

Your comment matters. Councils must consider every representation that raises material planning considerations.

Write a comment