26/0087/PNH
Middlesbrough Council
Status
Pending Consideration
House extension
Received
Last month
New homes
0
Full proposal
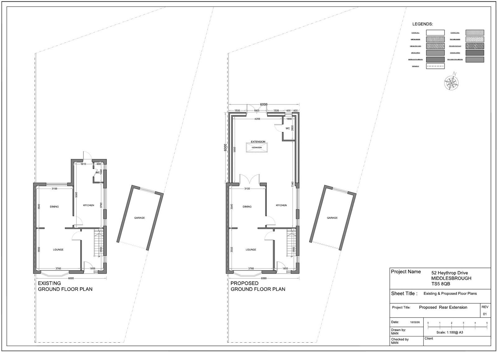
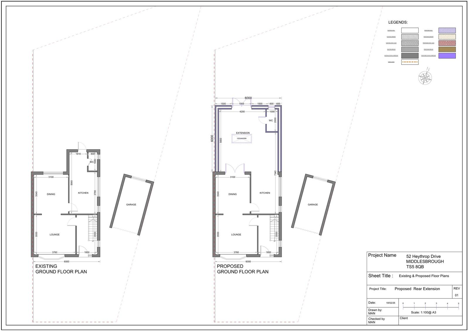
Single storey extension to rear (Eaves 2.80m, Length 6m, Height 3m) (Demolition of existing single storey extension)
Documents
Have your say
Your comment matters. Councils must consider every representation that raises material planning considerations.