← Middlesbrough Council

Status

Pending Consideration House extension
Received
Last month
New homes
0

Full proposal

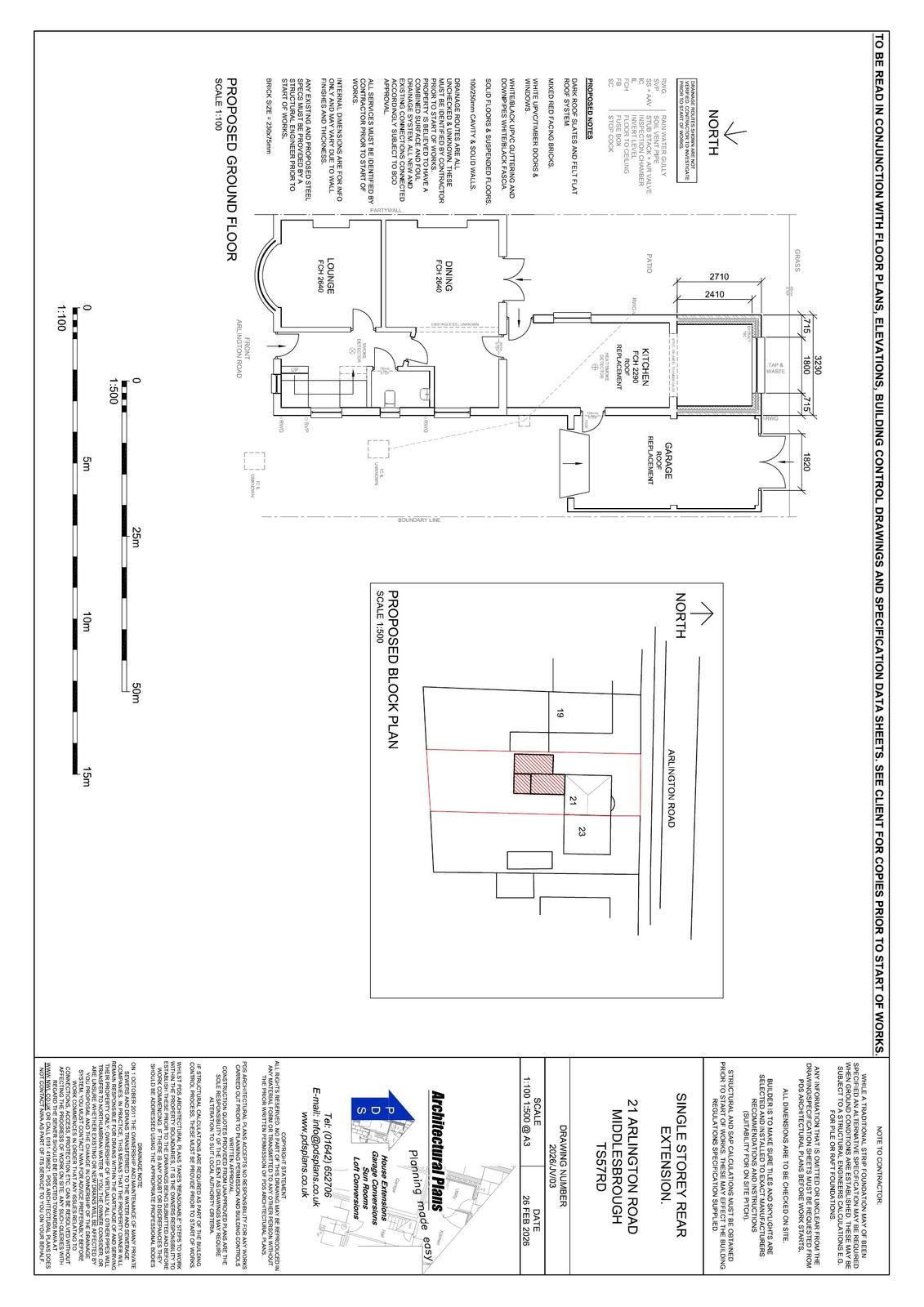
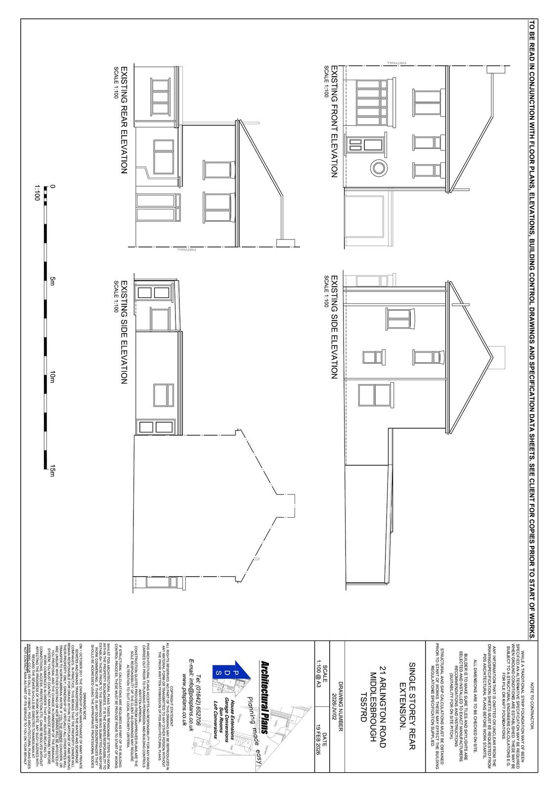
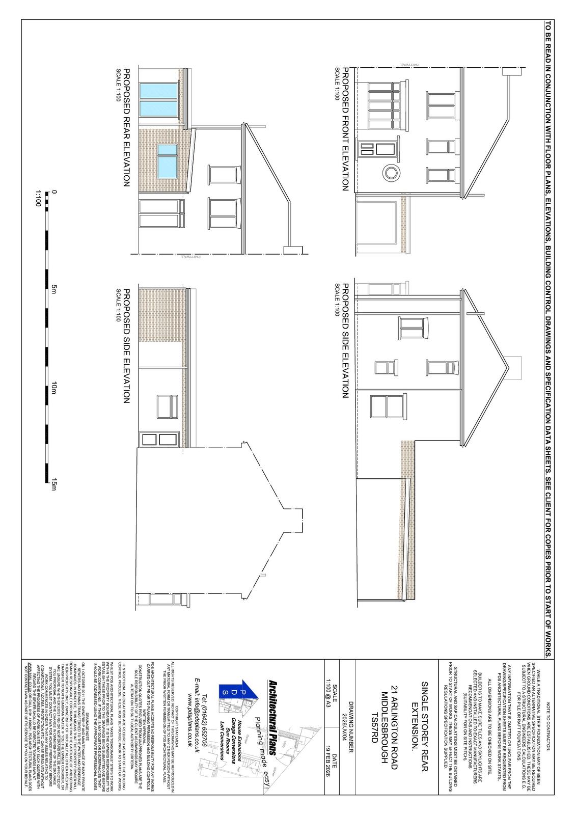
Single storey extension to rear and replacement of garage and existing rear extension roof to flat roof

Documents

Application Form
Archived · Original link
Consultation Notification List
Archived · Original link
Drawing
Archived · Original link
Drawing
Archived · Original link
Drawing
Archived · Original link
Neighbour Notification List
Archived · Original link
Drawing
Archived · Original link
Drawing
Archived · Original link

Have your say

Your comment matters. Councils must consider every representation that raises material planning considerations.

Write a comment