← Milton Keynes City Council

Status

Pending House extension
Received
Not recorded
New homes
0

Full proposal

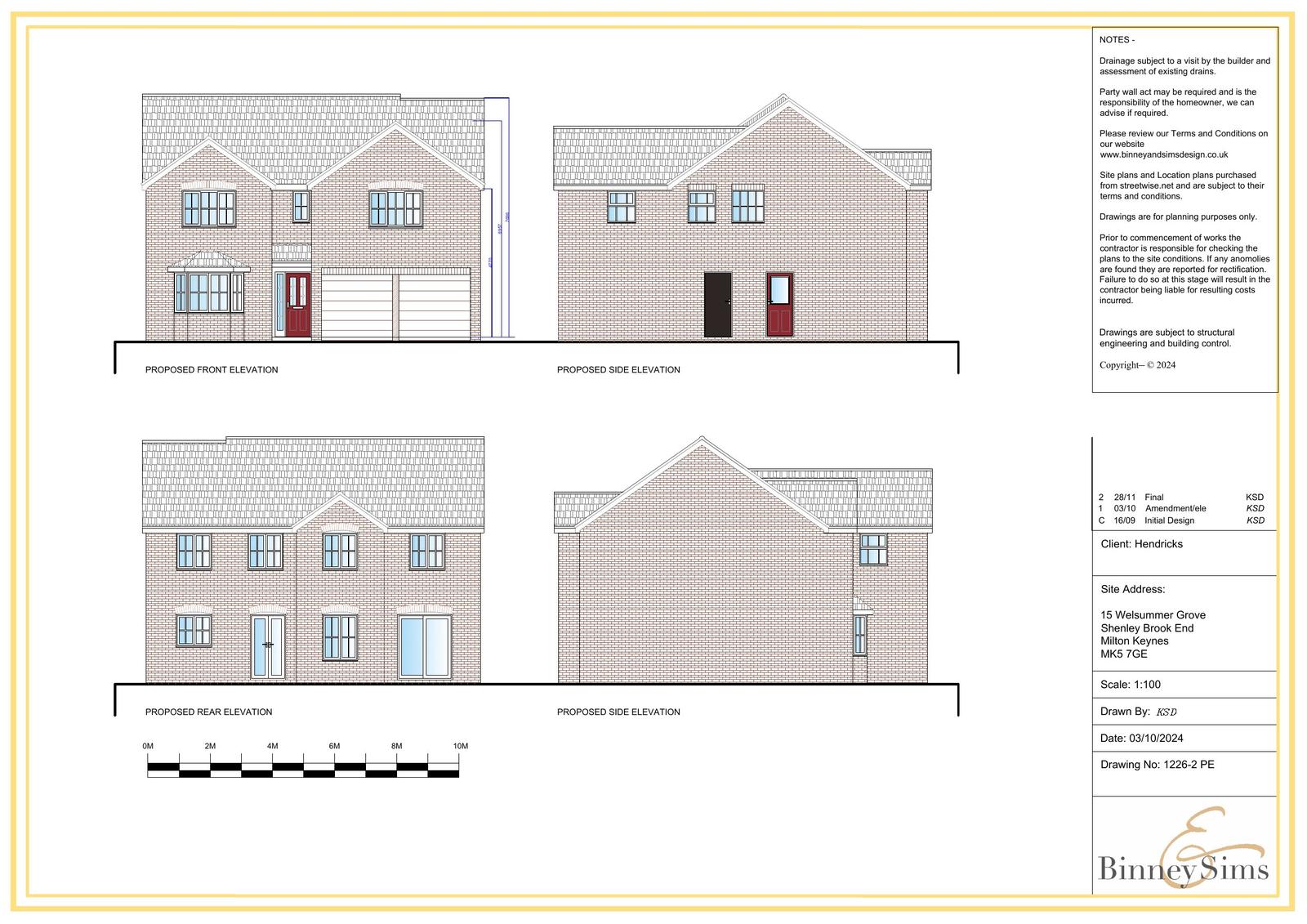
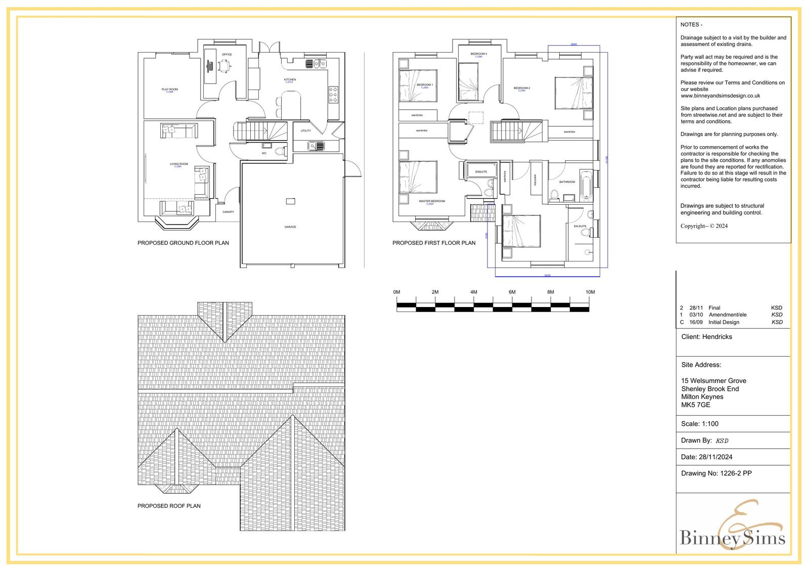
Reference PLN/2024/2618 Application type Householder planning permission Site address 15 WELSUMMER GROVE, SHENLEY BROOK END, MILTON KEYNES, MK5 7GE Description The erection of a first floor side and front extension Status Decision Made Decision Withdrawn

Documents

Uncategorised
Archived · Original link
Uncategorised
Archived · Original link
Uncategorised
Archived · Original link
Uncategorised
Archived · Original link
Uncategorised
Archived · Original link
Uncategorised
Archived · Original link
Uncategorised
Archived · Original link

Have your say

Your comment matters. Councils must consider every representation that raises material planning considerations.

Write a comment