← Milton Keynes City Council

Status

Pending New housing
Received
Not recorded
New homes
1

Full proposal

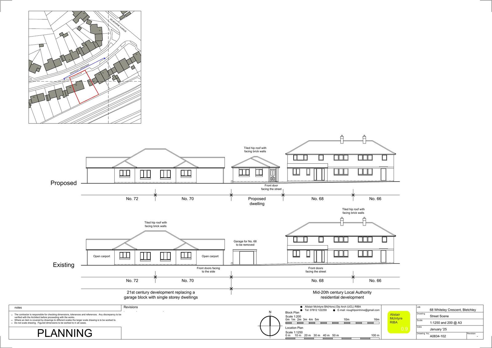
Reference PLN/2024/2728 Application type Full planning permission Site address 68 Whiteley Crescent, Bletchley, Milton Keynes, MK3 5DG Description Demolition of garage and the erection of a detached single storey dwelling and extended vehicle crossover Status Decision Made Decision Approved with Conditions

Documents

Uncategorised
Archived · Original link
Uncategorised
Archived · Original link
Uncategorised
Archived · Original link
Uncategorised
Archived · Original link
Uncategorised
Archived · Original link
Uncategorised
Archived · Original link
Uncategorised
Archived · Original link

Have your say

Your comment matters. Councils must consider every representation that raises material planning considerations.

Write a comment