← Milton Keynes City Council

Status

Pending Change of use
Received
Not recorded
New homes
0

Full proposal

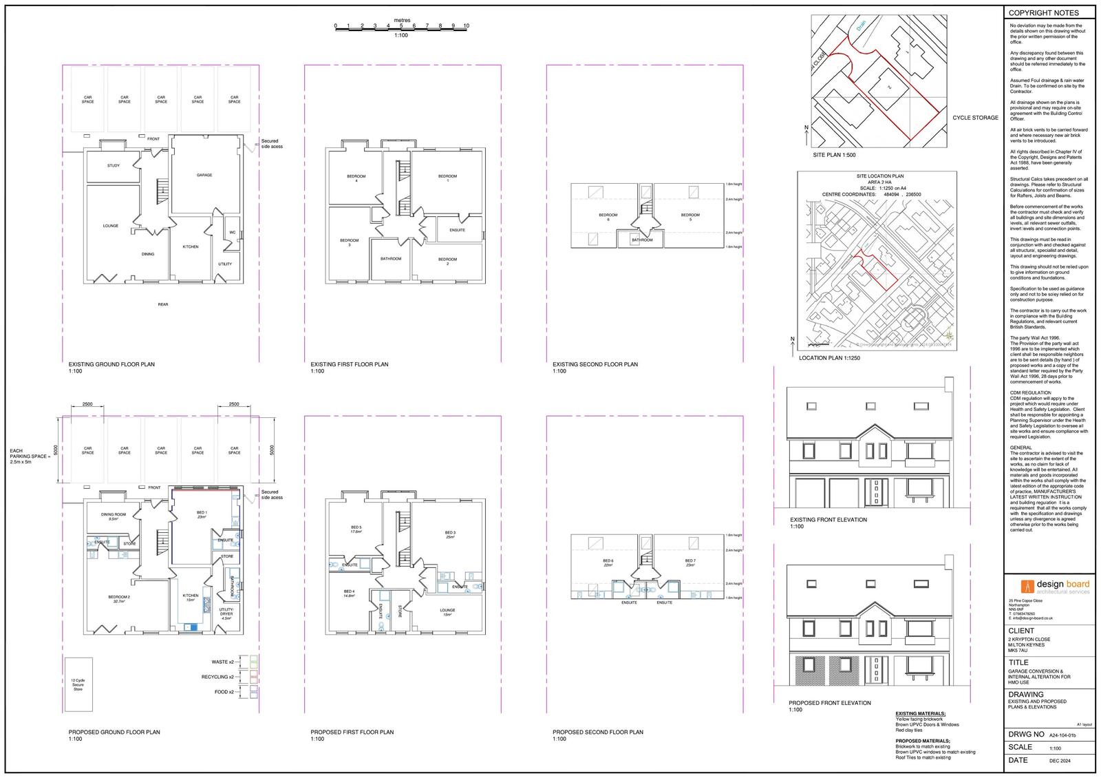
Reference PLN/2024/2755 Application type Full planning permission Site address 2 KRYPTON CLOSE, SHENLEY LODGE, MILTON KEYNES, MK5 7AU Description Change of use from dwelling house (Use Class C3) to 7 no. bedroom HMO (Sui Generis) with Garage Conversion Status Decision Made Decision Approved with Conditions

Documents

Uncategorised
Archived · Original link
Uncategorised
Archived · Original link
Uncategorised
Archived · Original link
Uncategorised
Archived · Original link
Uncategorised
Archived · Original link
Uncategorised
Archived · Original link
Uncategorised
Archived · Original link
Uncategorised
Archived · Original link
Uncategorised
Archived · Original link
Uncategorised
Archived · Original link
Uncategorised
Archived · Original link
Uncategorised
Archived · Original link
Uncategorised
Archived · Original link
Uncategorised
Archived · Original link

Have your say

Your comment matters. Councils must consider every representation that raises material planning considerations.

Write a comment