← Milton Keynes City Council

Status

Pending Commercial
Received
Not recorded
New homes
0

Full proposal

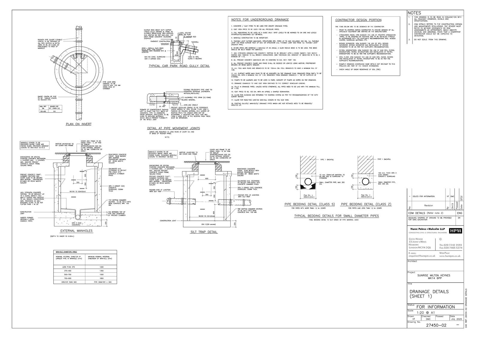
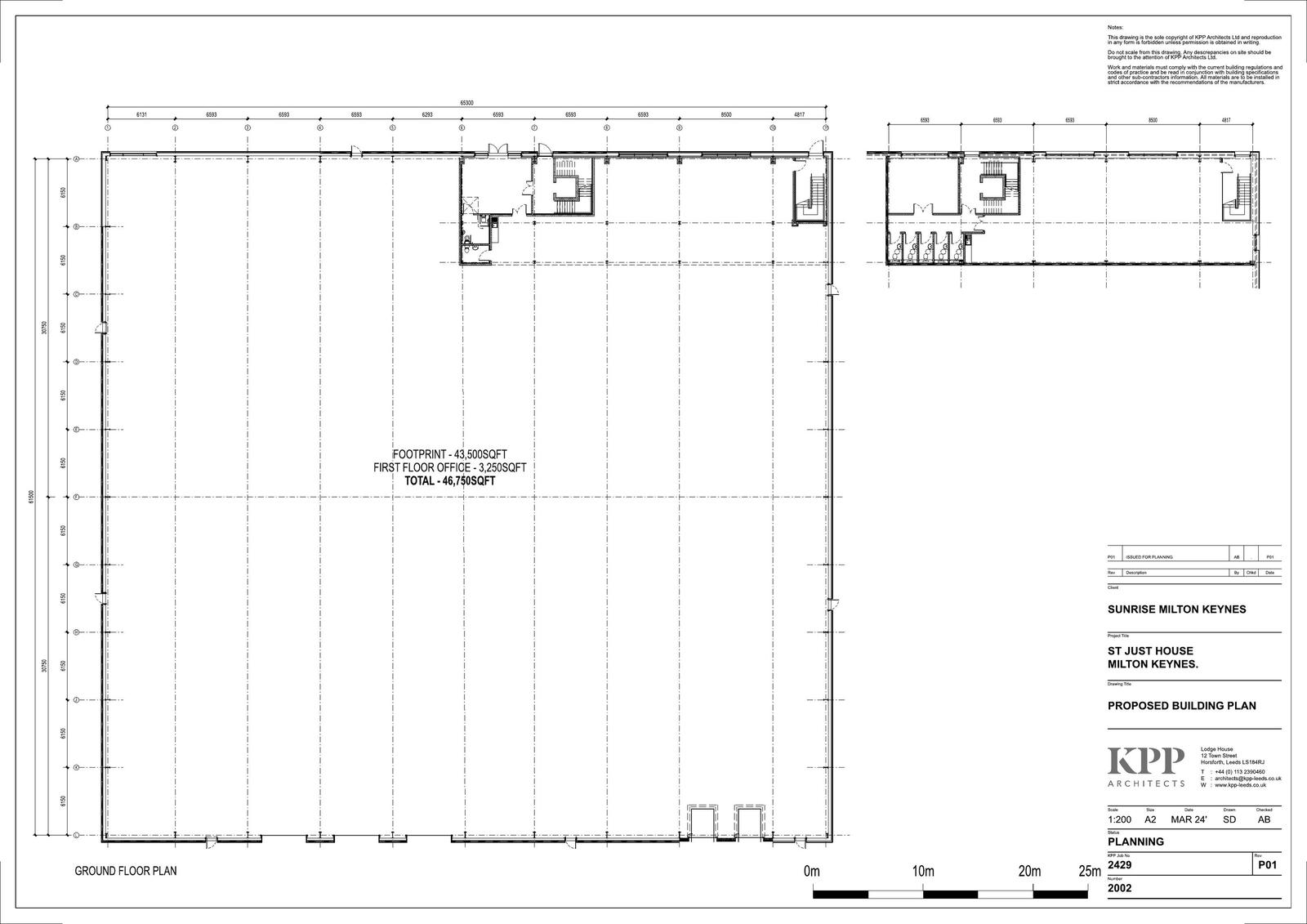
Reference PLN/2024/2762 Application type Full planning permission Site address St Justs House, Sunrise Parkway, Linford Wood, Milton Keynes, MK14 6PP Description Retrospective demolition of existing commercial building (use class B8), and the proposed erection of a replacement commercial development comprising Use Class B8 (Storage and Distribution), E(g) (ii) (Research and Development) and E(g) (iii) (Light Industrial) along with ancillary offices, service yard, access and parking Status Under Consultation Decision

Documents

Uncategorised
Archived · Original link
Uncategorised
Archived · Original link
Uncategorised
Archived · Original link
Uncategorised
Archived · Original link
Uncategorised
Archived · Original link
Uncategorised
Archived · Original link
Uncategorised
Archived · Original link
Uncategorised
Archived · Original link
Uncategorised
Archived · Original link
Uncategorised
Archived · Original link
Uncategorised
Archived · Original link
Uncategorised
Archived · Original link
Uncategorised
Archived · Original link
Uncategorised
Archived · Original link
Uncategorised
Archived · Original link
Uncategorised
Archived · Original link
Uncategorised
Archived · Original link
Uncategorised
Archived · Original link
Uncategorised
Archived · Original link
Uncategorised
Archived · Original link

Have your say

Your comment matters. Councils must consider every representation that raises material planning considerations.

Write a comment