← Milton Keynes City Council

Status

Pending House extension
Received
Not recorded
New homes
0

Full proposal

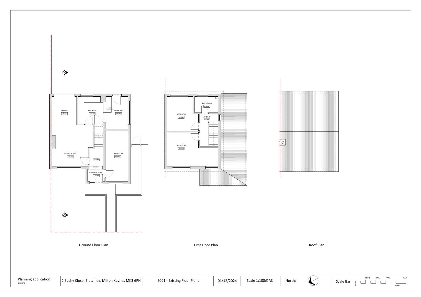
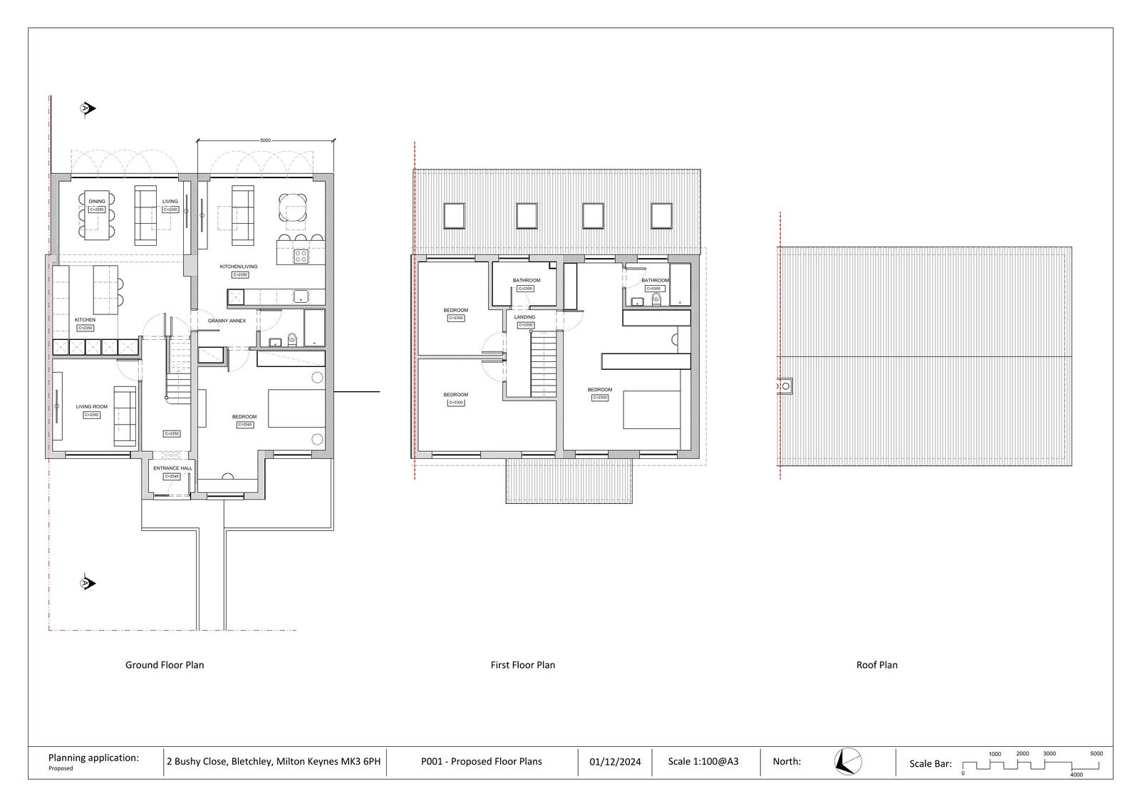
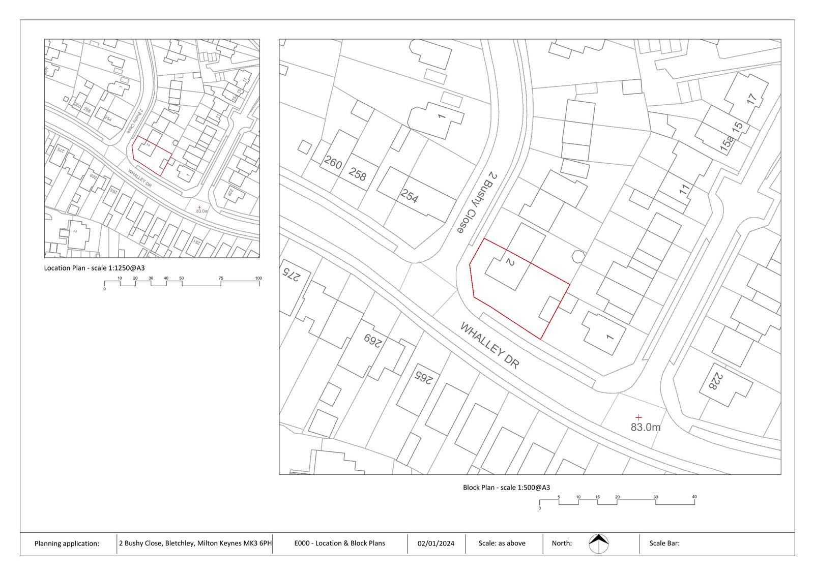
Reference PLN/2025/0004 Application type Householder planning permission Site address 2 Bushy Close, Bletchley, Milton Keynes, MK3 6PH Description Demolition of side extension and replacement with a double storey side extension and single storey rear extension Status Decision Made Decision Refused

Documents

Uncategorised
Archived · Original link
Uncategorised
Archived · Original link
Uncategorised
Archived · Original link
Uncategorised
Archived · Original link
Uncategorised
Archived · Original link
Uncategorised
Archived · Original link
Uncategorised
Archived · Original link
Uncategorised
Archived · Original link
Uncategorised
Archived · Original link
Uncategorised
Archived · Original link

Have your say

Your comment matters. Councils must consider every representation that raises material planning considerations.

Write a comment