← Milton Keynes City Council

Status

Pending House extension
Received
Not recorded
New homes
0

Full proposal

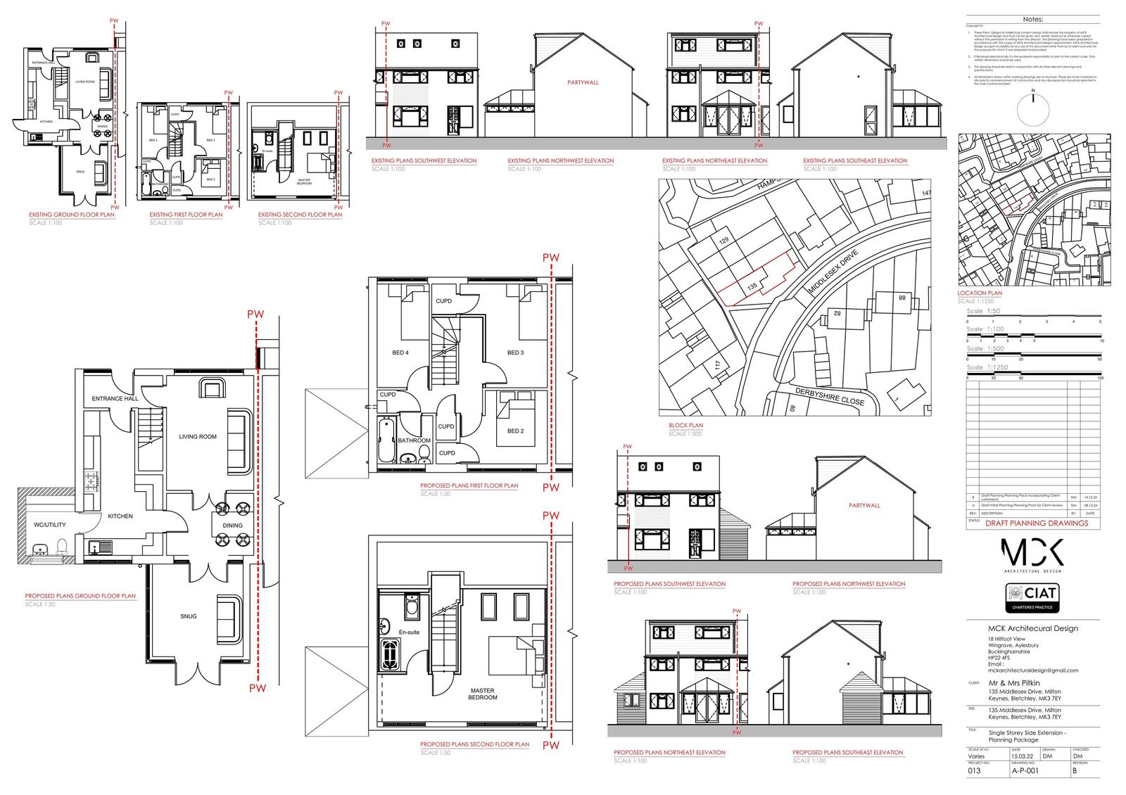
Reference PLN/2025/0007 Application type Householder planning permission Site address 135 MIDDLESEX DRIVE, BLETCHLEY, MILTON KEYNES, MK3 7EY Description The erection of a proposed single storey side extension Status Decision Made Decision Approved with Conditions

Documents

Uncategorised
Archived · Original link
Uncategorised
Archived · Original link
Uncategorised
Archived · Original link
Uncategorised
Archived · Original link
Uncategorised
Archived · Original link
Uncategorised
Archived · Original link
Uncategorised
Archived · Original link

Have your say

Your comment matters. Councils must consider every representation that raises material planning considerations.

Write a comment