← Milton Keynes City Council

Status

Pending House extension
Received
Not recorded
New homes
0

Full proposal

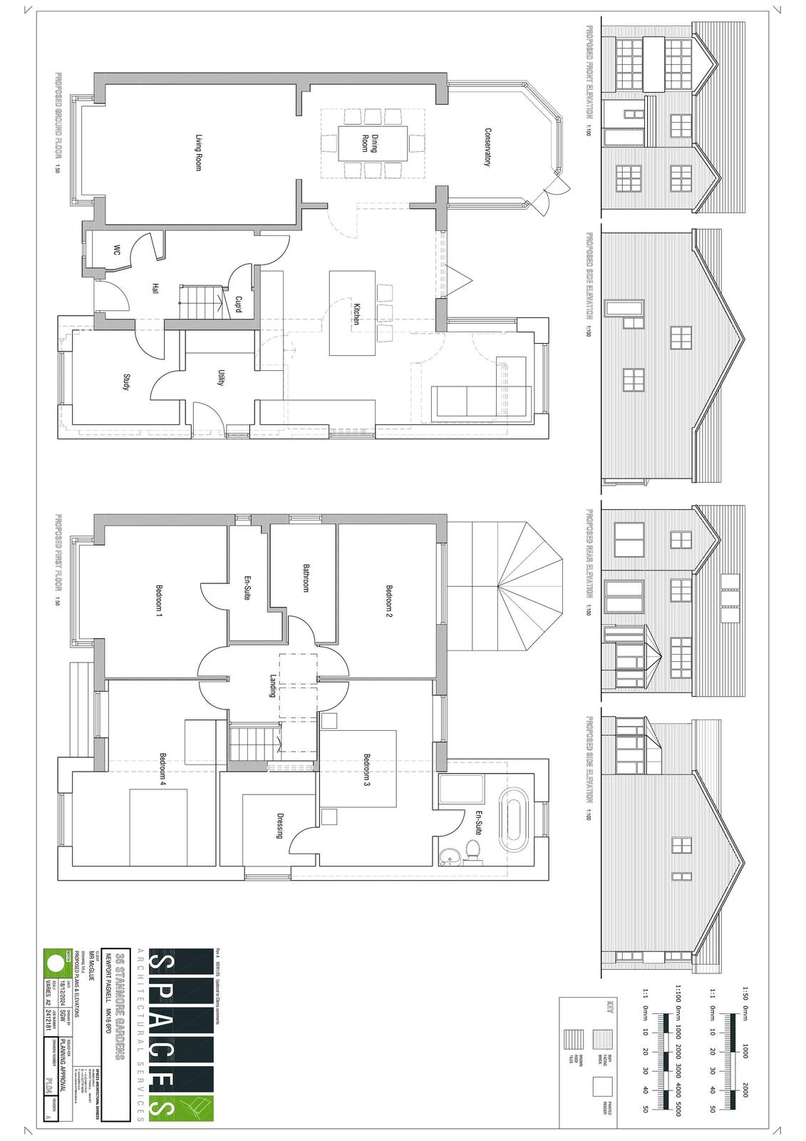
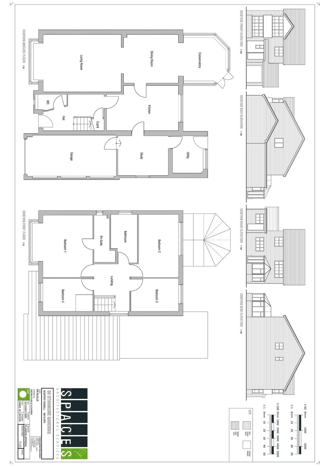
Reference PLN/2025/0026 Application type Householder planning permission Site address 36 STANMORE GARDENS, NEWPORT PAGNELL, MK16 0PD Description The erection of a first floor side and front extension over existing garage, garage conversion and two storey rear extension Status Decision Made Decision Refused

Documents

Uncategorised
Archived · Original link
Uncategorised
Archived · Original link
Uncategorised
Archived · Original link
Uncategorised
Archived · Original link
Uncategorised
Archived · Original link
Uncategorised
Archived · Original link
Uncategorised
Archived · Original link

Have your say

Your comment matters. Councils must consider every representation that raises material planning considerations.

Write a comment