← Milton Keynes City Council

Status

Pending Change of use
Received
Not recorded
New homes
0

Full proposal

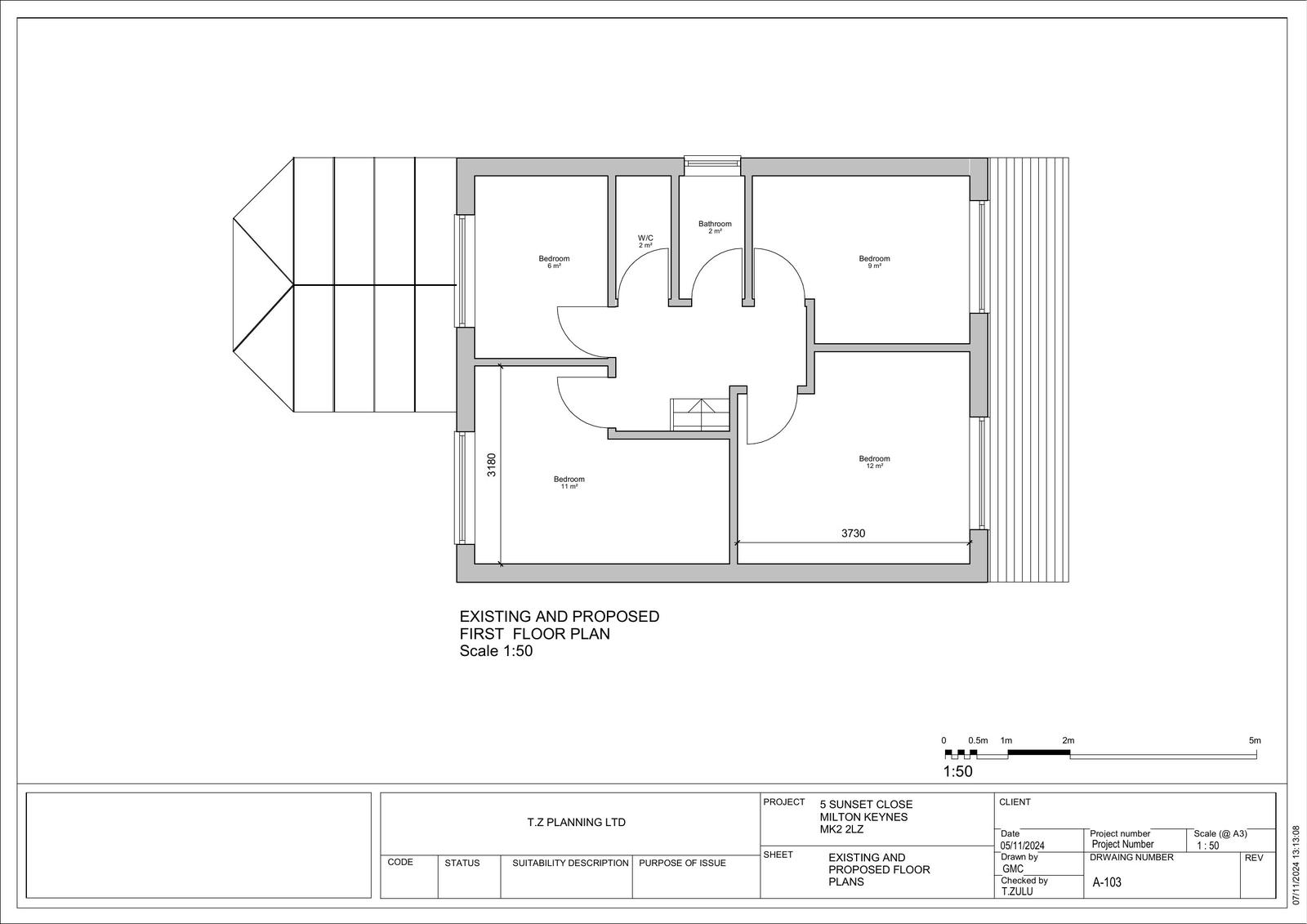
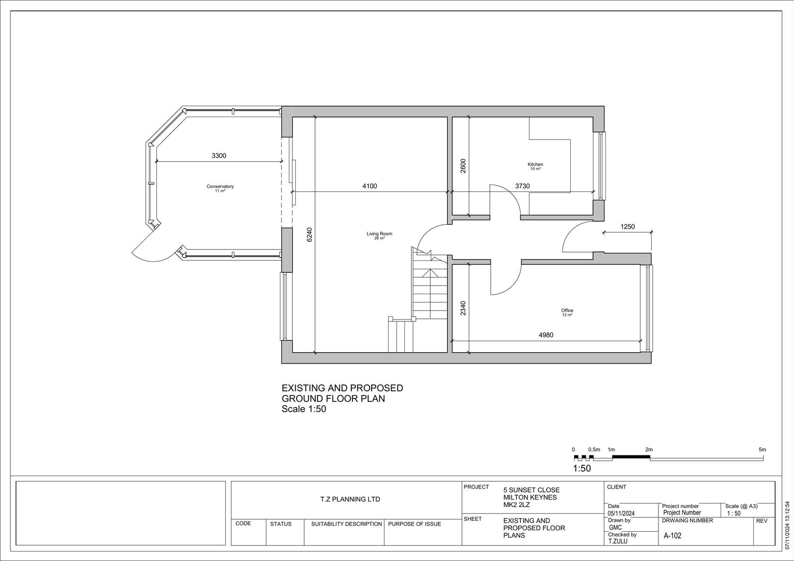
Reference PLN/2025/0027 Application type Full planning permission Site address 5 SUNSET CLOSE, BLETCHLEY, MILTON KEYNES, MK2 2LZ Description Change of use from C3 dwelling to C2 childrens home for a maximum of 3 children aged between 7 and 17 year old. Status Decision Made Decision Approved with Conditions

Documents

Uncategorised
Archived · Original link
Uncategorised
Archived · Original link
Uncategorised
Archived · Original link
Uncategorised
Archived · Original link
Uncategorised
Archived · Original link
Uncategorised
Archived · Original link
Uncategorised
Archived · Original link
Uncategorised
Archived · Original link
Uncategorised
Archived · Original link
Uncategorised
Archived · Original link
Uncategorised
Archived · Original link

Have your say

Your comment matters. Councils must consider every representation that raises material planning considerations.

Write a comment