← Milton Keynes City Council

Status

Pending House extension
Received
Not recorded
New homes
0

Full proposal

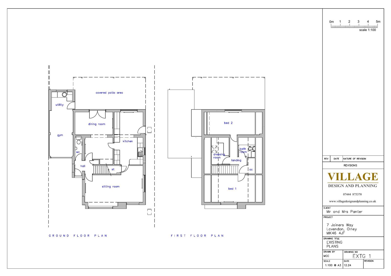
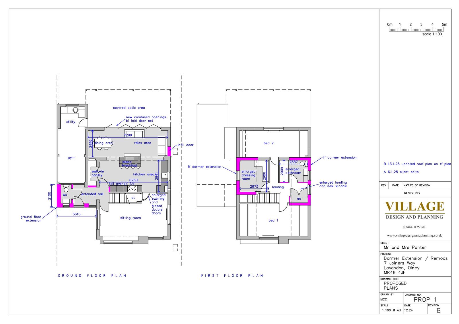
Reference PLN/2025/0054 Application type Householder planning permission Site address 7 JOINERS WAY, LAVENDON, OLNEY, MK46 4JF Description The installation of two side dormer extensions, a ground floor front and side extension and application of render and cladding to front and side elevations. New multi-fold doors to rear elevation, replacement of first floor window on front elevation and removal of door on ground floor side elevation Status Decision Made Decision Approved with Conditions

Documents

Uncategorised
Archived · Original link
Uncategorised
Archived · Original link
Uncategorised
Archived · Original link
Uncategorised
Archived · Original link
Uncategorised
Archived · Original link
Uncategorised
Archived · Original link
Uncategorised
Archived · Original link
Uncategorised
Archived · Original link
Uncategorised
Archived · Original link

Have your say

Your comment matters. Councils must consider every representation that raises material planning considerations.

Write a comment