← Milton Keynes City Council

Status

Pending House extension
Received
Not recorded
New homes
0

Full proposal

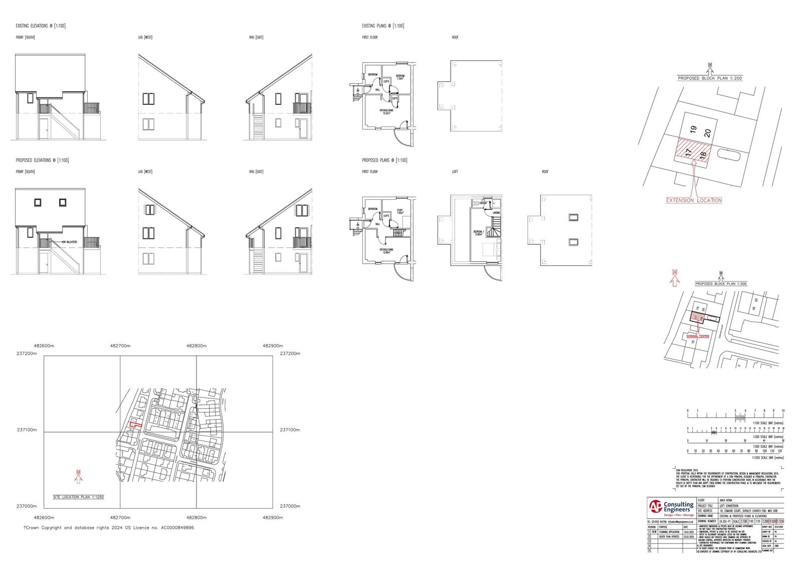
Reference PLN/2025/0078 Application type Householder planning permission Site address 18 Edmund Court, Shenley Church End, Milton Keynes, MK5 6DB Description Loft conversion with roof windows, insertion of window to front & rear elevations and extension to external staircase landing Status Decision Made Decision Approved with Conditions

Documents

Uncategorised
Archived · Original link
Uncategorised
Archived · Original link
Uncategorised
Archived · Original link
Uncategorised
Archived · Original link

Have your say

Your comment matters. Councils must consider every representation that raises material planning considerations.

Write a comment