← Milton Keynes City Council

Status

Pending Change of use
Received
Not recorded
New homes
35

Full proposal

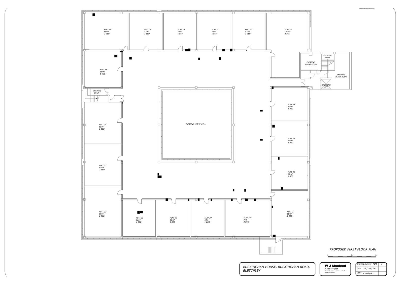
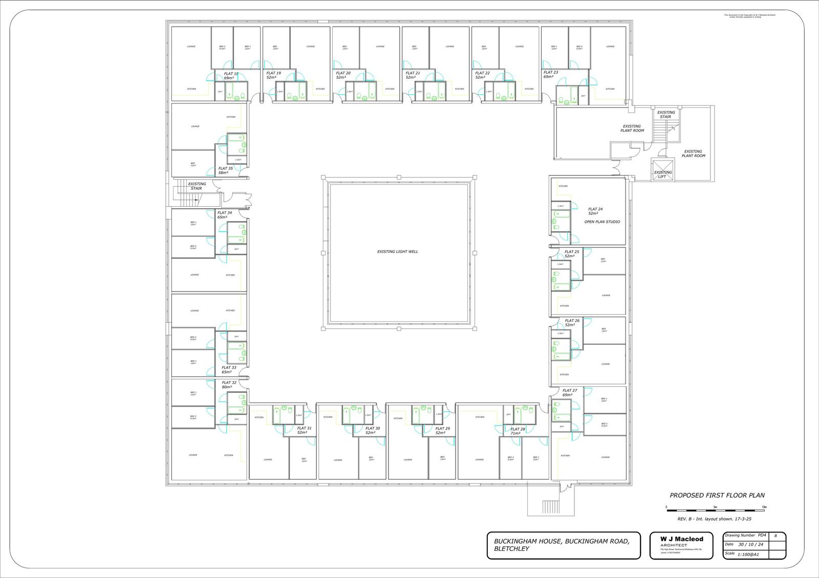
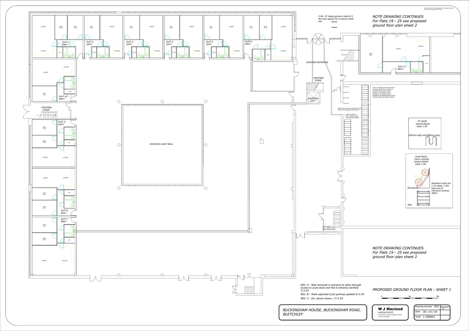
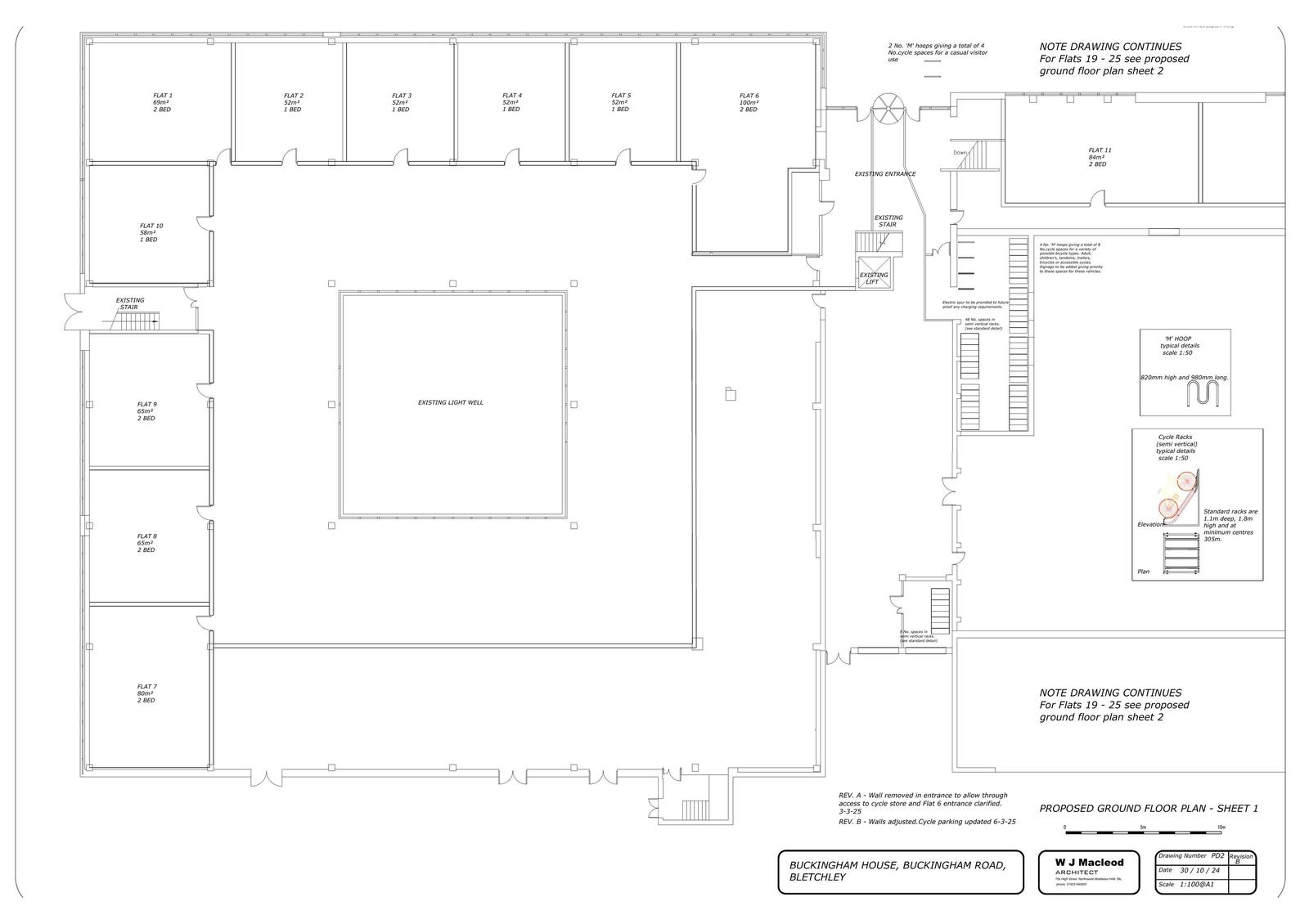
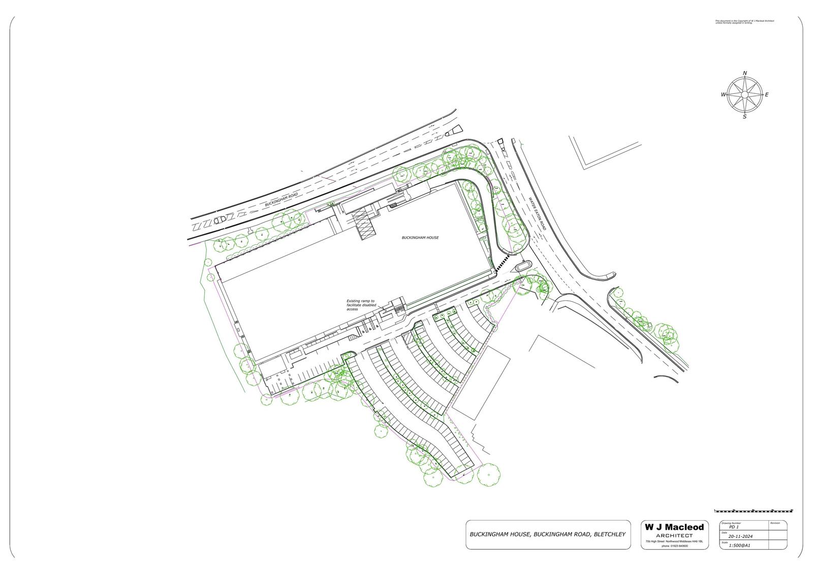
Reference PLN/2025/0131 Application type Prior approval: Commercial, business and service uses to dwellinghouses Site address BUCKINGHAM HOUSE, BUCKINGHAM ROAD, BLETCHLEY, MILTON KEYNES, MK3 5LD Description Prior Approval for change of use from Commercial, Business and Service (Use Class E) to Dwellinghouses (35 Apartments) (Use Class C3) Status Decision Made Decision Approved with Conditions

Documents

Uncategorised
Archived · Original link
Uncategorised
Archived · Original link
Uncategorised
Archived · Original link
Uncategorised
Archived · Original link
Uncategorised
Archived · Original link
Uncategorised
Archived · Original link
Uncategorised
Archived · Original link
Uncategorised
Archived · Original link
Uncategorised
Archived · Original link
Uncategorised
Archived · Original link
Uncategorised
Archived · Original link
Uncategorised
Archived · Original link
Uncategorised
Archived · Original link
Uncategorised
Archived · Original link
Uncategorised
Archived · Original link
Uncategorised
Archived · Original link
Uncategorised
Archived · Original link
Uncategorised
Archived · Original link
Uncategorised
Archived · Original link

Have your say

Your comment matters. Councils must consider every representation that raises material planning considerations.

Write a comment