← Milton Keynes City Council

Status

Pending House extension
Received
Not recorded
New homes
0

Full proposal

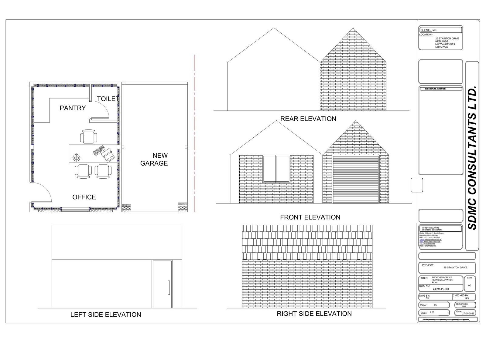
Reference PLN/2025/0326 Application type Householder planning permission Site address 25 Stainton Drive, Heelands, Milton Keynes, MK13 7QW Description Conversion of existing garage as a home office & extension to create new garage Status Decision Made Decision Approved with Conditions

Documents

Uncategorised
Archived · Original link
Uncategorised
Archived · Original link
Uncategorised
Archived · Original link
Uncategorised
Archived · Original link
Uncategorised
Archived · Original link
Uncategorised
Archived · Original link

Have your say

Your comment matters. Councils must consider every representation that raises material planning considerations.

Write a comment