← Milton Keynes City Council

Status

Pending New housing
Received
Not recorded
New homes
10

Full proposal

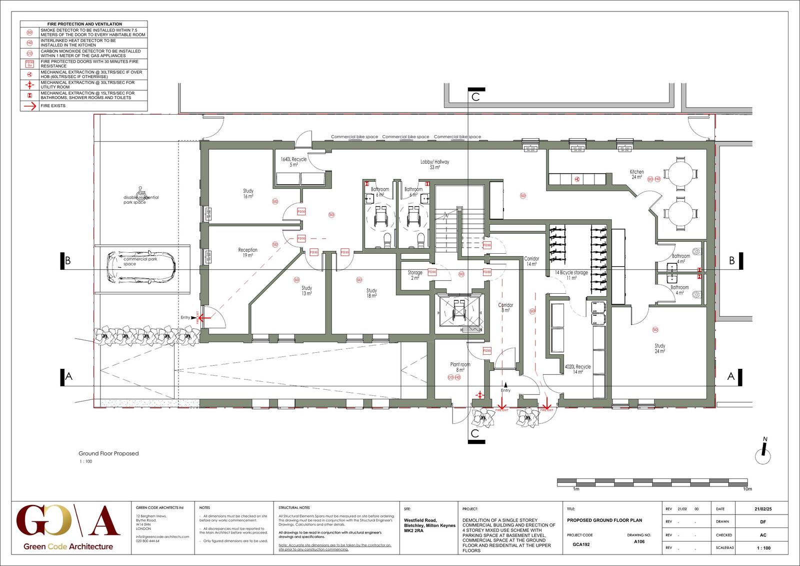
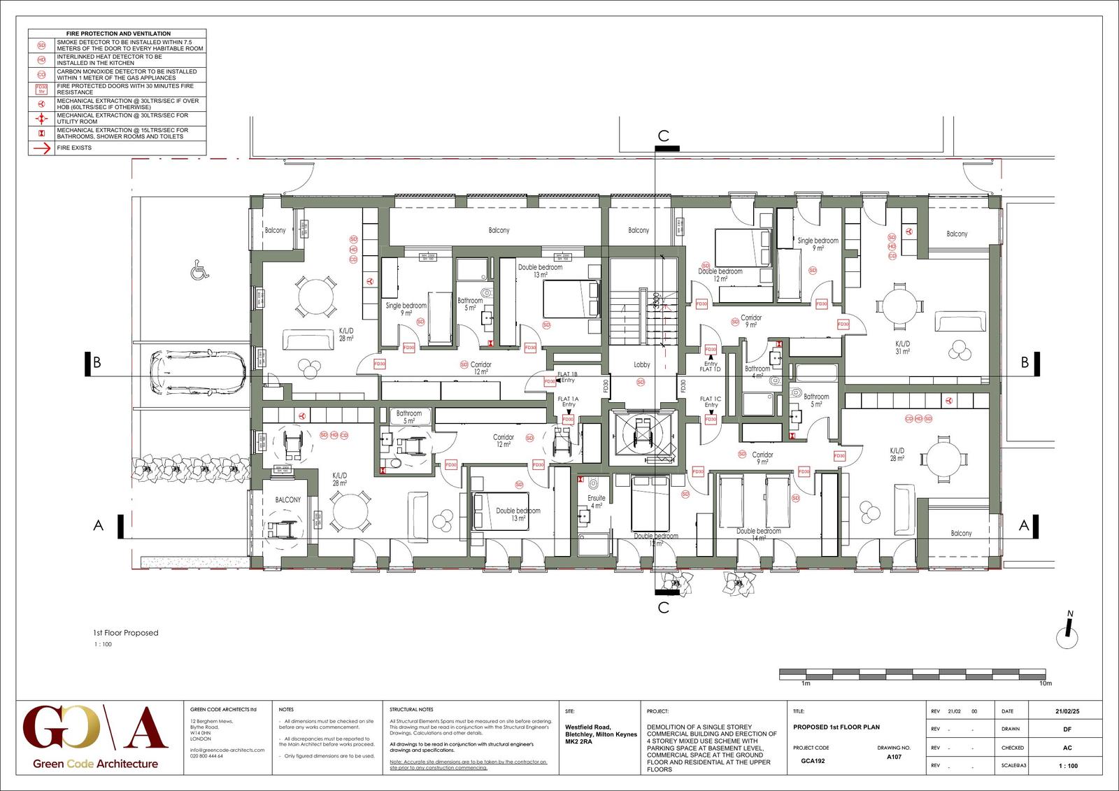
Reference PLN/2025/0444 Application type Full planning permission Site address RAVENSCROFT PHYSIOTHERAPY CENTRE, WESTFIELD ROAD, BLETCHLEY, MILTON KEYNES, MK2 2RA Description Demolition of a single storey commercial building and erection of 4 storey mixed-use scheme with vehicle parking space at basement level, Commercial and Health Care facilities at the ground floor and 10 residential flats above with associated bin and bicycle storage Status Decision Made Decision Withdrawn

Documents

Download (HTML, 31.34KB)
Uncategorised
Not yet archived · Original link
Uncategorised
Archived · Original link
Uncategorised
Archived · Original link
Uncategorised
Archived · Original link
Uncategorised
Archived · Original link
Uncategorised
Archived · Original link
Uncategorised
Archived · Original link
Uncategorised
Archived · Original link
Uncategorised
Archived · Original link
Uncategorised
Archived · Original link
Uncategorised
Archived · Original link
Uncategorised
Archived · Original link
Uncategorised
Archived · Original link
Uncategorised
Archived · Original link
Uncategorised
Archived · Original link
Uncategorised
Archived · Original link
Uncategorised
Archived · Original link
Uncategorised
Archived · Original link
Uncategorised
Archived · Original link
Uncategorised
Archived · Original link

Have your say

Your comment matters. Councils must consider every representation that raises material planning considerations.

Write a comment