← Milton Keynes City Council

Status

Pending House extension
Received
Not recorded
New homes
0

Full proposal

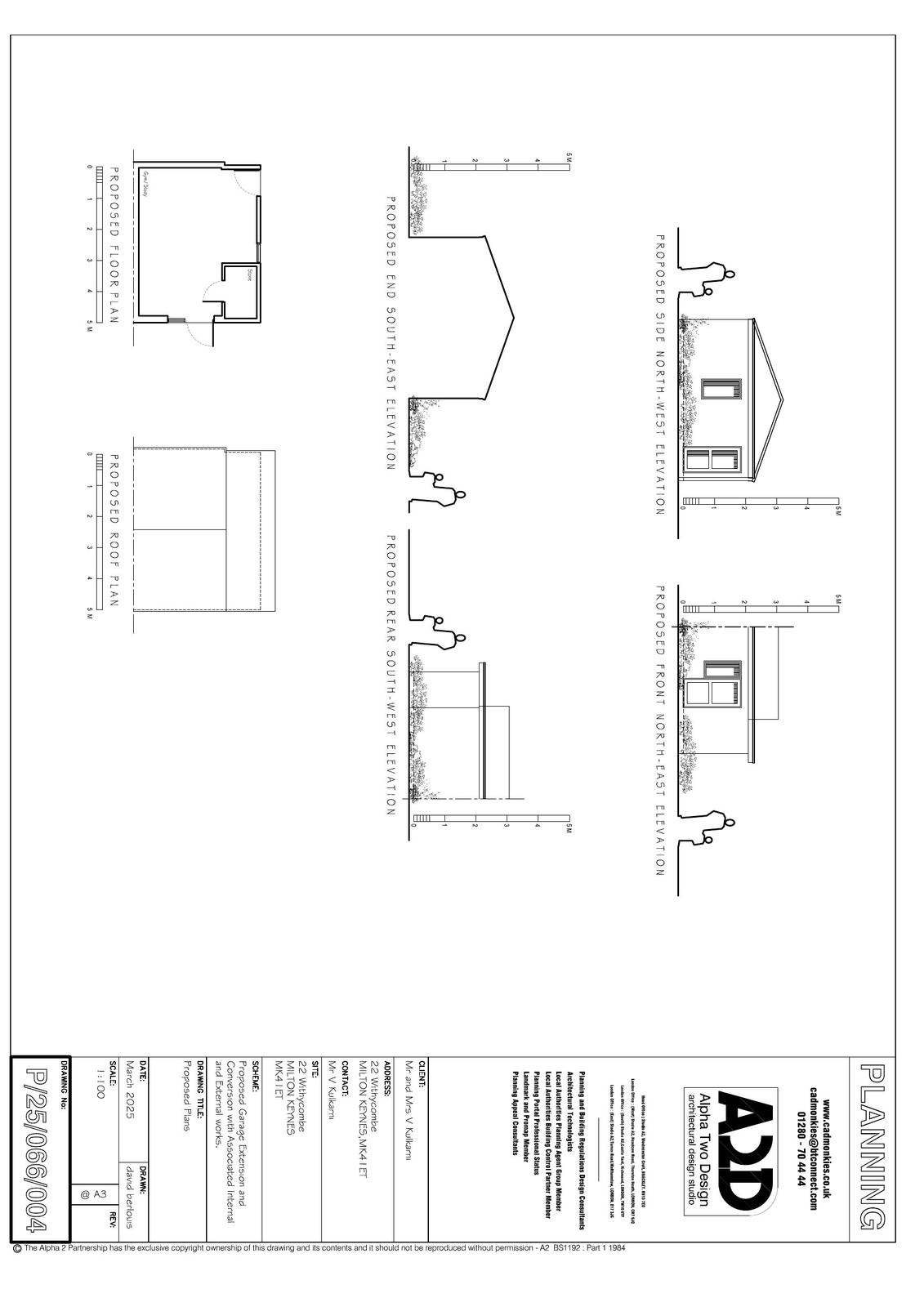
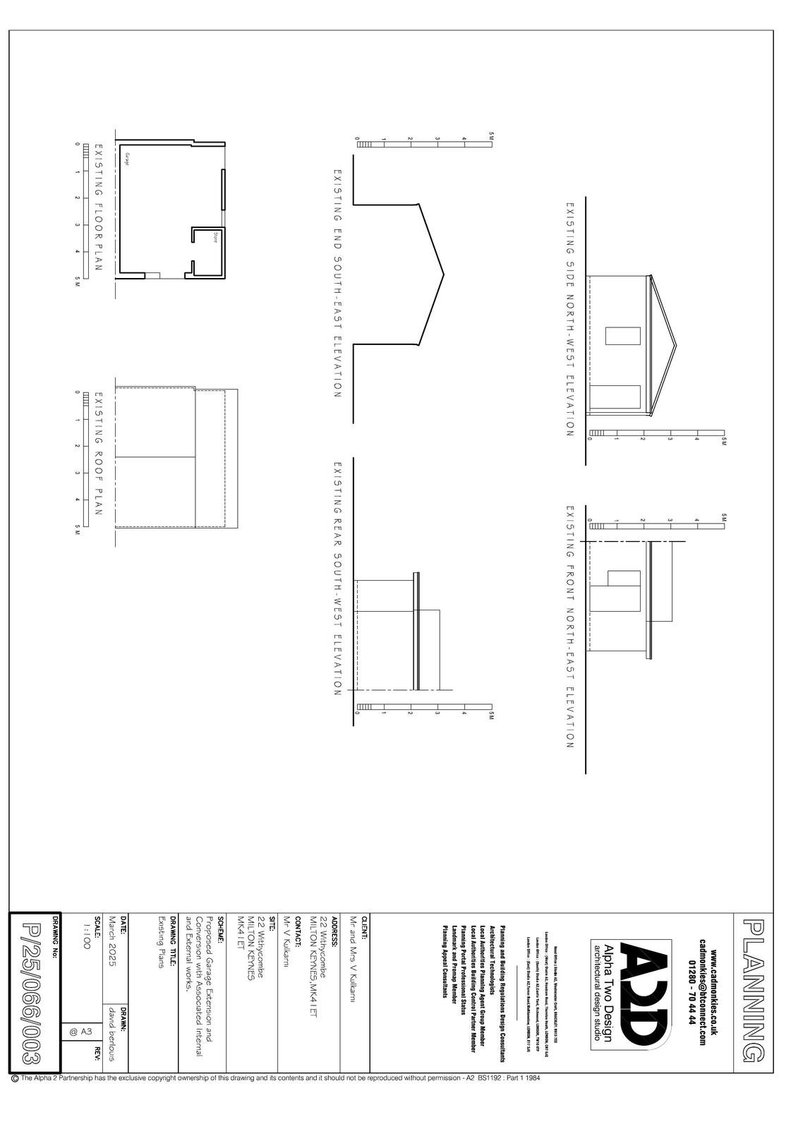
Reference PLN/2025/0669 Application type Householder planning permission Site address 22 WITHYCOMBE, FURZTON, MILTON KEYNES, MK4 1ET Description Proposed garage extension and conversion (Part retrospective) Status Decision Made Decision Approved with Conditions

Documents

Uncategorised
Archived · Original link
Uncategorised
Archived · Original link
Uncategorised
Archived · Original link
Uncategorised
Archived · Original link
Uncategorised
Archived · Original link
Uncategorised
Archived · Original link
Uncategorised
Archived · Original link

Have your say

Your comment matters. Councils must consider every representation that raises material planning considerations.

Write a comment