← Milton Keynes City Council

Status

Pending House extension
Received
Not recorded
New homes
0

Full proposal

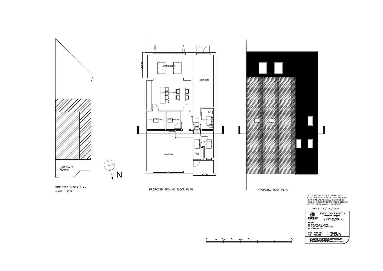
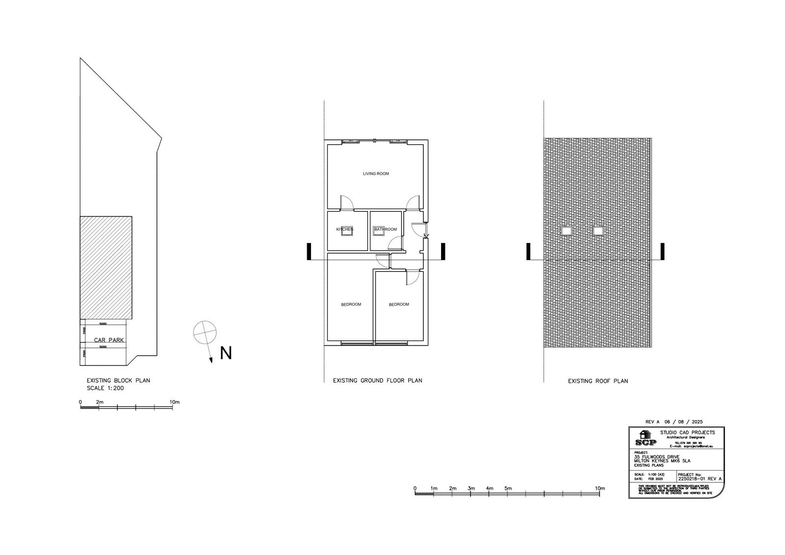
Reference PLN/2025/0687 Application type Householder planning permission Site address 35 FULWOODS DRIVE, LEADENHALL, MILTON KEYNES, MK6 5LA Description The erection of a single storey side and rear extension Status Decision Made Decision Approved with Conditions

Documents

Uncategorised
Archived · Original link
Uncategorised
Archived · Original link
Uncategorised
Archived · Original link
Uncategorised
Archived · Original link
Uncategorised
Archived · Original link
Uncategorised
Archived · Original link
Uncategorised
Archived · Original link
Uncategorised
Archived · Original link

Have your say

Your comment matters. Councils must consider every representation that raises material planning considerations.

Write a comment