← Milton Keynes City Council

Status

Pending Change of use
Received
Not recorded
New homes
0

Full proposal

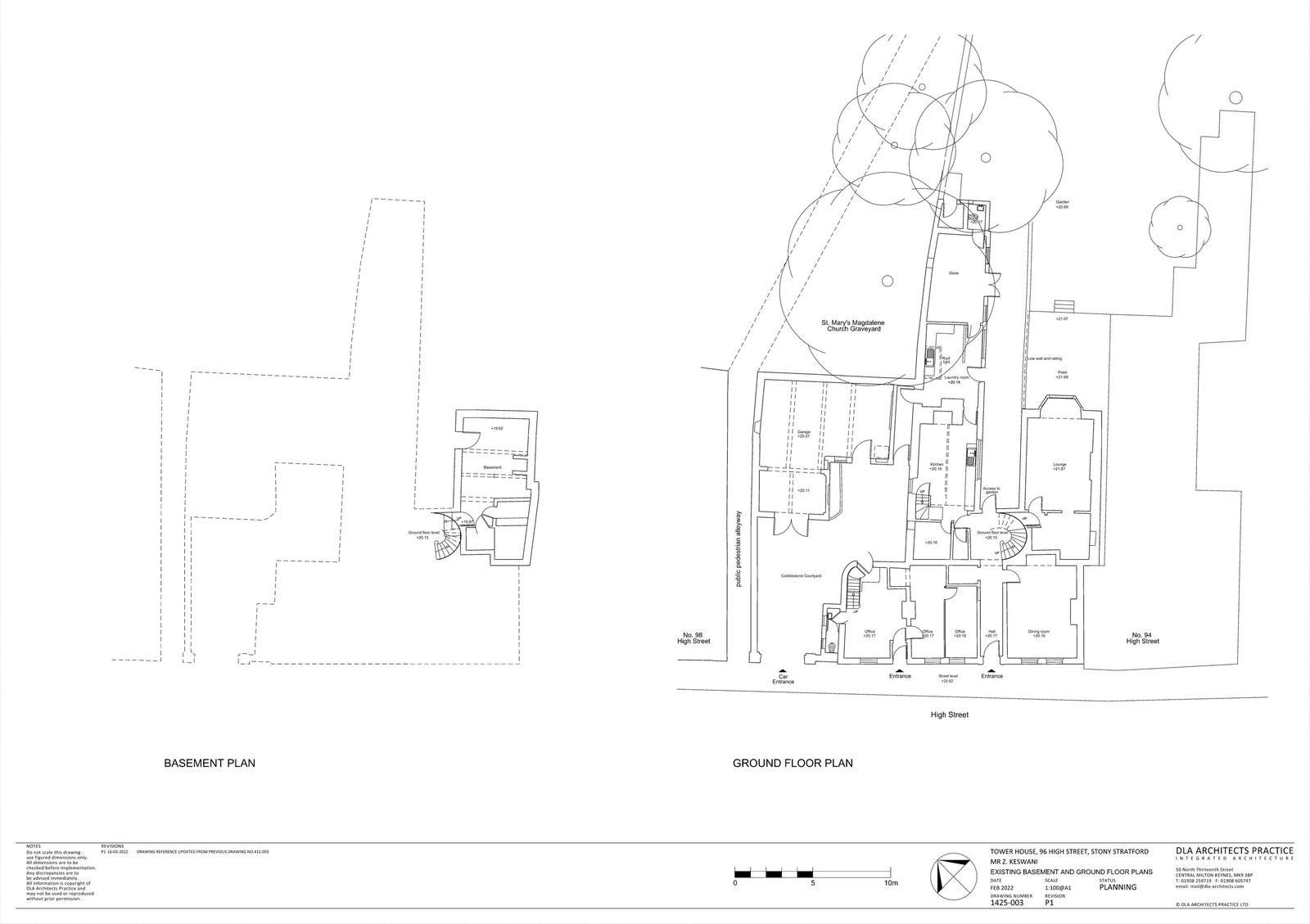
Reference PLN/2025/0704 Application type Full planning permission Site address 96 High Street, Stony Stratford, Milton Keynes, MK11 1AH Description Part change of use of the ground floor from commercial office (use Class E(c)(ii)) to a 1-bed dwelling (use Class C3) and sub-division of part of the first and second floors of existing C3 use into a self-contained 1-bed dwelling, including internal and external alterations Status Decision Made Decision Refused

Documents

Uncategorised
Archived · Original link
Uncategorised
Archived · Original link
Uncategorised
Archived · Original link
Uncategorised
Archived · Original link
Uncategorised
Archived · Original link
Uncategorised
Archived · Original link
Uncategorised
Archived · Original link
Uncategorised
Archived · Original link
Uncategorised
Archived · Original link
Uncategorised
Archived · Original link
Uncategorised
Archived · Original link
Uncategorised
Archived · Original link
Uncategorised
Archived · Original link
Uncategorised
Archived · Original link
Uncategorised
Archived · Original link
Uncategorised
Archived · Original link
Uncategorised
Archived · Original link
Uncategorised
Archived · Original link
Uncategorised
Archived · Original link
Uncategorised
Archived · Original link

Have your say

Your comment matters. Councils must consider every representation that raises material planning considerations.

Write a comment