← Milton Keynes City Council

Status

Pending House extension
Received
Not recorded
New homes
0

Full proposal

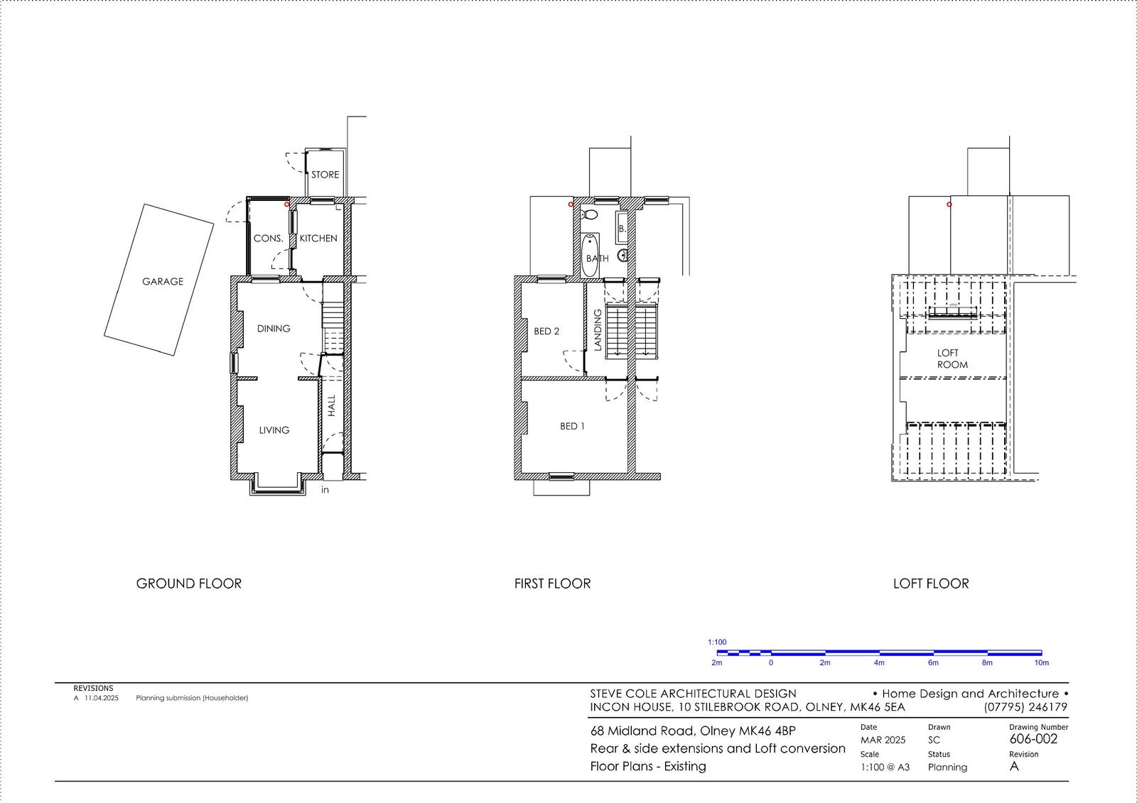
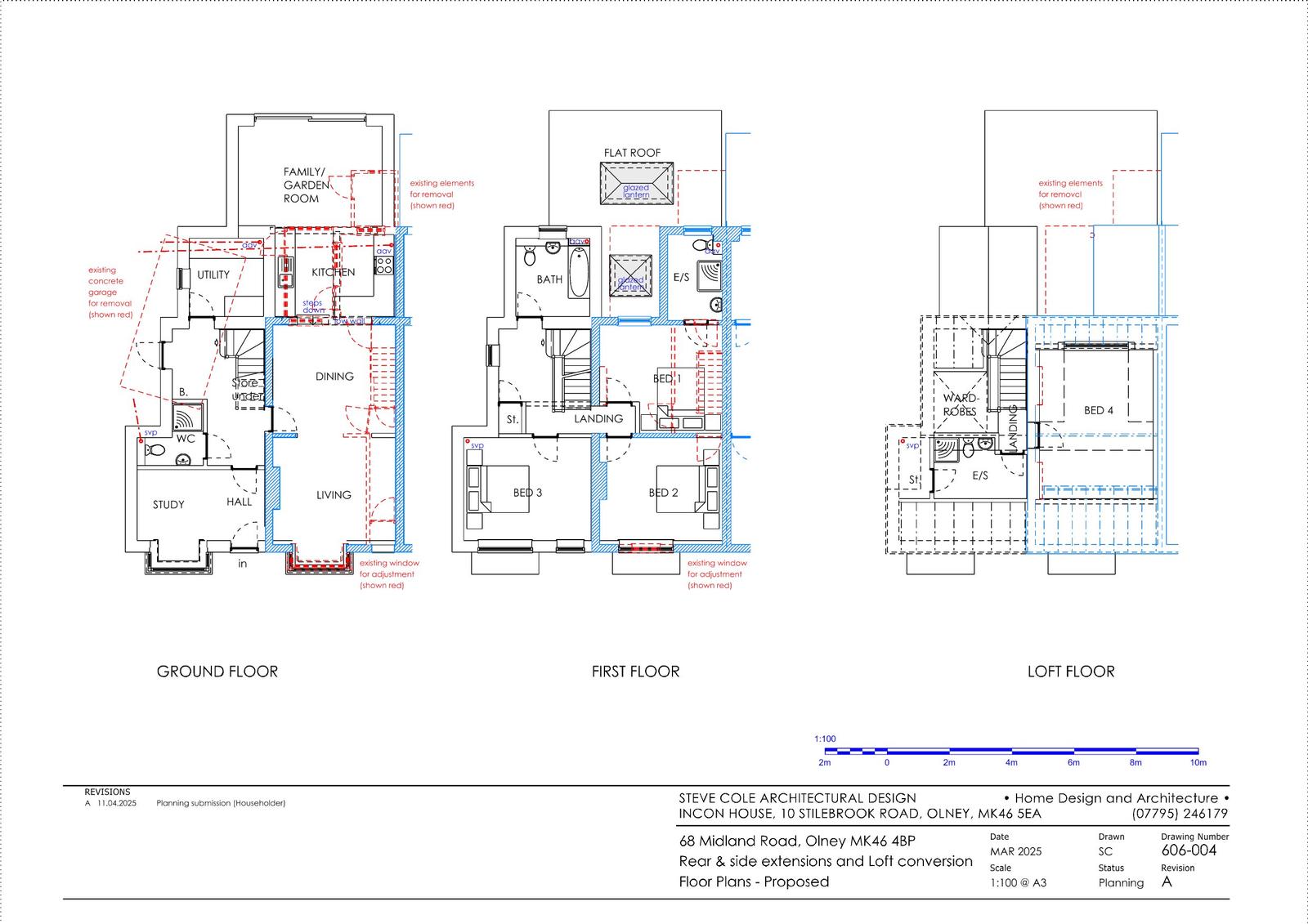
Reference PLN/2025/0787 Application type Householder planning permission Site address 68 MIDLAND ROAD, OLNEY, MK46 4BP Description Demolition of existing detached garage and erection of two storey side extension with rooflights; part two storey rear extension; single storey rear extension; loft conversion with rear dormer and window & door adjustments to front elevation and removal of chimney stack Status Decision Made Decision Approved with Conditions

Documents

Uncategorised
Archived · Original link
Uncategorised
Archived · Original link
Uncategorised
Archived · Original link
Uncategorised
Archived · Original link
Uncategorised
Archived · Original link
Uncategorised
Archived · Original link
Uncategorised
Archived · Original link
Uncategorised
Archived · Original link
Uncategorised
Archived · Original link

Have your say

Your comment matters. Councils must consider every representation that raises material planning considerations.

Write a comment