← Milton Keynes City Council

Status

Pending House extension
Received
Not recorded
New homes
0

Full proposal

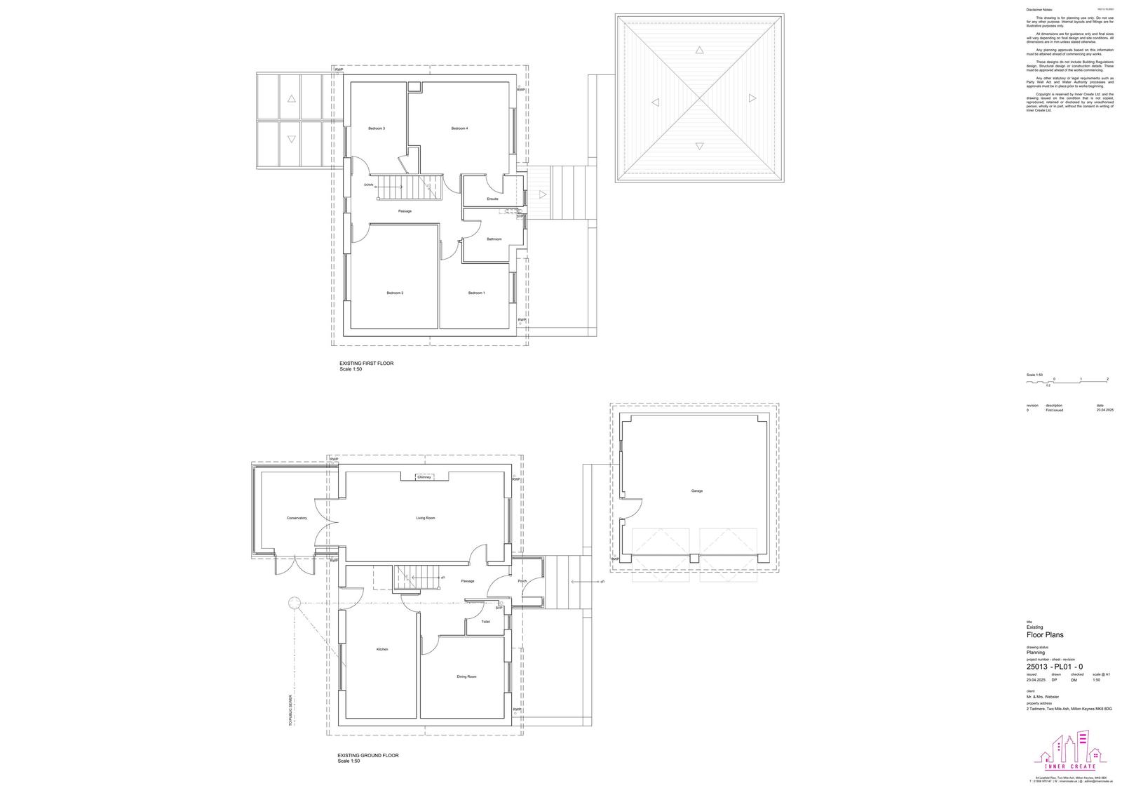
Reference PLN/2025/0846 Application type Householder planning permission Site address 2 Tadmere, Two Mile Ash, Milton Keynes, MK8 8DG Description Erection of front porch, erection of single storey front and side extension (between existing house and garage, with new roof lights), and the replacement of existing cladding with grey render Status Decision Made Decision Approved with Conditions

Documents

Uncategorised
Archived · Original link
Uncategorised
Archived · Original link
Uncategorised
Archived · Original link
Uncategorised
Archived · Original link
Uncategorised
Archived · Original link

Have your say

Your comment matters. Councils must consider every representation that raises material planning considerations.

Write a comment