← Milton Keynes City Council

Status

Pending Demolition
Received
Not recorded
New homes
0

Full proposal

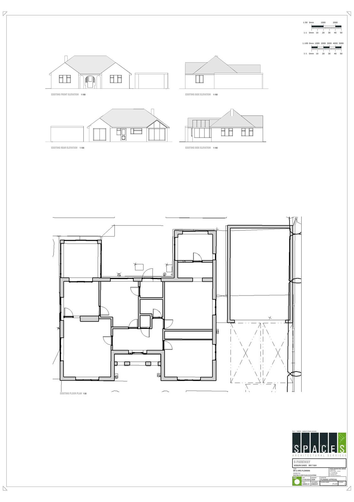
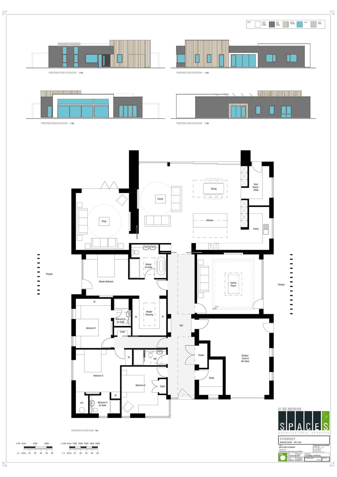
Reference PLN/2025/0874 Application type Full planning permission Site address THE ORCHARD, 5 PARKWAY, WOBURN SANDS, MILTON KEYNES, MK17 8UH Description Proposed demolition of existing bungalow and garage along with the construction of new replacement single storey dwelling with associated landscaping works Status Decision Made Decision Approved with Conditions

Documents

Uncategorised
Archived · Original link
Uncategorised
Archived · Original link
Uncategorised
Archived · Original link
Uncategorised
Archived · Original link
Uncategorised
Archived · Original link
Uncategorised
Archived · Original link
Uncategorised
Archived · Original link
Uncategorised
Archived · Original link
Uncategorised
Archived · Original link
Uncategorised
Archived · Original link
Uncategorised
Archived · Original link
Uncategorised
Archived · Original link
Uncategorised
Archived · Original link
Uncategorised
Archived · Original link
Uncategorised
Archived · Original link
Uncategorised
Archived · Original link
Uncategorised
Archived · Original link
Uncategorised
Archived · Original link
Uncategorised
Archived · Original link
Uncategorised
Archived · Original link

Have your say

Your comment matters. Councils must consider every representation that raises material planning considerations.

Write a comment