← Milton Keynes City Council

Status

Pending House extension
Received
Not recorded
New homes
0

Full proposal

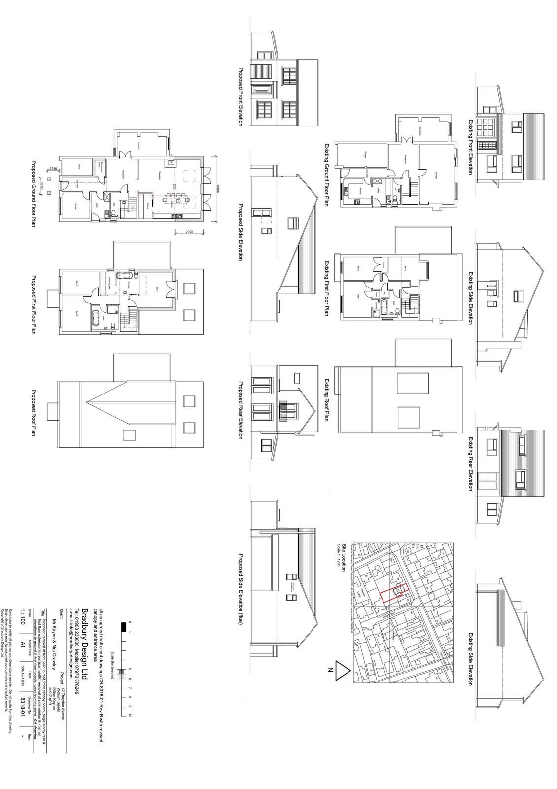
Reference PLN/2025/0900 Application type Householder planning permission Site address 42 THEYDON AVENUE, WOBURN SANDS, MILTON KEYNES, MK17 8PR Description The erection of a single storey and part first floor extension to rear, removal of dormer window and installation to rooflight, removal of window on ground floor side elevation, installation of new window to first floor side elevation, removal of existing front canopy roof and erection of new front canopy porch. Installation of wood burning stove and new flue to side elevation, removal of existing chimney Status Decision Made Decision Approved with Conditions

Documents

Uncategorised
Archived · Original link
Uncategorised
Archived · Original link
Uncategorised
Archived · Original link
Uncategorised
Archived · Original link
Uncategorised
Archived · Original link

Have your say

Your comment matters. Councils must consider every representation that raises material planning considerations.

Write a comment