← Milton Keynes City Council

Status

Pending House extension
Received
Not recorded
New homes
0

Full proposal

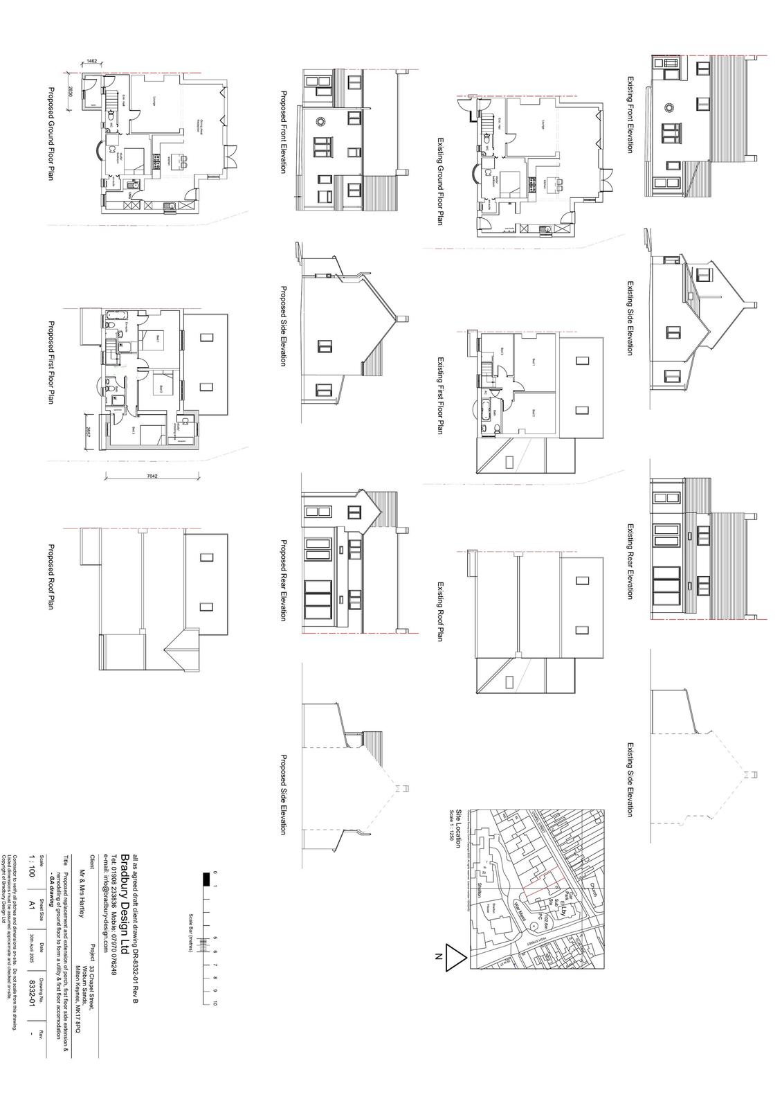
Reference PLN/2025/0904 Application type Householder planning permission Site address 33 CHAPEL STREET, WOBURN SANDS, MILTON KEYNES, MK17 8PQ Description The erection of first floor side extension, removal of existing porch and erection of new porch, removal of existing door and new windows to front elevation Status Decision Made Decision Approved with Conditions

Documents

Uncategorised
Archived · Original link
Uncategorised
Archived · Original link
Uncategorised
Archived · Original link
Uncategorised
Archived · Original link
Uncategorised
Archived · Original link
Uncategorised
Archived · Original link

Have your say

Your comment matters. Councils must consider every representation that raises material planning considerations.

Write a comment