PLN/2025/0910
Milton Keynes City Council
Status
Pending
House extension
Received
Not recorded
New homes
0
Full proposal
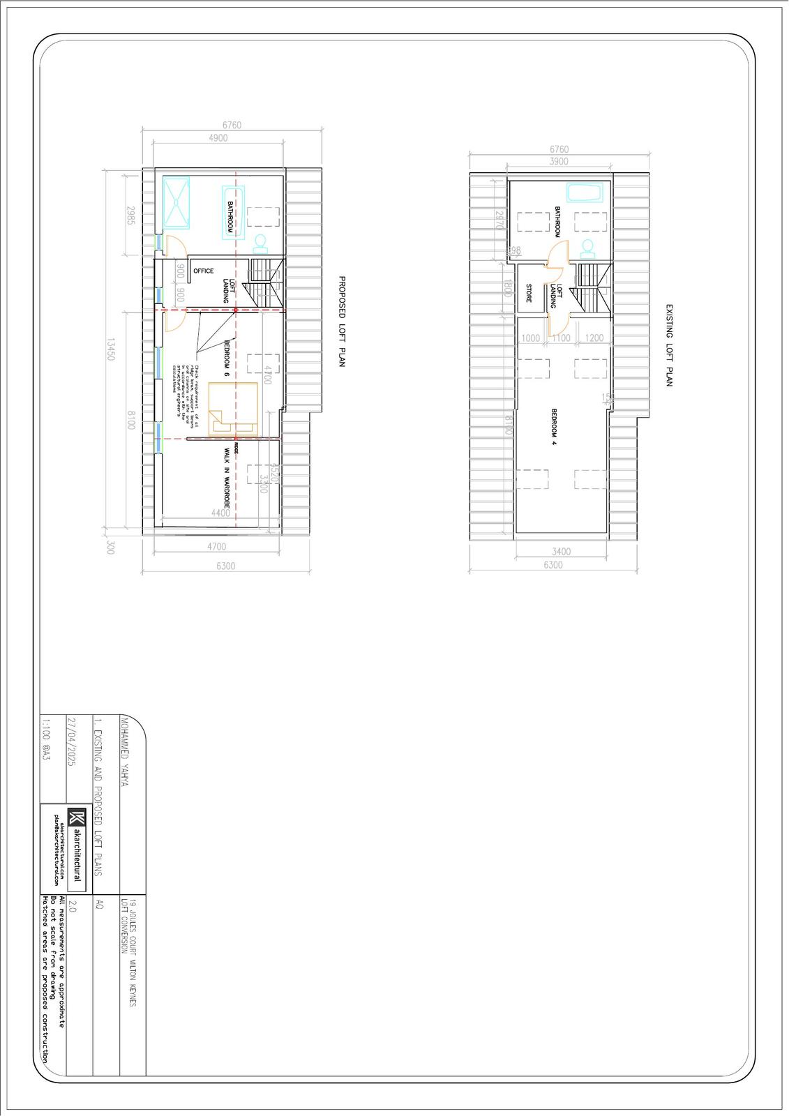
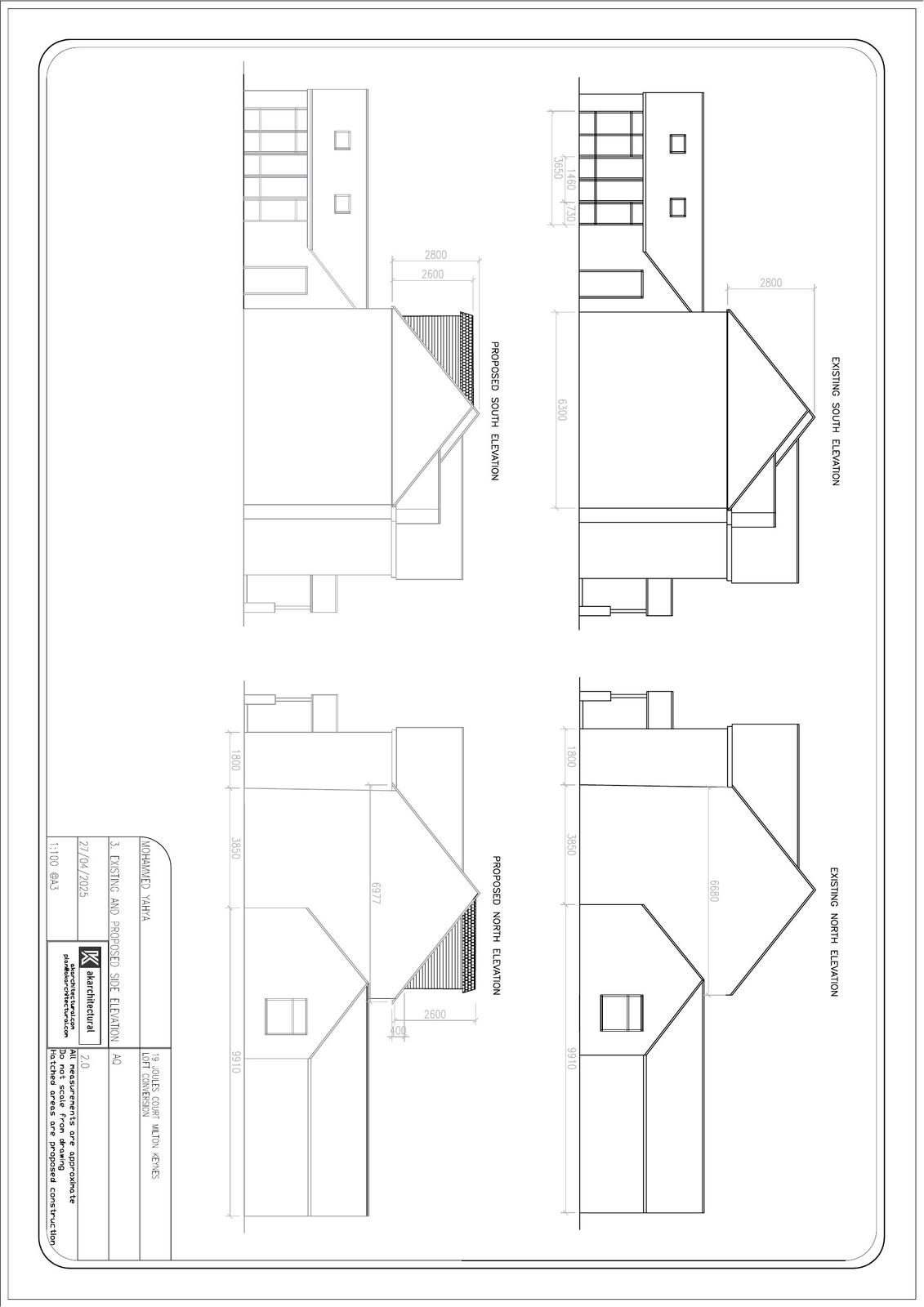
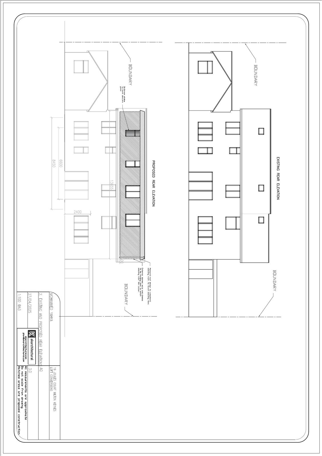
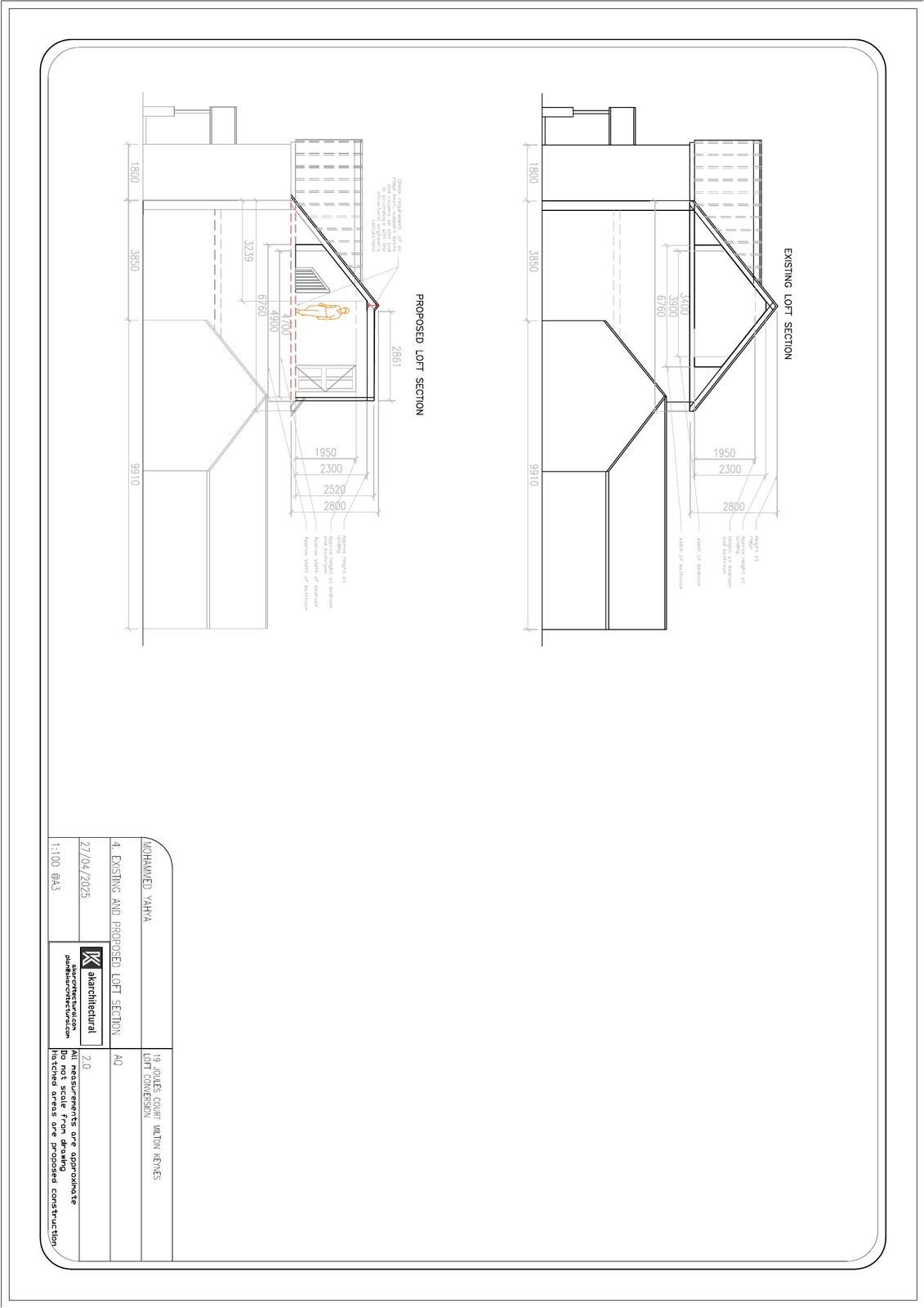
Reference PLN/2025/0910 Application type Householder planning permission Site address 19 JOULES COURT, SHENLEY LODGE, MILTON KEYNES, MK5 7BA Description Loft conversion with a rear dormer extension Status Decision Made Decision Approved with Conditions
Documents
Have your say
Your comment matters. Councils must consider every representation that raises material planning considerations.