← Milton Keynes City Council

Status

Pending Change of use
Received
Not recorded
New homes
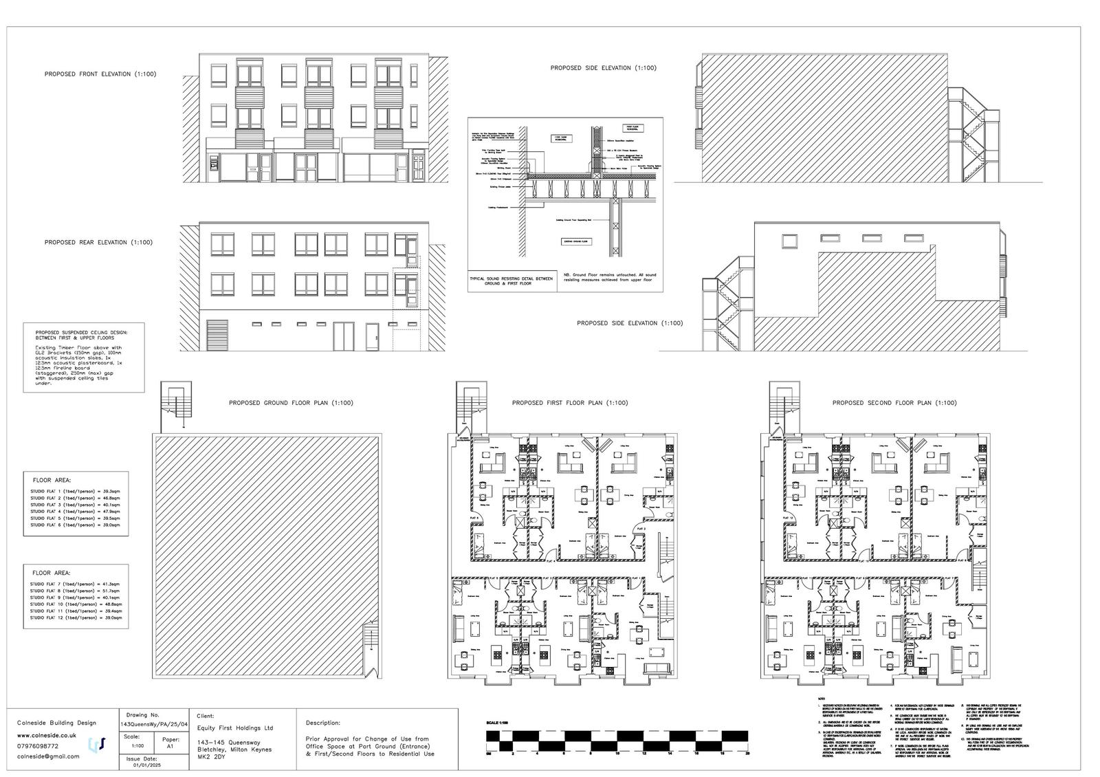
12

Full proposal

Reference PLN/2025/0922 Application type Prior approval: Commercial, business and service uses to dwellinghouses Site address 143-145 QUEENSWAY FIRST FLOOR, BLETCHLEY, MILTON KEYNES, MK2 2DY Description Prior approval for change of use from Class E to Dwellinghouses C3, including provision for 12x 1 bedroom studio flats and provision of car parking, cycle and bin storage Status Decision Made Decision Approved with Conditions

Documents

Uncategorised
Archived · Original link
Uncategorised
Archived · Original link
Uncategorised
Archived · Original link
Uncategorised
Archived · Original link
Uncategorised
Archived · Original link
Uncategorised
Archived · Original link
Uncategorised
Archived · Original link
Uncategorised
Archived · Original link
Uncategorised
Archived · Original link
Uncategorised
Archived · Original link

Have your say

Your comment matters. Councils must consider every representation that raises material planning considerations.

Write a comment