← Milton Keynes City Council

Status

Pending Change of use
Received
Not recorded
New homes
0

Full proposal

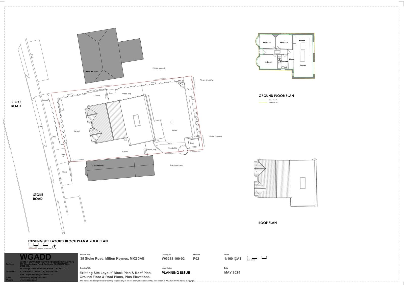
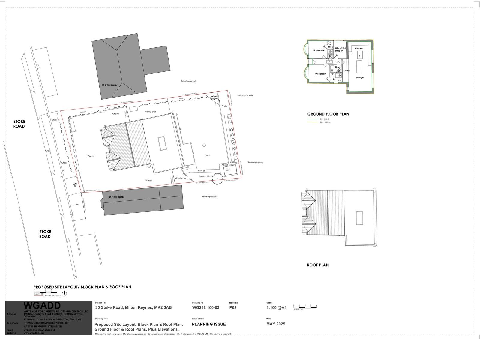
Reference PLN/2025/0947 Application type Full planning permission Site address 35 Stoke Road, Bletchley, Milton Keynes, MK2 3AB Description Change of use from a dwellinghouse (Class C3) to a residential care home (Class C2) for two young persons Status Decision Made Decision Approved with Conditions

Documents

Uncategorised
Archived · Original link
Uncategorised
Archived · Original link
Uncategorised
Archived · Original link
Uncategorised
Archived · Original link
Uncategorised
Archived · Original link
Uncategorised
Archived · Original link
Uncategorised
Archived · Original link
Uncategorised
Archived · Original link
Uncategorised
Archived · Original link
Uncategorised
Archived · Original link

Have your say

Your comment matters. Councils must consider every representation that raises material planning considerations.

Write a comment