← Milton Keynes City Council

Status

Pending House extension
Received
Not recorded
New homes
0

Full proposal

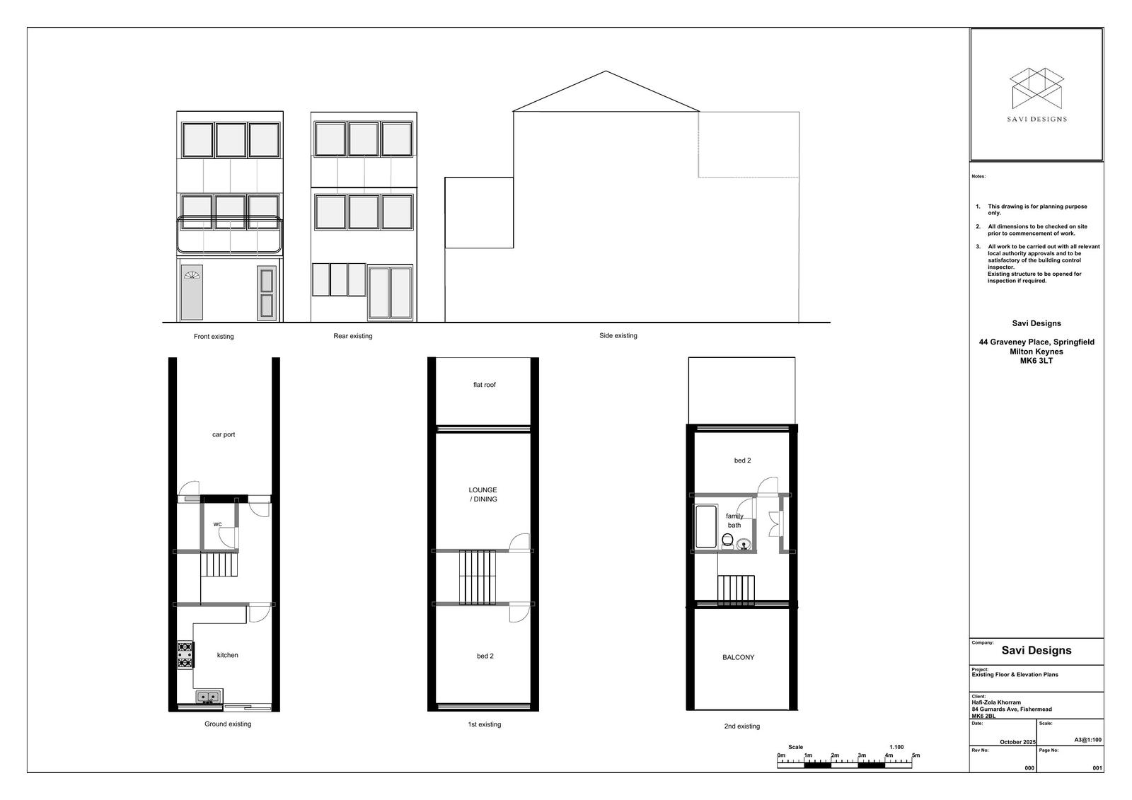
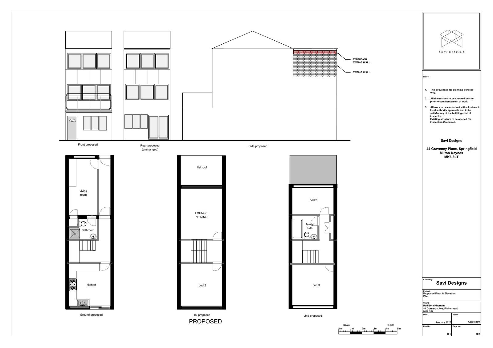
Reference PLN/2026/0101 Application type Householder planning permission Site address 84 GURNARDS AVENUE, FISHERMEAD, MILTON KEYNES, MK6 2BL Description Erection of a first floor front extension and second floor rear extension to infill existing balconies, enclosure and conversion of car port to habitable space Status Under Consultation Decision

Documents

Uncategorised
Archived · Original link
Uncategorised
Archived · Original link
Uncategorised
Archived · Original link
Uncategorised
Archived · Original link
Uncategorised
Archived · Original link
Uncategorised
Archived · Original link
Uncategorised
Archived · Original link

Have your say

Your comment matters. Councils must consider every representation that raises material planning considerations.

Write a comment