← Milton Keynes City Council

Status

Pending House extension
Received
Not recorded
New homes
0

Full proposal

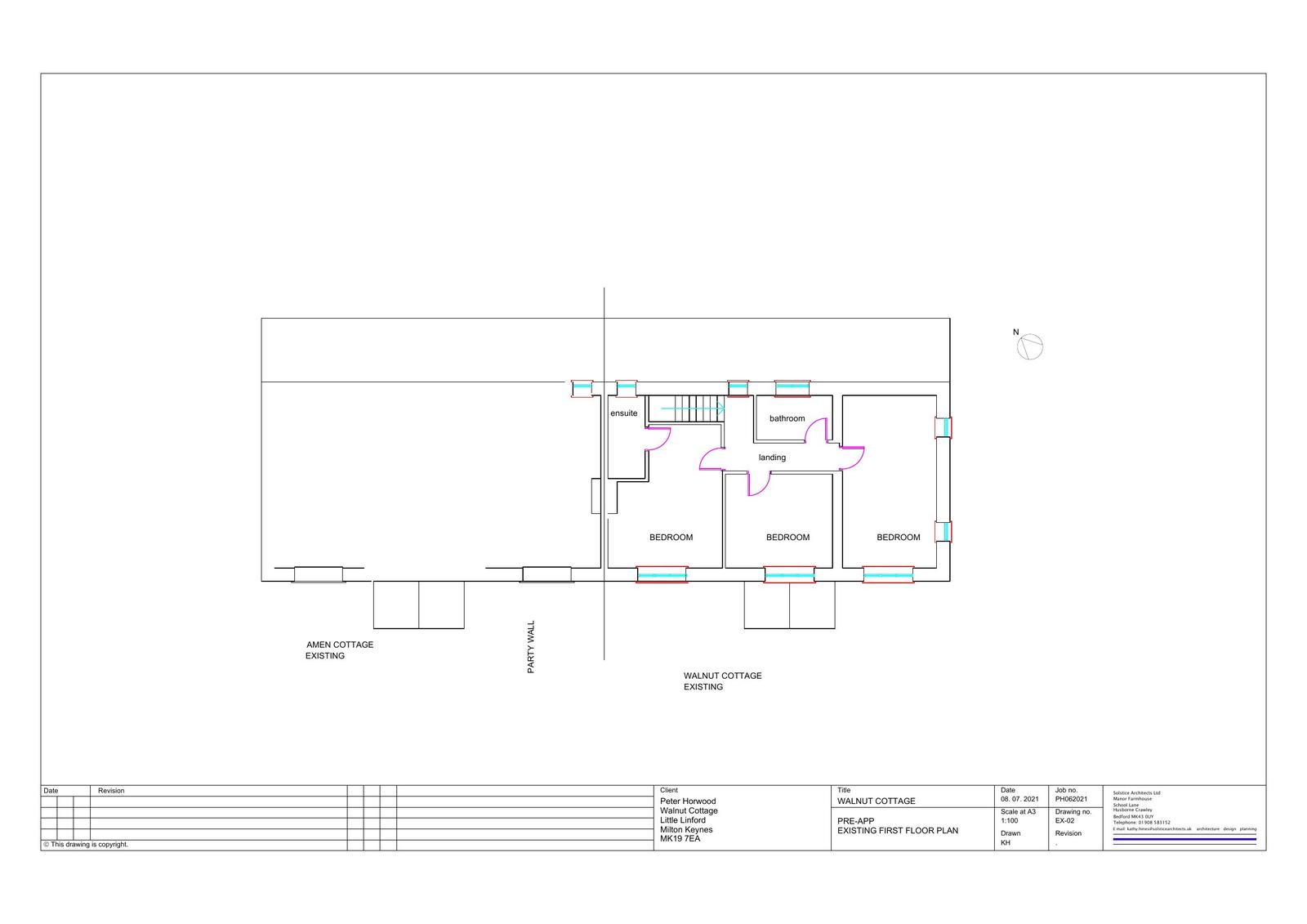
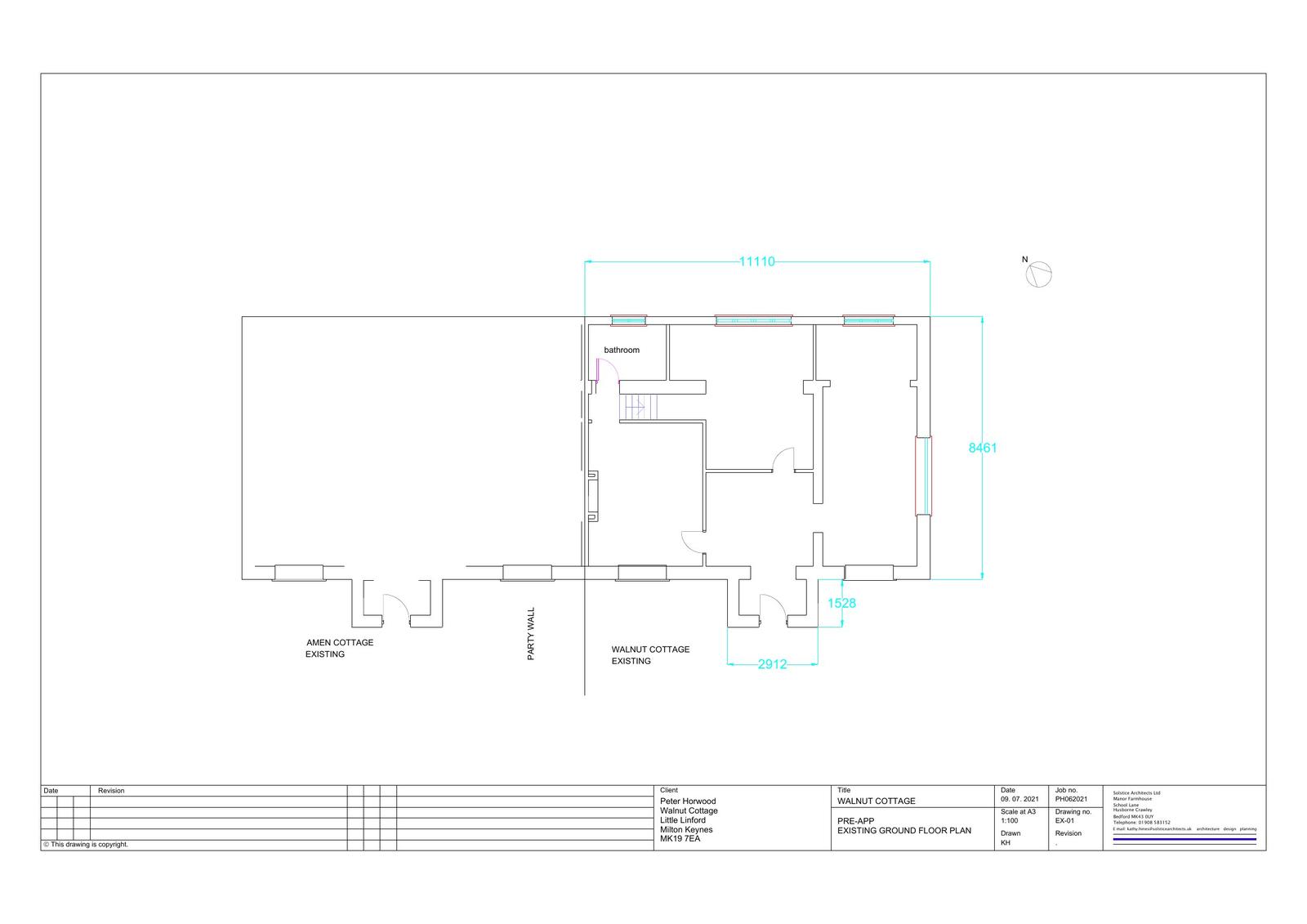
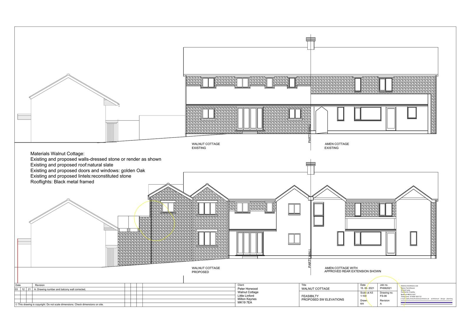
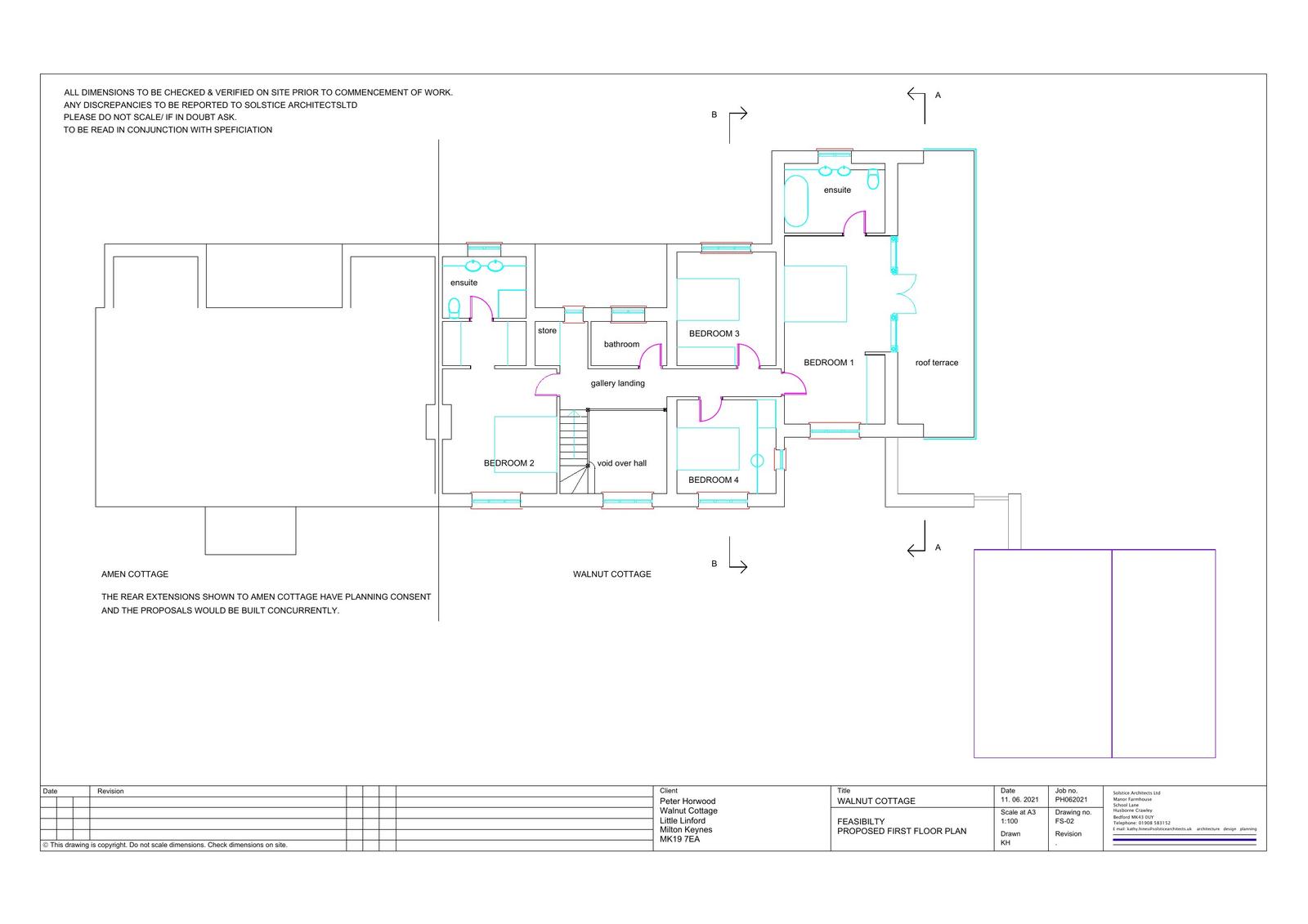
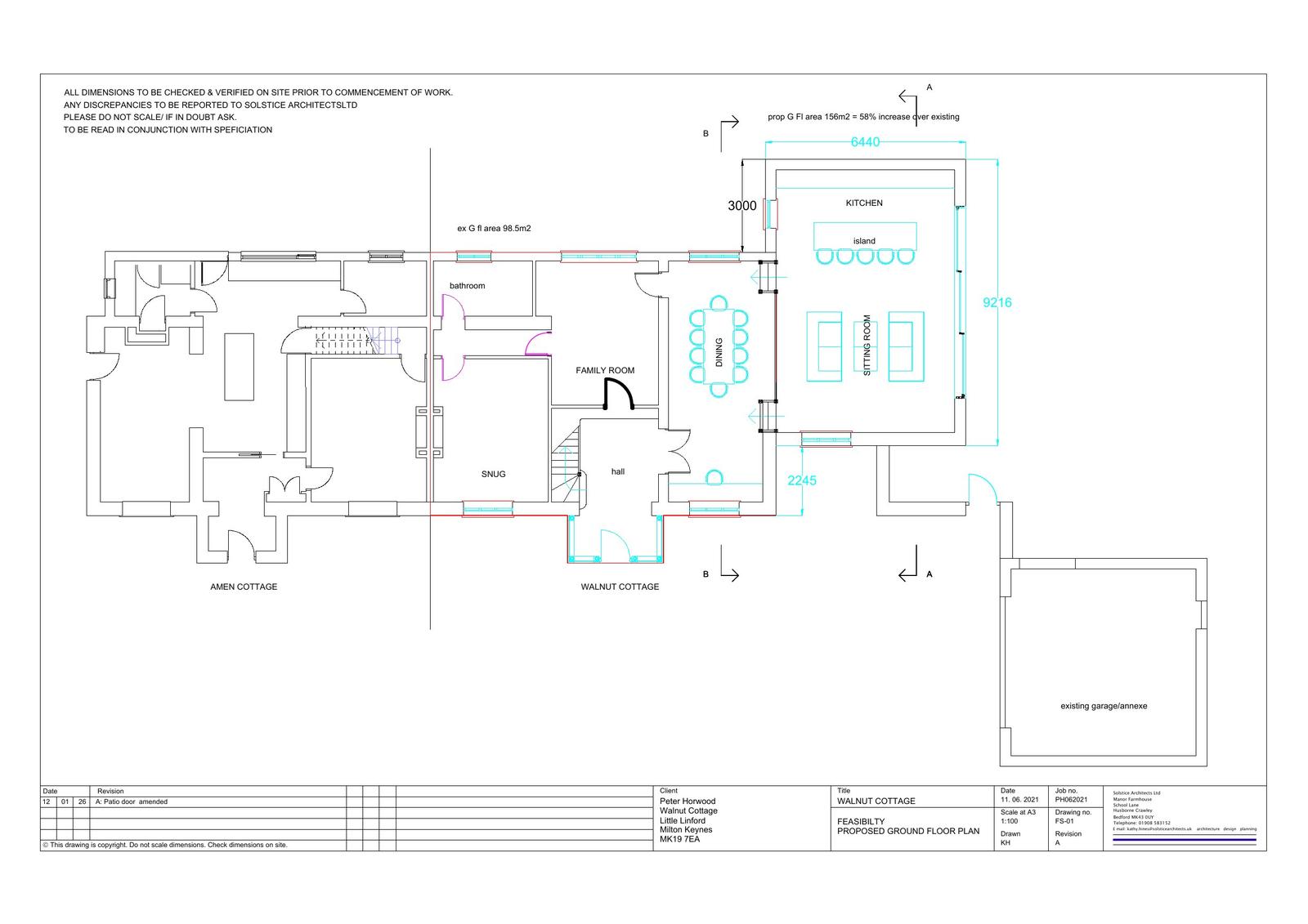
Reference PLN/2026/0164 Application type Householder planning permission Site address Walnut Cottage, Little Linford Lane, Little Linford, Milton Keynes, MK19 7EA Description Erection of two-storey side/rear extension with balcony, 2x first-floor rear extensions including roof alterations, alterations to existing porch and alterations to front garden wall Status Decision Made Decision Approved with Conditions

Documents

Uncategorised
Archived · Original link
Uncategorised
Archived · Original link
Uncategorised
Archived · Original link
Uncategorised
Archived · Original link
Uncategorised
Archived · Original link
Uncategorised
Archived · Original link
Uncategorised
Archived · Original link
Uncategorised
Archived · Original link
Uncategorised
Archived · Original link
Uncategorised
Archived · Original link
Uncategorised
Archived · Original link
Uncategorised
Archived · Original link
Uncategorised
Archived · Original link
Uncategorised
Archived · Original link
Uncategorised
Archived · Original link
Uncategorised
Archived · Original link

Have your say

Your comment matters. Councils must consider every representation that raises material planning considerations.

Write a comment