PLN/2026/0211
Milton Keynes City Council
Status
Pending
House extension
Received
Not recorded
New homes
0
Full proposal
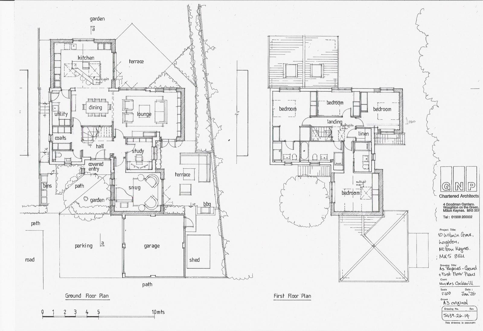
Reference PLN/2026/0211 Application type Householder planning permission Site address 10 WILMIN GROVE, LOUGHTON, MILTON KEYNES, MK5 8EU Description Erection of a two storey side extension, two storey front/side infill extension between house and garage and a single storey rear extension, Status Under Consultation Decision
Documents
Have your say
Your comment matters. Councils must consider every representation that raises material planning considerations.