← Milton Keynes City Council

Status

Pending Change of use
Received
Not recorded
New homes
0

Full proposal

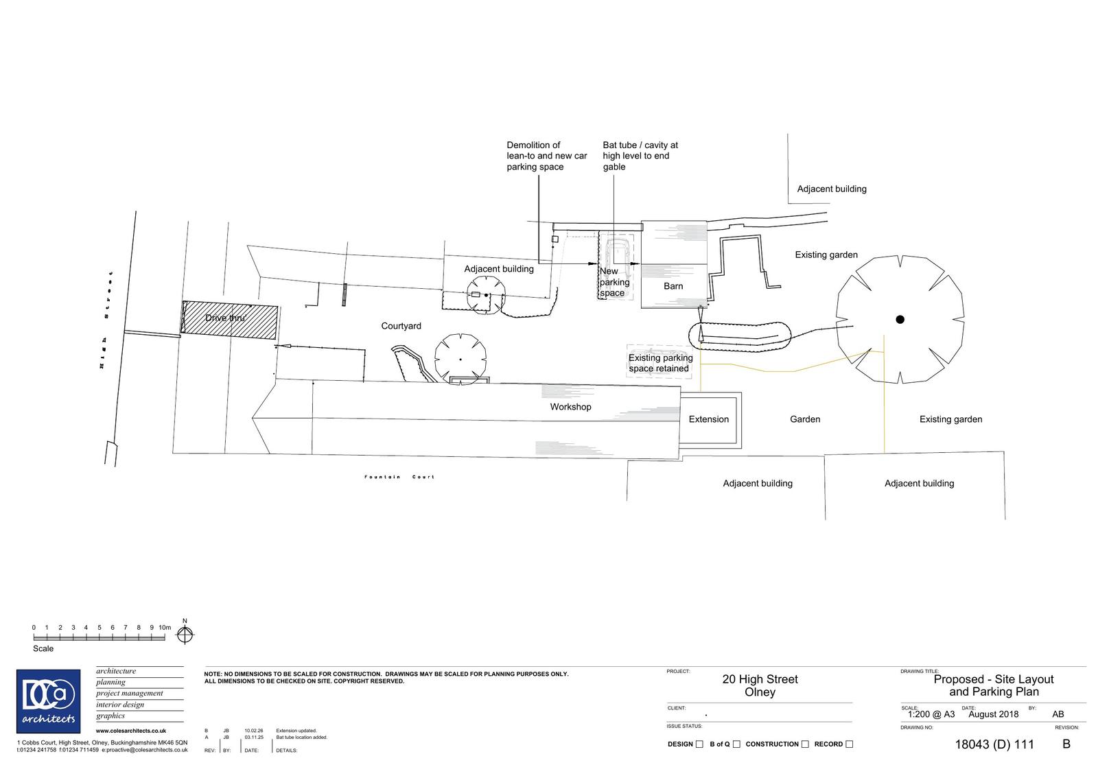
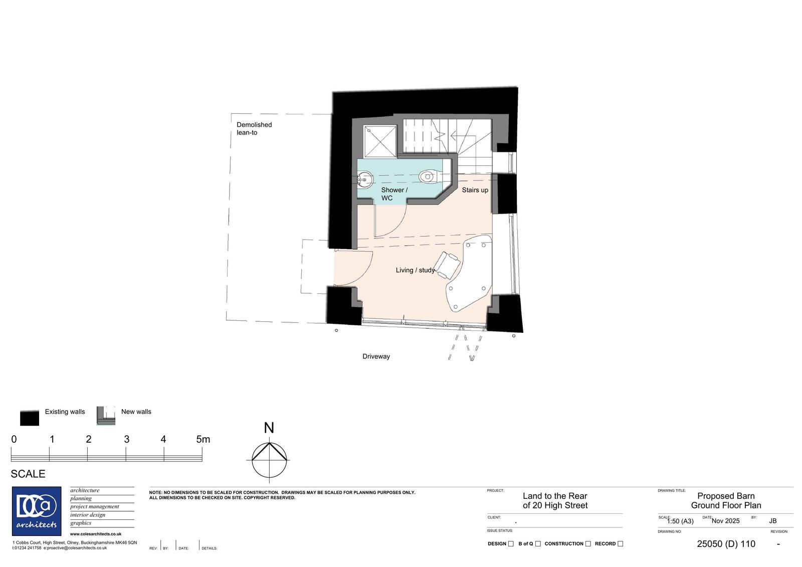
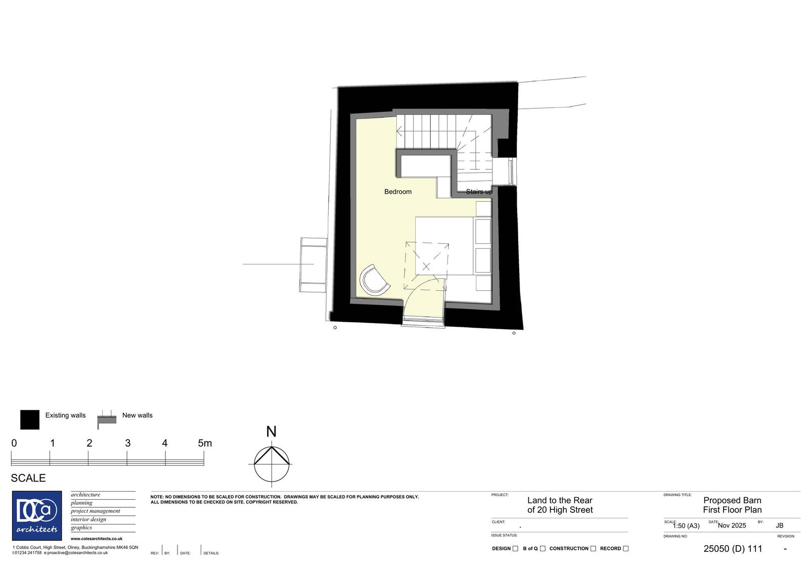
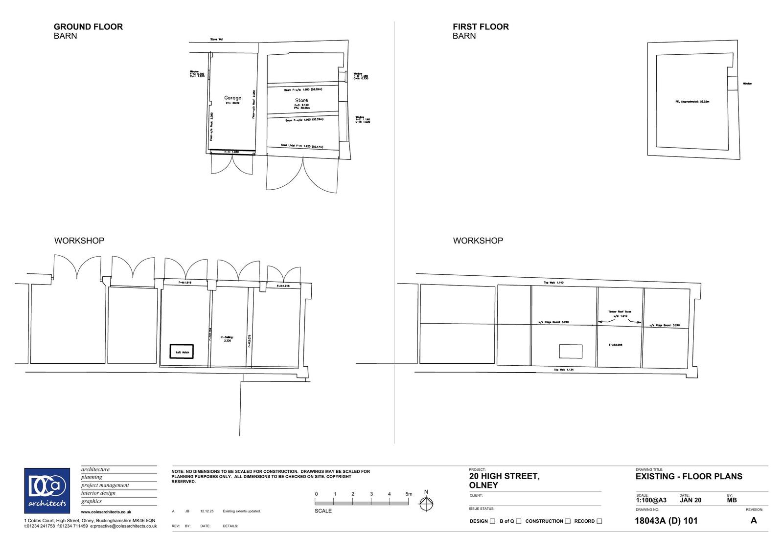
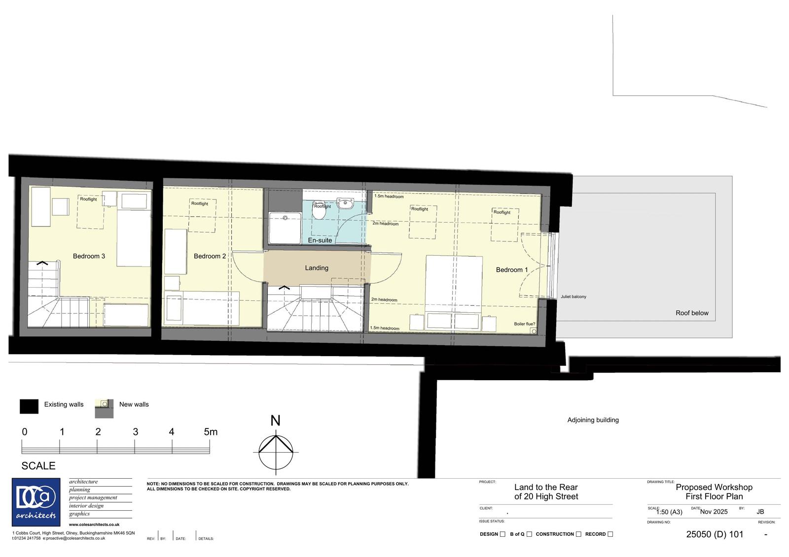
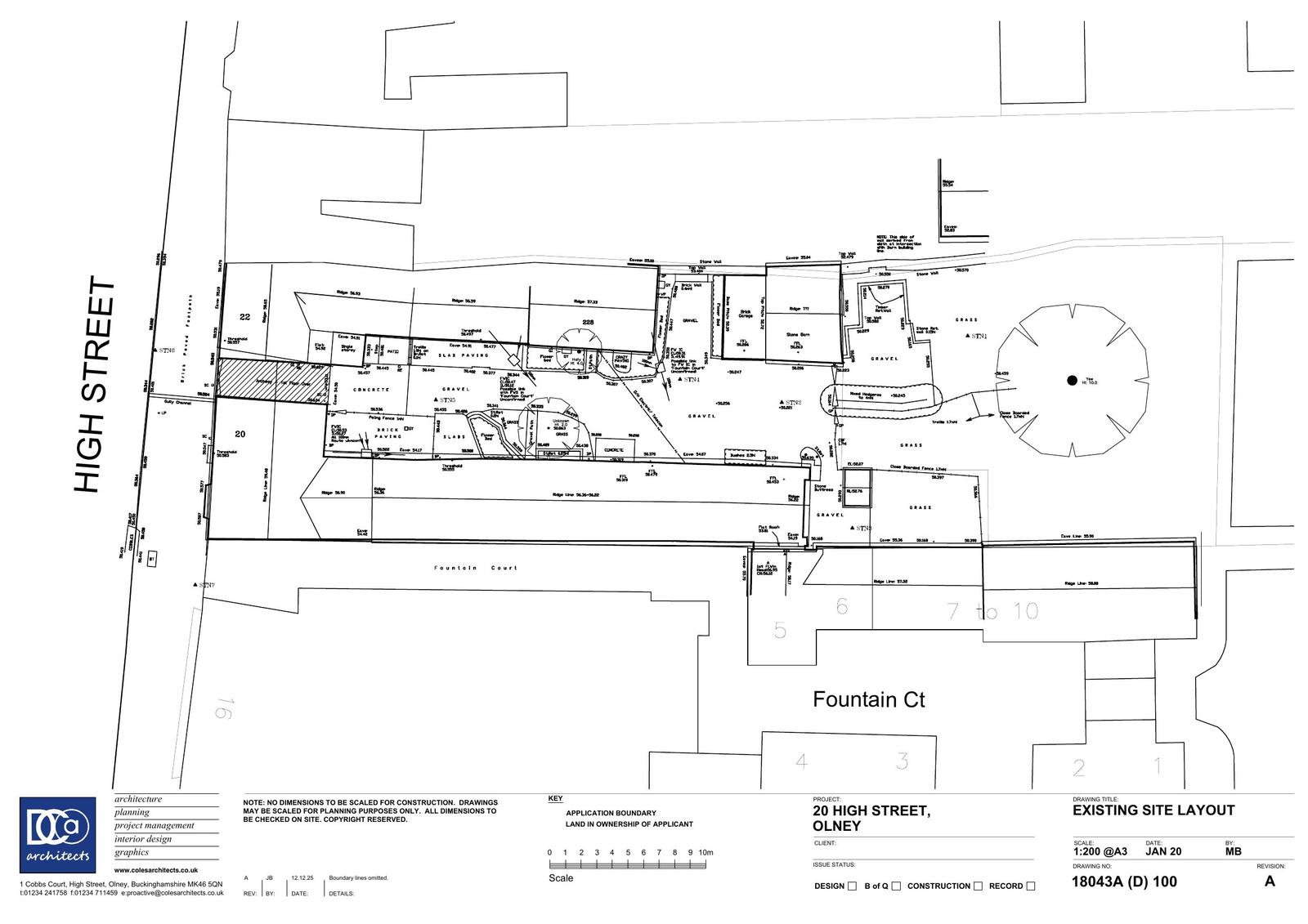
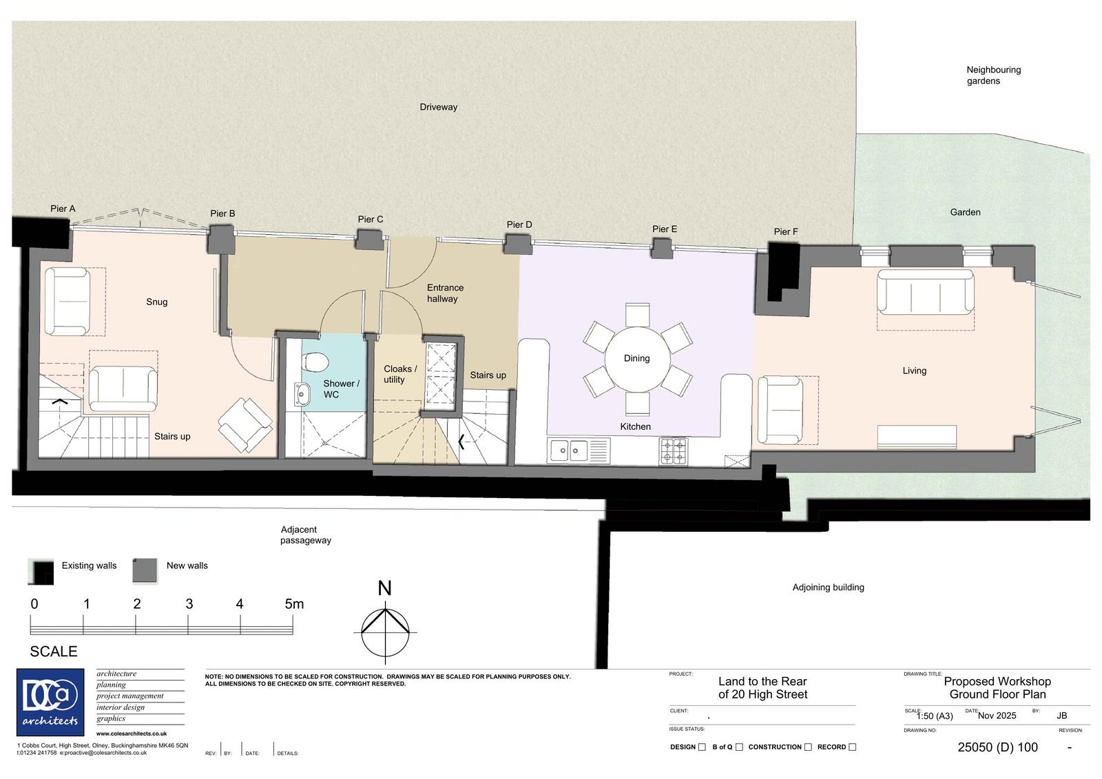
Reference PLN/2026/0235 Application type Full planning permission Site address 20 HIGH STREET, OLNEY, MK46 4BB Description Change of use from a workshop (Use Class E) to a three bedroom dwelling (Use Class C3) with the erection of a rear extension and the installation of rooflights to the north roofslope. Change of use of the storage barn (Use Class B8) to a home office with guest bedroom (Use Class C3) with the demolition of the existing single storey lean-to extension and the installation of a rooflight to the south roofslope. Landscaping, parking provisions and associated works Status Under Consultation Decision

Documents

Uncategorised
Archived · Original link
Uncategorised
Archived · Original link
Uncategorised
Archived · Original link
Uncategorised
Archived · Original link
Uncategorised
Archived · Original link
Uncategorised
Archived · Original link
Uncategorised
Archived · Original link
Uncategorised
Archived · Original link
Uncategorised
Archived · Original link
Uncategorised
Archived · Original link
Uncategorised
Archived · Original link
Uncategorised
Archived · Original link
Uncategorised
Archived · Original link
Uncategorised
Archived · Original link
Uncategorised
Archived · Original link
Uncategorised
Archived · Original link
Uncategorised
Archived · Original link
Uncategorised
Archived · Original link
Uncategorised
Archived · Original link
Uncategorised
Archived · Original link

Have your say

Your comment matters. Councils must consider every representation that raises material planning considerations.

Write a comment