PLN/2026/0295
Milton Keynes City Council
Status
Pending
House extension
Received
Not recorded
New homes
0
Full proposal
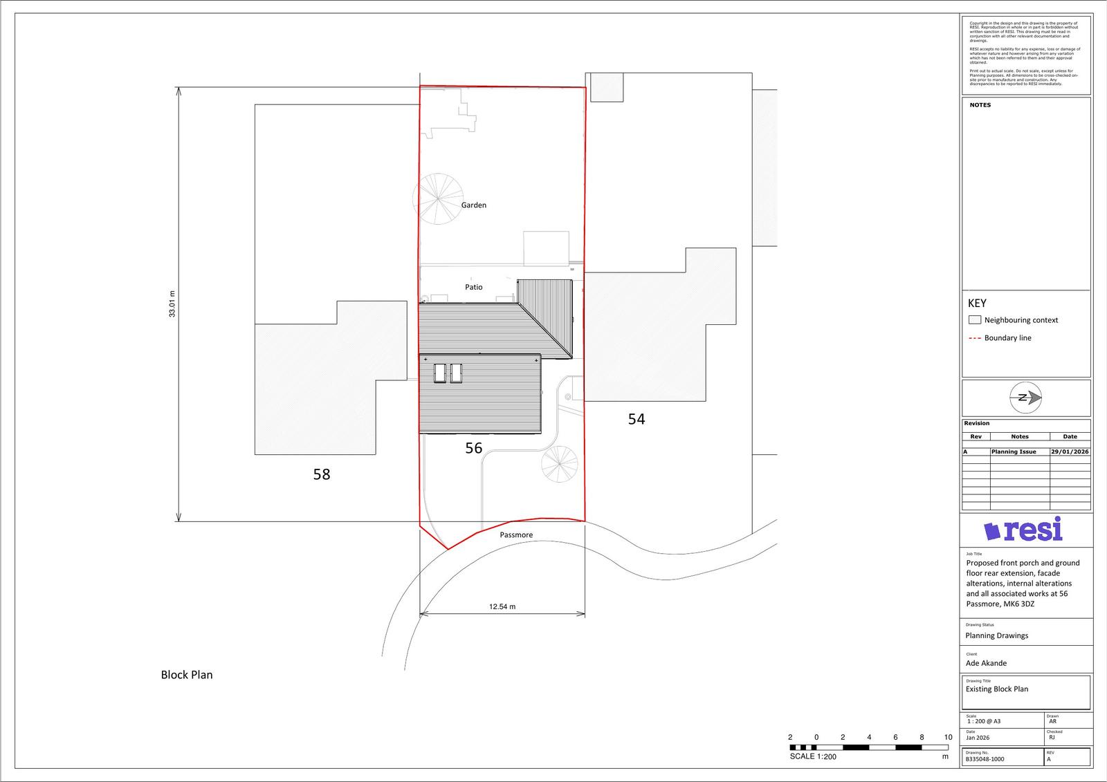
Reference PLN/2026/0295 Application type Householder planning permission Site address 56 PASSMORE, TINKERS BRIDGE, MILTON KEYNES, MK6 3DZ Description Erection of front porch and ground floor rear extension, facade alterations, internal alterations and all associated works Status Under Consultation Decision
Documents
Have your say
Your comment matters. Councils must consider every representation that raises material planning considerations.