← Milton Keynes City Council

Status

Pending House extension
Received
Not recorded
New homes
0

Full proposal

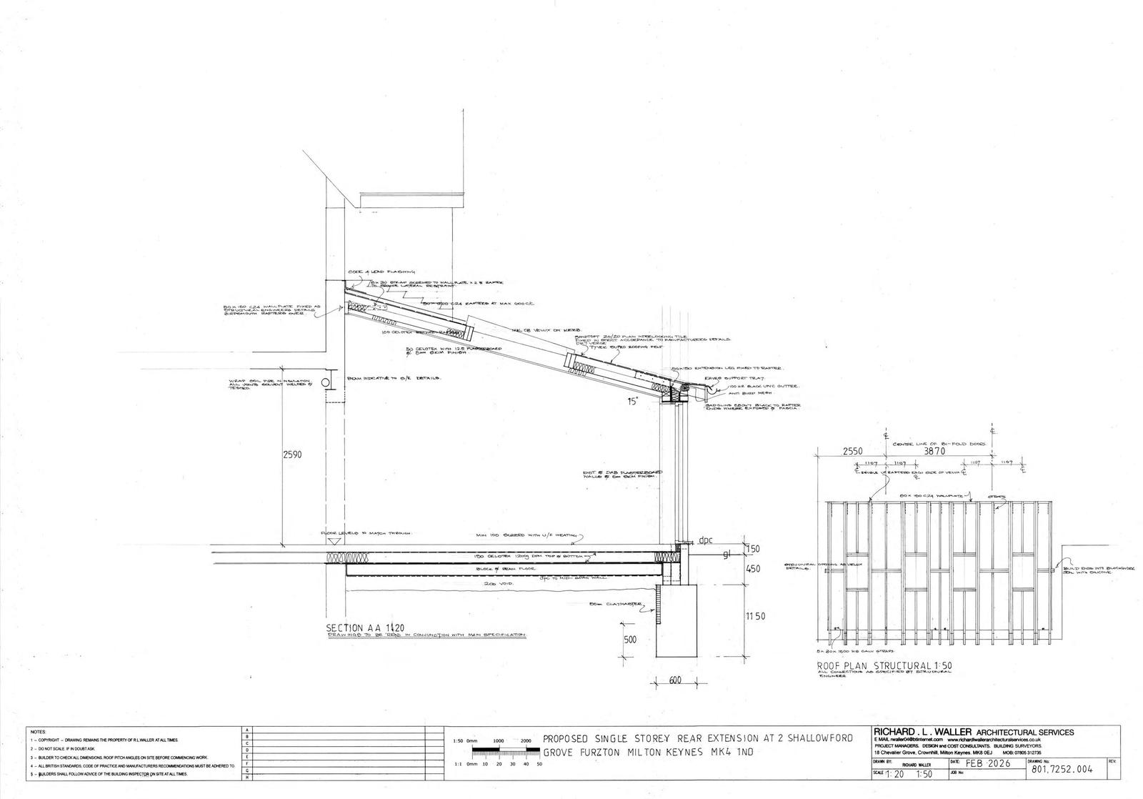
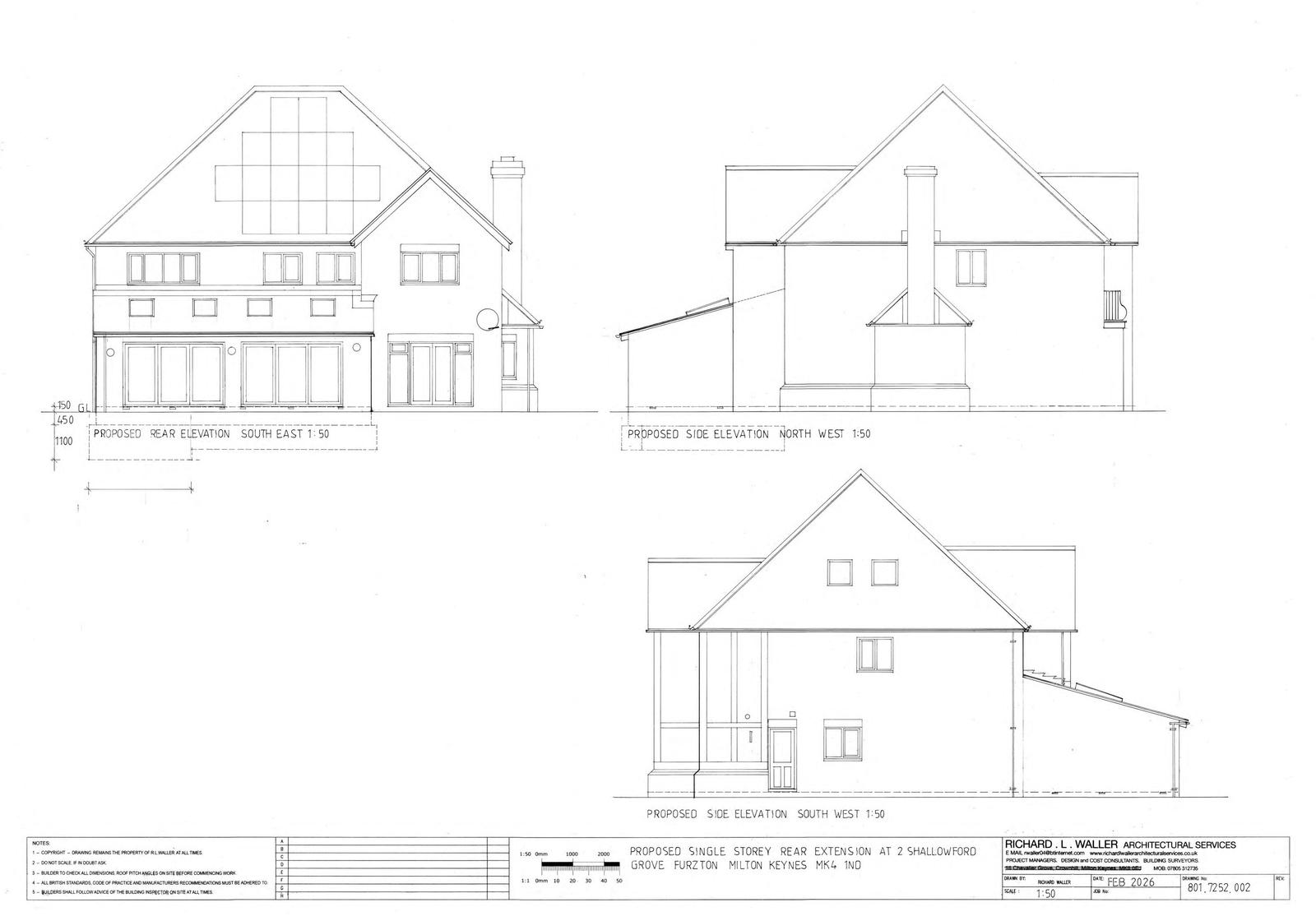
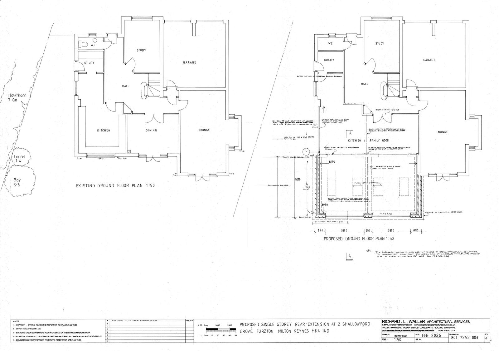
Reference PLN/2026/0322 Application type Householder planning permission Site address 2 SHALLOWFORD GROVE, FURZTON, MILTON KEYNES, MK4 1ND Description Erection of a single storey rear extension Status Under Consultation Decision

Documents

Uncategorised
Archived · Original link
Uncategorised
Archived · Original link
Uncategorised
Archived · Original link
Uncategorised
Archived · Original link
Uncategorised
Archived · Original link

Have your say

Your comment matters. Councils must consider every representation that raises material planning considerations.

Write a comment