← Milton Keynes City Council

Status

Pending House extension
Received
Not recorded
New homes
0

Full proposal

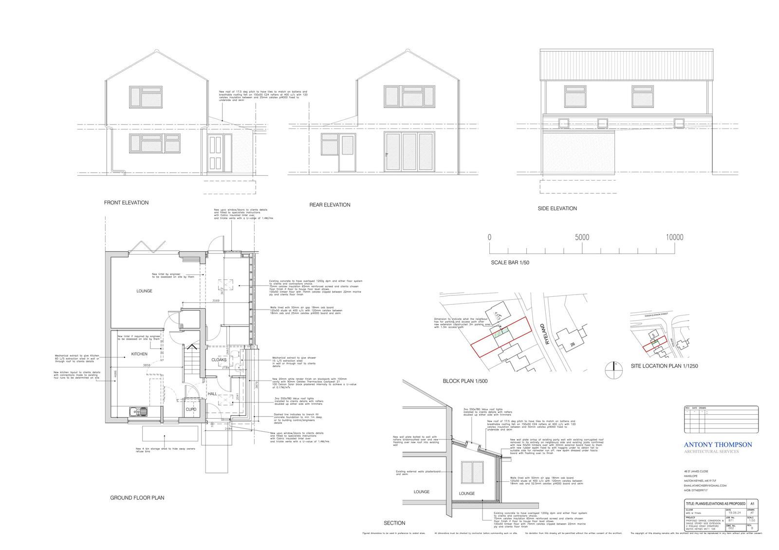
Reference PLN/2026/0363 Application type Householder planning permission Site address 2 RYELAND, STONY STRATFORD, MILTON KEYNES, MK11 1DB Description Proposed garage conversion with single storey side extension and new pitched roof over garage/extension Status Under Consultation Decision

Documents

Uncategorised
Archived · Original link
Uncategorised
Archived · Original link
Uncategorised
Archived · Original link

Have your say

Your comment matters. Councils must consider every representation that raises material planning considerations.

Write a comment