← New Forest District Council

Status

Awaiting decision New housing
Received
30 Dec 2024
New homes
200

Summary

Hybrid application for up to 200 homes, new vehicular access, public open space and pedestrian access.

Full proposal

Hybrid planning application comprising: 1. Outline application for the demolition of 2no. residential bungalows and existing farm buildings, the construction of up to 200 homes (including affordable homes) and the creation of a primary new vehicular access onto Rollestone Road (with layout, scale, appearance and landscaping left as reserved matters). 2. Full (detailed) application for the provision of public open space and an Area of Natural Recreational Greenspace (ANRG) and the creation of a new pedestrian access onto Rollestone Road. (Amended Reason to Advertise)

Documents

ACTIVE TRAAVEL ENGLAND STANDING ADVICE RESPONSE
Consultee Comment
Not yet archived · Original link
AFF HOUSING ACCOMMODATION SCH.REV N
Submitted Applications
Not yet archived · Original link
AGENT CORRESPONDENCE
Applications Processing
Not yet archived · Original link
AGENT EMAIL
Applications Processing
Not yet archived · Original link
AGENT EMAIL
Applications Processing
Not yet archived · Original link
AGENT EMAIL RE AMENDMENTS TO ENVIRONMENTAL STATEMENT
Post Decision & Conditions Monitoring
Not yet archived · Original link
AGENT EMAIL RE ECOLOGY
Applications Processing
Not yet archived · Original link
AGRICULTURAL LAND CLASSIFICATION & SOIL REPORT
Submitted Applications
Not yet archived · Original link
AIR QUALITY ASSESSMENT V6
Submitted Applications
Not yet archived · Original link
AMENDED ILLUSTRATIVE MASTERPLAN
Plans
Not yet archived · Original link
AMENDED OPEN SPACE PLAN
Plans
Not yet archived · Original link
AMENDED PLANS SITE NOTICE
Applications Processing
Not yet archived · Original link
ANRG MANAGEMENT PLAN
Submitted Applications
Not yet archived · Original link
APPLICANT COVER LETTER
Submitted Applications
Not yet archived · Original link
APPLICANT PLANNING STATEMENT REV 2
Submitted Applications
Not yet archived · Original link
APPLICATION FORM REDACTED
Submitted Applications
Not yet archived · Original link
APPX 1 STATEMENT COMM. INVOLVEMENT
Submitted Applications
Not yet archived · Original link
ARBORICULTURAL IMPLICATIONS REPORT OCT 2025
Submitted Applications
Not yet archived · Original link
ARCHAEOLOGICAL DESK BASED ASSESSMENT
Submitted Applications
Not yet archived · Original link
ARCHAEOLOGIST COMMENTS
Consultee Comment
Not yet archived · Original link
ARCHAEOLOGIST COVER EMAIL TO COMMENTS
Consultee Comment
Not yet archived · Original link
ARCHAEOLOGY UPDATE
Consultee Comment
Not yet archived · Original link
BLUESTAR BUS CO.
Consultee Comment
Not yet archived · Original link
BNG REPORT (OCTOBER 2025)
Submitted Applications
Not yet archived · Original link
BUILT HERITAGE STATEMENT (OCTOBER 2025)
Submitted Applications
Not yet archived · Original link
C1 - TECHNICAL APPENDIX 1.1
Submitted Applications
Not yet archived · Original link
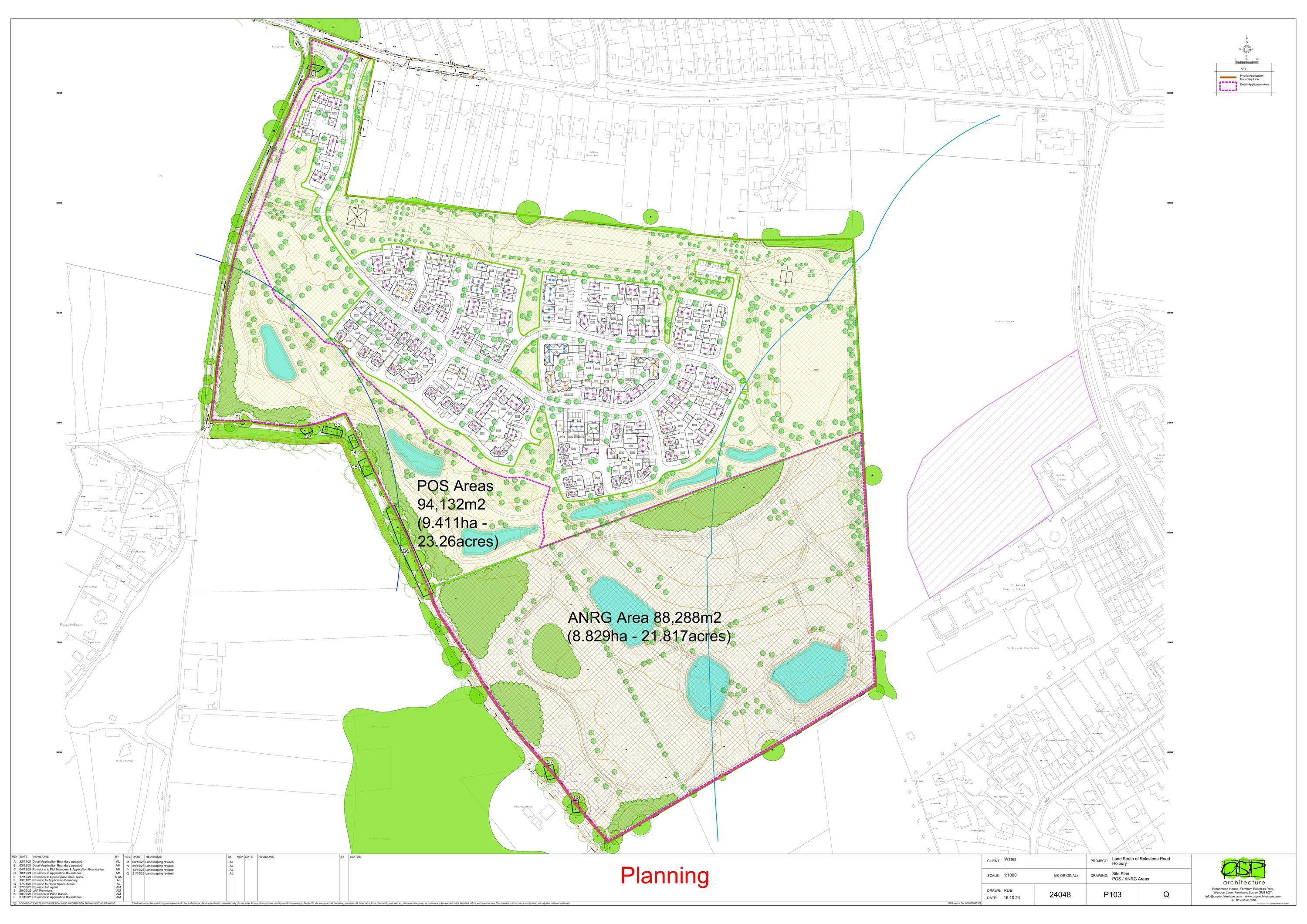
C3 - P103F (POS AND ANRG AREAS)
Submitted Applications
Not yet archived · Original link
C3 - TECHNICAL APPENDIX 3.1
Submitted Applications
Not yet archived · Original link
C3 - TECHNICAL APPENDIX 3.2
Submitted Applications
Not yet archived · Original link
C3 - TECHNICAL APPENDIX 3.3
Submitted Applications
Not yet archived · Original link
C3 - TECHNICAL APPENDIX 3.4
Submitted Applications
Not yet archived · Original link
C3 - TECHNICAL APPENDIX 3.5
Submitted Applications
Not yet archived · Original link
C3 - TECHNICAL APPENDIX 3.6
Submitted Applications
Not yet archived · Original link
C6 - APPENDIX_6.1
Submitted Applications
Not yet archived · Original link
C6 - APPENDIX_6.2
Submitted Applications
Not yet archived · Original link
C6 - APPENDIX_6.3
Submitted Applications
Not yet archived · Original link
C7 - TECHNICAL APPENDIX 7-1
Submitted Applications
Not yet archived · Original link
C7 - TECHNICAL APPENDIX 7-10
Submitted Applications
Not yet archived · Original link
C7 - TECHNICAL APPENDIX 7-11
Submitted Applications
Not yet archived · Original link
C7 - TECHNICAL APPENDIX 7-12
Submitted Applications
Not yet archived · Original link
C7 - TECHNICAL APPENDIX 7-13
Submitted Applications
Not yet archived · Original link
C7 - TECHNICAL APPENDIX 7-15
Submitted Applications
Not yet archived · Original link
C7 - TECHNICAL APPENDIX 7-16
Submitted Applications
Not yet archived · Original link
C7 - TECHNICAL APPENDIX 7-17
Submitted Applications
Not yet archived · Original link
C7 - TECHNICAL APPENDIX 7-18
Submitted Applications
Not yet archived · Original link
C7 - TECHNICAL APPENDIX 7-2
Submitted Applications
Not yet archived · Original link
C7 - TECHNICAL APPENDIX 7-3
Submitted Applications
Not yet archived · Original link
C7 - TECHNICAL APPENDIX 7-4
Submitted Applications
Not yet archived · Original link
C7 - TECHNICAL APPENDIX 7-5
Submitted Applications
Not yet archived · Original link
C7 - TECHNICAL APPENDIX 7-6
Submitted Applications
Not yet archived · Original link
C7 - TECHNICAL APPENDIX 7-7
Submitted Applications
Not yet archived · Original link
C7 - TECHNICAL APPENDIX 7-8
Submitted Applications
Not yet archived · Original link
C7 - TECHNICAL APPENDIX 7-9
Submitted Applications
Not yet archived · Original link
C7.14 - FIGURE 7.1 REV3
Submitted Applications
Not yet archived · Original link
C7.14 - FIGURE 7.3 REV3
Submitted Applications
Not yet archived · Original link
C7.14 - FIGURE 7.4 REV3
Submitted Applications
Not yet archived · Original link
C7.14 - FIGURE 7.47 REV2
Submitted Applications
Not yet archived · Original link
C7.14 - FIGURE 7.5 REV2
Submitted Applications
Not yet archived · Original link
C7.14 - FIGURE 7.6 REV2
Submitted Applications
Not yet archived · Original link
C7.14 - FIGURE 7.7 REV 5
Submitted Applications
Not yet archived · Original link
C7.14 - FIGURE 7.8 REV3
Submitted Applications
Not yet archived · Original link
C7.14 - TECHNICAL APPENDIX 7-14_LVIA ES CHAPTER FIGURES
Submitted Applications
Not yet archived · Original link
C8 - TECHNICAL APPENDIX 8.2
Submitted Applications
Not yet archived · Original link
C8 - TECHNICAL APPENDIX 8.3
Submitted Applications
Not yet archived · Original link
CASE OFFICER CLARIFICATION RESPONSE TO OBJECTOR
Applications Processing
Not yet archived · Original link
CHRIS BAILEY 4 BROKENFORD AVE
Representees
Not yet archived · Original link
CIL FORM
Submitted Applications
Not yet archived · Original link
CLARIFICATION FROM NATIONAL GRID
Consultee Comment
Not yet archived · Original link
CLARIFICATION NFDC CONSERVATION OFFICER
Consultee Comment
Not yet archived · Original link
CLARIFICATION ON THE NATURE OF THE APPLICATION AND IN RELATION TO VEHICULAR ACCE
Applications Processing
Not yet archived · Original link
CONSULTEE - ARCHAEOLOGIST
Consultee Comment
Not yet archived · Original link
CONSULTEE - CLLR PETER ARMSTRONG
Consultee Comment
Not yet archived · Original link
CONSULTEE - CRIME PREVENTION DESIGN ADVISOR
Consultee Comment
Not yet archived · Original link
CONSULTEE - ENVIRONMENTAL HEALTH (POLLUTION)
Consultee Comment
Not yet archived · Original link
CONSULTEE - ENVIRONMENTAL HEALTH COMMENT
Consultee Comment
Not yet archived · Original link
CONSULTEE - FAWLEY PARISH COUNCIL
Consultee Comment
Not yet archived · Original link
CONSULTEE - FAWLEY PARISH COUNCIL, GANG WARILY COMMUNITY CENTRE
Consultee Comment
Not yet archived · Original link
CONSULTEE - FAWLEY PARISH COUNCIL, GANG WARILY COMMUNITY CENTRE
Consultee Comment
Not yet archived · Original link
CONSULTEE - HCC HIGHWAYS
Consultee Comment
Not yet archived · Original link
CONSULTEE - HCC MINERALS AND WASTE PLANNING
Consultee Comment
Not yet archived · Original link
CONSULTEE - HCC MINERALS AND WASTE PLANNING
Consultee Comment
Not yet archived · Original link
CONSULTEE - HCC MINERALS AND WASTE PLANNING
Consultee Comment
Not yet archived · Original link
CONSULTEE - HCC PUBLIC HEALTH
Consultee Comment
Not yet archived · Original link
CONSULTEE - HCC SURFACE WATER
Consultee Comment
Not yet archived · Original link
CONSULTEE - HCC SURFACE WATER
Consultee Comment
Not yet archived · Original link
CONSULTEE - NATIONAL GAS GRID COMPANY
Consultee Comment
Not yet archived · Original link
CONSULTEE - NATURAL ENGLAND
Consultee Comment
Not yet archived · Original link
CONSULTEE - NEW FOREST NATIONAL PARK
Consultee Comment
Not yet archived · Original link
CONSULTEE - NFDC CONTAMINATED LAND
Consultee Comment
Not yet archived · Original link
CONSULTEE - SOUTHERN WATER
Consultee Comment
Not yet archived · Original link
CONSULTEE - SOUTHERN WATER COMMENT
Consultee Comment
Not yet archived · Original link
CONSULTEE - VERDERERS COMMENT
Consultee Comment
Not yet archived · Original link
CONSULTEE ACTIVE TRAVEL ENGLAND
Consultee Comment
Not yet archived · Original link
CONSULTEE COMMENT - CHILDCARE DEVELOPMENT OFFICER
Consultee Comment
Not yet archived · Original link
CONSULTEE COMMENT - NATIONAL GRID
Consultee Comment
Not yet archived · Original link
CONSULTEE HCC COUNTRYSIDE SERVICE
Consultee Comment
Not yet archived · Original link
CONSULTEE HCC HIGHWAYS
Consultee Comment
Not yet archived · Original link
CONSULTEE HCC PUBLIC HEALTH
Consultee Comment
Not yet archived · Original link
CONSULTEE LLFA
Consultee Comment
Not yet archived · Original link
CONSULTEE NHS HAMPSHIRE AND ISLE OF WIGHT INTERGRATED CARE BOARD
Consultee Comment
Not yet archived · Original link
CONSULTEE RESPONSE - CONSERVATION
Consultee Comment
Not yet archived · Original link
CONSULTEE RESPONSE - CONSERVATION
Consultee Comment
Not yet archived · Original link
CONSULTEE RESPONSE - ENVIRONMENTAL DESIGN
Consultee Comment
Not yet archived · Original link
CONSULTEE RESPONSE - TREES
Consultee Comment
Not yet archived · Original link
CONSULTEE RESPONSE - TREES
Consultee Comment
Not yet archived · Original link
CONSULTEE SERVICES FOR YOUNG CHILDREN
Consultee Comment
Not yet archived · Original link
CONSULTEE SOUTHERN WATER
Consultee Comment
Not yet archived · Original link
CONSULTEE SOUTHERN WATER
Consultee Comment
Not yet archived · Original link
CONSULTEE SOUTHERN WATER
Consultee Comment
Not yet archived · Original link
COVER EMAIL FROM AGENT TO REVISED DRAINAGE PLAN
Applications Processing
Not yet archived · Original link
COVER EMAIL RE DRAINAGE TECHNICAL NOTE & PLANS
Reports
Not yet archived · Original link
COVER EMAIL TO HIGHWAYS NOTE TO LHA
Applications Processing
Not yet archived · Original link
COVER EMAIL TO HOUSING MIX AMENDMENTS
Applications Processing
Not yet archived · Original link
COVER EMAIL TO WATER AUTH COMMENTS
Consultee Comment
Not yet archived · Original link
COVERING LETTER
Submitted Applications
Not yet archived · Original link
DEMOLITION PLAN
Plans
Not yet archived · Original link
DESIGN & ACCESS STATE. PART 1
Submitted Applications
Not yet archived · Original link
DESIGN & ACCESS STATE. PART 2
Submitted Applications
Not yet archived · Original link
DESIGN & ACCESS STATE. PART 3
Submitted Applications
Not yet archived · Original link
DESIGN & ACCESS STATE. PART 4
Submitted Applications
Not yet archived · Original link
DESIGN & ACCESS STATEMENT PART 5
Submitted Applications
Not yet archived · Original link
DESIGN & ACCESS STATEMENT WHOLE
Submitted Applications
Not yet archived · Original link
DETAILED DRAINAGE STRATEGY V9 PART 1
Submitted Applications
Not yet archived · Original link
DETAILED DRAINAGE STRATEGY V9 PART 2
Submitted Applications
Not yet archived · Original link
DETAILED DRAINAGE STRATEGY V9 WHOLE DOC
Submitted Applications
Not yet archived · Original link
DEVELOPER ECOLOGY RESPONSE
Applications Processing
Not yet archived · Original link
DEVELOPER RESPONSE TO LHA
Applications Processing
Not yet archived · Original link
DRAFT ROLLESTONE ROAD IMPROVEMENT WORKS
Plans
Not yet archived · Original link
DRAINAGE DETAILS POND A/B V9 PT 7
Submitted Applications
Not yet archived · Original link
DRAINAGE DETAILS POND C/D V9 PART 8
Submitted Applications
Not yet archived · Original link
DRAINAGE DETAILS POND E/F V9 PART 9
Submitted Applications
Not yet archived · Original link
DRAINAGE DETAILS POND G/H V9 PART 10
Submitted Applications
Not yet archived · Original link
DRAINAGE DETAILS POND I V9 PART 11
Submitted Applications
Not yet archived · Original link
DRAINAGE DETAILS SHT 1 V9 PART 5
Submitted Applications
Not yet archived · Original link
DRAINAGE DETAILS SHT 2 V9 PART 6
Submitted Applications
Not yet archived · Original link
DRAINAGE DETAILS SITE LAYOUT V9 PART 4
Submitted Applications
Not yet archived · Original link
DRAINAGE EXCEEDANCE FLOW LAYOUT V9 PT 3
Submitted Applications
Not yet archived · Original link
DRAINAGE EXCEEDANCE FLOW ROUTE LAYOUT
Plans
Not yet archived · Original link
DRAINAGE FLOOD RISK ASSESSMENT V9
Submitted Applications
Not yet archived · Original link
DRAINAGE FLOOD RISK ASSESSMENT V9 OPTIMIZED
Submitted Applications
Not yet archived · Original link
DRAINAGE FOUL STRATEGY V8
Submitted Applications
Not yet archived · Original link
DRAINAGE FOUL STRATEGY V8 OPTIMIZED
Submitted Applications
Not yet archived · Original link
DRAINAGE SURFACE WATER STRATEGY V9
Submitted Applications
Not yet archived · Original link
DRAINAGE SURFACE WATER STRATEGY V9 OPTIMIZED
Submitted Applications
Not yet archived · Original link
DRAINAGE TECHNICAL NOTE ADDENDUM
Reports
Not yet archived · Original link
DRAWING ISSUE SHEET OCT 25
Plans
Not yet archived · Original link
ECOLOGICAL ASSESSMENT (OCT 2025)
Submitted Applications
Not yet archived · Original link
ECOLOGY SOLUTIONS REPORT
Reports
Not yet archived · Original link
ECONOMIC BENEFITS SUMMARY STATEMENT
Submitted Applications
Not yet archived · Original link
EMAIL FROM AGENT
Submitted Applications
Not yet archived · Original link
ENV STATEMENT CONTENTS & INDEX
Applications Processing
Not yet archived · Original link
ENV. STATEMENT ADDENDUM VOL 2 APPENDICES
Submitted Applications
Not yet archived · Original link
ENV.STATEMENT ADDENDUM VOL 1 MAIN STATEMENT
Submitted Applications
Not yet archived · Original link
ENV.STATEMENT ADDENDUM VOL 3 NTS
Submitted Applications
Not yet archived · Original link
ENVIRONMENT AGENCY
Consultee Comment
Not yet archived · Original link
ESA APPENDIX 6.1 ARCHAEOLOGICAL DESK BASED ASSESSMENT
Submitted Applications
Not yet archived · Original link
ESA APPENDIX 6.2 BUILT HERITAGE STATEMENT
Submitted Applications
Not yet archived · Original link
ESA APPENDIX 6.3 ARCHAEOLOGICAL EVALUATION REPORT
Submitted Applications
Not yet archived · Original link
ESA APPENDIX 7.1 ADDITIONAL DETAILED LANDSCAPE POLICY
Submitted Applications
Not yet archived · Original link
ESA APPENDIX 8.1 UPDATED SURVEY GRAPHICS
Submitted Applications
Not yet archived · Original link
ESA APPX 1.1 LOCATION PLAN
Plans
Not yet archived · Original link
ESA APPX 1.2 COMPETENCY STATEMENT
Submitted Applications
Not yet archived · Original link
ESA APPX 3.1 HEIGHTS PARAMETER PLAN
Plans
Not yet archived · Original link
ESA APPX 3.1 LAND USE PARAMETER PLAN
Plans
Not yet archived · Original link
ESA APPX 3.1 MOVEMENT PARAMETER PLAN
Plans
Not yet archived · Original link
ESA APPX 3.2 ILLUSTRATIVE MASTERPLAN
Plans
Not yet archived · Original link
ESA APPX 3.3 SITE LAYOUT
Plans
Not yet archived · Original link
ESA APPX 7.2 CONTENTS PAGE
Submitted Applications
Not yet archived · Original link
ESA APPX 7.2 LANDSCAPE MASTERPLAN
Submitted Applications
Not yet archived · Original link
ESA APPX 7.2 OPENSPACE PLAN REV 8
Submitted Applications
Not yet archived · Original link
ESA APPX 7.2 SETTLEMENT FORM & SEPARATION
Plans
Not yet archived · Original link
ESA APPX 7.2 VIEWPOINTS
Plans
Not yet archived · Original link
ESA APPX 7.2 VIEWPOINTS
Plans
Not yet archived · Original link
ESA APPX 7.2 VISUALIZATION PLAN
Plans
Not yet archived · Original link
ESA APPX 7.2 ZONE OF THEORETICAL VISIBILITY
Plans
Not yet archived · Original link
ESA APPX 7.2 ZONE OF THEORETICAL VISIBILITY
Submitted Applications
Not yet archived · Original link
ESA APPX. 7.2 LANDSCAPE GEN. ARRANGE. 1 0F 2
Submitted Applications
Not yet archived · Original link
EXTENSION OF TIME
Applications Processing
Not yet archived · Original link
EXTENSION OF TIME
Applications Processing
Not yet archived · Original link
EXTENSION OF TIME TO 13 MARCH 2026
Applications Processing
Not yet archived · Original link
FRAMEWORK TRAVEL PLAN
Plans
Not yet archived · Original link
FRAMEWORK TRAVEL PLAN - VOL 1
Submitted Applications
Not yet archived · Original link
FRAMEWORK TRAVEL PLAN - VOL 2
Submitted Applications
Not yet archived · Original link
FRANK TILLYER EMAIL
Applications Processing
Not yet archived · Original link
GROUND APPRAISAL REPORT - PART 1
Submitted Applications
Not yet archived · Original link
GROUND APPRAISAL REPORT - PART 1D
Applications Processing
Not yet archived · Original link
GROUND APPRAISAL REPORT - PART 1E
Applications Processing
Not yet archived · Original link
GROUND APPRAISAL REPORT - PART 2
Submitted Applications
Not yet archived · Original link
GROUND APPRAISAL REPORT - PART 3
Submitted Applications
Not yet archived · Original link
GROUND APPRAISAL REPORT PART 1A
Applications Processing
Not yet archived · Original link
GROUND APPRAISAL REPORT PART 1B
Applications Processing
Not yet archived · Original link
GROUND APPRAISAL REPORT PART 1C
Applications Processing
Not yet archived · Original link
GUIDANCE FOR WORK NEAR ELECTRIC LINES
Consultee Comment
Not yet archived · Original link
HAMPHSIRE CHILDREN'S SERVICES
Consultee Comment
Not yet archived · Original link
HAMPSHIRE HIGHWAY AUTHORITY
Consultee Comment
Not yet archived · Original link
HANTS & IOW FIRE PROTECTION
Consultee Comment
Not yet archived · Original link
HANTS/IOW FIRE & RESCUE SERVICE
Consultee Comment
Not yet archived · Original link
HCC COUNTRYSIDE FURTHER COMMENTS
Consultee Comment
Not yet archived · Original link
HEALTH AND SAFETY EXECUTIVE
Consultee Comment
Not yet archived · Original link
HISTORIC ENGLAND
Consultee Comment
Not yet archived · Original link
HRA TECHNICAL NOTE (OCT 2025)
Submitted Applications
Not yet archived · Original link
HRA TECHNICAL REVIEW
Submitted Applications
Not yet archived · Original link
ILLUSTRATIVE DRAINAGE BASIN SECTIONS
Plans
Not yet archived · Original link
ILLUSTRATIVE LANDSCAPE MASTERPLAN REV 12
Submitted Applications
Not yet archived · Original link
ILLUSTRATIVE MASTERPLAN
Plans
Not yet archived · Original link
INSPIRE LEARNING P'SHIP
Consultee Comment
Not yet archived · Original link
J HAWKINS HAZELDENE SOUTHAMTPTON ROAD
Representees
Not yet archived · Original link
JULIE NEWMAN 15 RIDLEY CLOSE
Representees
Not yet archived · Original link
JUSTIN PACKMAN - ON BEHALF OF THE RESIDENTS OF HOLBURY
Representees
Not yet archived · Original link
JUSTIN PACKMAN - ON BEHALF OF THE RESIDENTS OF HOLBURY
Representees
Not yet archived · Original link
LAND CONTAMINATION DESK STUDY - PART 2
Submitted Applications
Not yet archived · Original link
LAND CONTAMINATION DESK STUDY PART 1
Submitted Applications
Not yet archived · Original link
LAND CONTAMINATION DESK STUDY PART 1 APPENDIX A
Submitted Applications
Not yet archived · Original link
LANDSCAPE & ECOLOGY MANAGEMENT PLAN
Submitted Applications
Not yet archived · Original link
LANDSCAPE & ECOLOGY MANAGEMENT PLAN (OCT 2025)
Submitted Applications
Not yet archived · Original link
LANDSCAPE AND STREET FURNITURE DETAILS 3 PLANS
Plans
Not yet archived · Original link
LANDSCAPE GENERAL ARRANGEMENTS PLANS
Plans
Not yet archived · Original link
LIGHTING ASSESSMENT V5
Submitted Applications
Not yet archived · Original link
LINE PROFILE DRAWING GUIDE
Consultee Comment
Not yet archived · Original link
MINERAL SAFEGUARDING REPORT (OCT 2025)
Submitted Applications
Not yet archived · Original link
MINERALS SAFEGUARDING ASSESSMENT
Submitted Applications
Not yet archived · Original link
MOVEMENT PARAMETER PLAN
Plans
Not yet archived · Original link
MRS SUE WELLS, 61 RENDA ROAD
Representees
Not yet archived · Original link
MTG NOTE BETWEEN DEVELOPER AND LLFA
Applications Processing
Not yet archived · Original link
NATIONAL GRID ELECTRICITY
Consultee Comment
Not yet archived · Original link
NATURAL ENGLAND
Consultee Comment
Not yet archived · Original link
NATURAL ENGLAND UPDATED COMMENTS
Consultee Comment
Not yet archived · Original link
NATURE SPACE GCN
Consultee Comment
Not yet archived · Original link
NATURE SPACE RE GCN
Consultee Comment
Not yet archived · Original link
NEW FOREST NATIONAL PARK
Consultee Comment
Not yet archived · Original link
NFDC ECOLOGIST
Consultee Comment
Not yet archived · Original link
NFDC ECOLOGY
Consultee Comment
Not yet archived · Original link
NFDC ECOLOGY
Consultee Comment
Not yet archived · Original link
NFDC EHO (AIR QUALITY)
Consultee Comment
Not yet archived · Original link
NFDC ENVIRONMENTAL DESIGN
Consultee Comment
Not yet archived · Original link
NFDC HOUSING
Consultee Comment
Not yet archived · Original link
NFDC HOUSING
Consultee Comment
Not yet archived · Original link
NFDC HOUSING INIATIVES MANAGER
Consultee Comment
Not yet archived · Original link
NFDC LANDSCAPE
Consultee Comment
Not yet archived · Original link
NFDC LANDSCAPE
Consultee Comment
Not yet archived · Original link
NFDC OPEN SPACES
Consultee Comment
Not yet archived · Original link
NFDC PRE APP RESPONSE
Pre-Application Enquiries
Not yet archived · Original link
NFDC URBAN DESIGN COMMENTS
Pre-Application Enquiries
Not yet archived · Original link
NHS HAMPSHIRE AND ISLE OF WIGHT INTERGRATED CARE BOARD
Consultee Comment
Not yet archived · Original link
NOISE IMPACT ASSESSMENT
Submitted Applications
Not yet archived · Original link
NOTICE LETTERS - NOTICES
Submitted Applications
Not yet archived · Original link
NPA ARCHAEOLOGIST
Consultee Comment
Not yet archived · Original link
NUTRIENT NEUTRALITY STRATEGY
Submitted Applications
Not yet archived · Original link
NUTRIENT NEUTRALITY STRATEGY (OCT 2025)
Submitted Applications
Not yet archived · Original link
OFF SITE HIGHWAY IMPROVEMENTS NOTE AND COSTINGS
Applications Processing
Not yet archived · Original link
OPEN SPACE PLAN
Plans
Not yet archived · Original link
PARAMETER PLAN BUILDING HEIGHTS
Plans
Not yet archived · Original link
PARAMETER PLAN LAND USE
Plans
Not yet archived · Original link
PARAMETER PLAN MOVEMENT
Plans
Not yet archived · Original link
PLAN 1 OF TOWERS AND LINE
Consultee Comment
Not yet archived · Original link
PLAN 2 OF TOWERS AND LINE
Consultee Comment
Not yet archived · Original link
PLAN 3 OF TOWERS AND LINE
Consultee Comment
Not yet archived · Original link
PLANNING CASE OFFICER UPDATE
Applications Processing
Not yet archived · Original link
PLANNING STATEMENT
Submitted Applications
Not yet archived · Original link
PLANTING PLAN POS/ANRG 1 OF 10
Plans
Not yet archived · Original link
PLANTING PLAN POS/ANRG 10 OF 10
Plans
Not yet archived · Original link
PLANTING PLAN POS/ANRG 2 OF 10
Plans
Not yet archived · Original link
PLANTING PLAN POS/ANRG 3 OF 10
Plans
Not yet archived · Original link
PLANTING PLAN POS/ANRG 4 OF 10
Plans
Not yet archived · Original link
PLANTING PLAN POS/ANRG 5 OF 10
Plans
Not yet archived · Original link
PLANTING PLAN POS/ANRG 6 OF 10
Plans
Not yet archived · Original link
PLANTING PLAN POS/ANRG 7 OF 10
Plans
Not yet archived · Original link
PLANTING PLAN POS/ANRG 8 OF 10
Plans
Not yet archived · Original link
PLANTING PLAN POS/ANRG 9 OF 10
Plans
Not yet archived · Original link
PLANTING PLAN POS/ANRG KEY PLAN
Plans
Not yet archived · Original link
PROPOSED CROSSING TO THE WEST OF HOBSON WAY
Plans
Not yet archived · Original link
REPRESENTEE - A BRADLEY. 5 WATTON ROAD
Representees
Not yet archived · Original link
REPRESENTEE - A CLERSE, 9 BROADLEY CLOSE
Representees
Not yet archived · Original link
REPRESENTEE - A E TRIM, 11 ASHDOWN ROAD
Representees
Not yet archived · Original link
REPRESENTEE - ADRIAN NEAL, 18 HAYLEY CLOSE
Representees
Not yet archived · Original link
REPRESENTEE - ADRIENNE KENNEDY, 2 BUTTS ASH COTTAGES
Representees
Not yet archived · Original link
REPRESENTEE - ALAN BETTS, 4 FIELDS CLOSE
Representees
Not yet archived · Original link
REPRESENTEE - ALAN DAVIES, 37 THE GLADE
Representees
Not yet archived · Original link
REPRESENTEE - ALAN NICOL, 42 LARKSPUR GARDENS
Representees
Not yet archived · Original link
REPRESENTEE - ALAN WILLIAMS AND DALLAS NICHOLSON, 9 BEECHWOOD WAY
Representees
Not yet archived · Original link
REPRESENTEE - ALEX LEEKE LOMOND EXBURY ROAD
Representees
Not yet archived · Original link
REPRESENTEE - ALEXANDER ROWSELL, 11 GLEN ROAD
Representees
Not yet archived · Original link
REPRESENTEE - ALISON HEWETT, KENT HOUSE, KINGS COPSE ROAD
Representees
Not yet archived · Original link
REPRESENTEE - ALISON HUNT, 1 COPSESIDE PARK
Representees
Not yet archived · Original link
REPRESENTEE - ALISON KERNAGHAN, 8 HOBSON WAY
Representees
Not yet archived · Original link
REPRESENTEE - ALLAN CURREY, 9 ROLLESTONE ROAD
Representees
Not yet archived · Original link
REPRESENTEE - AMANDA FENWICK, SOUTH LODGE
Representees
Not yet archived · Original link
REPRESENTEE - AMANDA HOWELLS, 42 THE GLADE, LANGLEY
Representees
Not yet archived · Original link
REPRESENTEE - AMANDA HOWELLS. 42 THE GLADE. BLACKFIELD
Representees
Not yet archived · Original link
REPRESENTEE - AMANDA SCOTT, VILLA ROSA, PAULETTS LANE
Representees
Not yet archived · Original link
REPRESENTEE - AMANDA VAUGHAN, JOURNEYS END, LIME KILN LANE
Representees
Not yet archived · Original link
REPRESENTEE - ANDE PHEAR, 9 TRENLEY CLOSE
Representees
Not yet archived · Original link
REPRESENTEE - ANDREW BLACKMUN, 15 RIDLEY CLOSE, HOLBURY
Representees
Not yet archived · Original link
REPRESENTEE - ANDREW HILL, ROMAN ROAD HOUSE
Representees
Not yet archived · Original link
REPRESENTEE - ANDREW REECE, 5 FROST LANE
Representees
Not yet archived · Original link
REPRESENTEE - ANDREW TEAGUE, 5 MAY CRESCENT
Representees
Not yet archived · Original link
REPRESENTEE - ANDY BUTLER, 81 WHITEFIELD ROAD
Representees
Not yet archived · Original link
REPRESENTEE - ANDY THOMAS, RONALDA, THORNBURY AVENUE
Representees
Not yet archived · Original link
REPRESENTEE - ANGUS DEVINE, 29 GREAT ELMS CLOSE
Representees
Not yet archived · Original link
REPRESENTEE - ANN MCKELL, 8 ALUM CLOSE
Representees
Not yet archived · Original link
REPRESENTEE - ANNA ARMSTRONG, SILVER BIRCHES
Representees
Not yet archived · Original link
REPRESENTEE - ANNETTE SLATTERY, 18 ELM CRESCENT
Representees
Not yet archived · Original link
REPRESENTEE - ANTHONY DRODGE, FOREST EDGE
Representees
Not yet archived · Original link
REPRESENTEE - AUDREY BRADFORD, KYNANCE, KINGS COPSE ROAD
Representees
Not yet archived · Original link
REPRESENTEE - BARBARA NICHOLLS, 20 BEECHWOOD ROAD
Representees
Not yet archived · Original link
REPRESENTEE - BARRIE J LLEWELLYN, LYCHETTE COTTAGE, ROUGHDOWN LANE
Representees
Not yet archived · Original link
REPRESENTEE - BEN CHURCH, 9 MAY CRESCENT
Representees
Not yet archived · Original link
REPRESENTEE - BEN DAWKINS. CHALONE. FIELDS CLOSE. BLACKFIELD
Representees
Not yet archived · Original link
REPRESENTEE - BENJAMIN JUDD, FAIRLEA, ROUGHDOWN
Representees
Not yet archived · Original link
REPRESENTEE - BERNICE COLES, SILVER BIRCHES
Representees
Not yet archived · Original link
REPRESENTEE - BETHANY CHILVERS, 3 SCOTT PAINE DRIVE
Representees
Not yet archived · Original link
REPRESENTEE - BEVERLEY STONE, 1 HOBSON WAY
Representees
Not yet archived · Original link
REPRESENTEE - BEVERLEY XXX 18 HAMPTON CLOSE. BLACKFIELD. BLACKFIELD
Representees
Not yet archived · Original link
REPRESENTEE - BRENDA JENKS, 21 MAY CRESCENT
Representees
Not yet archived · Original link
REPRESENTEE - BRIAN GLENDINNING. STONELEY. NORTHAMPTON LANE. BLACKFIELD
Representees
Not yet archived · Original link
REPRESENTEE - BRIDGET IONA COOKE 15 NELSON CLOSE
Representees
Not yet archived · Original link
REPRESENTEE - BYRON HOUNSLOW, 29 HOBSON WAY
Representees
Not yet archived · Original link
REPRESENTEE - C G BUDGE, PERRUCHE. STONEHILLS
Representees
Not yet archived · Original link
REPRESENTEE - C WARDER, 31 ROLLESTONE ROAD
Representees
Not yet archived · Original link
REPRESENTEE - C WARDER, 31 ROLLESTONE ROAD
Representees
Not yet archived · Original link
REPRESENTEE - CALLUM LEVERETT. FALLODON. KINGS COPSE ROAD. BLACKFIELD
Representees
Not yet archived · Original link
REPRESENTEE - CARL SHARAN 77 LARKSPUR GARDENS
Representees
Not yet archived · Original link
REPRESENTEE - CAROL SAXBY. 31 NEW FOREST PARK. WEST COMMON
Representees
Not yet archived · Original link
REPRESENTEE - CAROLE COOPER 17 RHYME HALL MEWS
Representees
Not yet archived · Original link
REPRESENTEE - CAROLINE SARSON, 76 LARKSPUR GARDENS
Representees
Not yet archived · Original link
REPRESENTEE - CAROLINE. DUNN, 18 HARTSGROVE AVENUE
Representees
Not yet archived · Original link
REPRESENTEE - CASEY TONA, 4 WHEELERS WALK
Representees
Not yet archived · Original link
REPRESENTEE - CATHERINE SHARPE, 43 WATTON ROAD
Representees
Not yet archived · Original link
REPRESENTEE - CATHERINE TONA, 11 WINTERS CLOSE
Representees
Not yet archived · Original link
REPRESENTEE - CATHERINE TRAN, 66 BROOKWOOD ROAD
Representees
Not yet archived · Original link
REPRESENTEE - CHARLES STEVENS, 62 ROLLESTONE ROAD
Representees
Not yet archived · Original link
REPRESENTEE - CHARLOTTE HARVEY, ROMAN ROAD HOUSE
Representees
Not yet archived · Original link
REPRESENTEE - CHARLOTTE LOWE, 37 HAMPTON CLOSE
Representees
Not yet archived · Original link
REPRESENTEE - CHELLAN EAMES, 63 ROLLESTONE ROAD
Representees
Not yet archived · Original link
REPRESENTEE - CHLOE HARVEY, 46 DUKESWOOD DRIVE
Representees
Not yet archived · Original link
REPRESENTEE - CHLOE SHULTS, 84 ROLLESTONE ROAD
Representees
Not yet archived · Original link
REPRESENTEE - CHRIS HOSEY, 80 ROLLESTONE ROAD
Representees
Not yet archived · Original link
REPRESENTEE - CHRIS HUMPHRIES, 16 FOXTAIL DRIVE
Representees
Not yet archived · Original link
REPRESENTEE - CHRIS PARRINGTON, 3 KINGS RIDE
Representees
Not yet archived · Original link
REPRESENTEE - CHRIS TONA 11 WINTERS CLOSE
Representees
Not yet archived · Original link
REPRESENTEE - CHRISTINA JUDD, FAIRLEA
Representees
Not yet archived · Original link
REPRESENTEE - CHRISTOPHER BURGESS, 54 THE WARREN
Representees
Not yet archived · Original link
REPRESENTEE - CHRISTOPHER PANDYA, 1 NURSERY FARM BUILDINGS
Representees
Not yet archived · Original link
REPRESENTEE - CLAIRE FIDDES, CLOVELLY
Representees
Not yet archived · Original link
REPRESENTEE - CLAIRE MCLOUGHLIN, 16 MILLIKEN CLOSE
Representees
Not yet archived · Original link
REPRESENTEE - CLAIRE MILGATE-WHITCHER, 47 CALSHOT ROAD
Representees
Not yet archived · Original link
REPRESENTEE - CLAIRE SHEPPARD, WILVERLEY
Representees
Not yet archived · Original link
REPRESENTEE - CLAIRE VENABLES, 7 CRAWTE AVENUE
Representees
Not yet archived · Original link
REPRESENTEE - CLARE HAWKINS, 6 SHERWOOD WAY
Representees
Not yet archived · Original link
REPRESENTEE - CLARE LAMONT, 30 WALTONS AVENUE
Representees
Not yet archived · Original link
REPRESENTEE - COLEEN E LLEWELLYN, LYCHETTE COTTAGE, ROUGHDOWN LANE
Representees
Not yet archived · Original link
REPRESENTEE - COLES ANDREW, SILVER BIRCHES, NORTH ROAD
Representees
Not yet archived · Original link
REPRESENTEE - COLIN GRIFFITHS, 146 ROLLESTONE
Representees
Not yet archived · Original link
REPRESENTEE - COLIN LAURENCE WALDEN, 75 LARKSPUR GARDENS
Representees
Not yet archived · Original link
REPRESENTEE - COLIN WHITMAN, 42 ROEWOOD CLOSE
Representees
Not yet archived · Original link
REPRESENTEE - COUNCILLOR SHAY MILGATE, 47 CALSHOT CLOSE
Representees
Not yet archived · Original link
REPRESENTEE - COURTNEY WILSON
Representees
Not yet archived · Original link
REPRESENTEE - CRAIG AVERY, 104 HAMPTON LANE
Representees
Not yet archived · Original link
REPRESENTEE - CRAIG BUTLER, 23 CEDRIC CLOSE
Representees
Not yet archived · Original link
REPRESENTEE - CRAIG DUNN, 18 HARTSGROVE AVENUE
Representees
Not yet archived · Original link
REPRESENTEE - D HILL, ROMAN ROAD HOUSE, BELL LANE
Representees
Not yet archived · Original link
REPRESENTEE - D K JENKINS, 7 LAKEWOOD ROAD
Representees
Not yet archived · Original link
REPRESENTEE - D SLOCOMBE, 49 WATERFORD LANE, LYMINGTON
Representees
Not yet archived · Original link
REPRESENTEE - DAISY DEBELL, HOLLYMEAD, WEST COMMON
Representees
Not yet archived · Original link
REPRESENTEE - DAVID AND LUCINDA LANG, 43 ROLLESTONE ROAD
Representees
Not yet archived · Original link
REPRESENTEE - DAVID GREEN, 46 MOPLEY CLOSE
Representees
Not yet archived · Original link
REPRESENTEE - DAVID LAW, THE COACH HOUSE
Representees
Not yet archived · Original link
REPRESENTEE - DAVID LEVERETT, FALLODEN, KINGS COPSE ROAD
Representees
Not yet archived · Original link
REPRESENTEE - DAVID PITHERS, 59 HOBSON WAY
Representees
Not yet archived · Original link
REPRESENTEE - DAVID STORRY, WEETWOOD, NORTH ROAD
Representees
Not yet archived · Original link
REPRESENTEE - DAWN HALL, 16 MOAT CLOSE
Representees
Not yet archived · Original link
REPRESENTEE - DEBBIE COLE, 114 ROLLESTONE ROAD
Representees
Not yet archived · Original link
REPRESENTEE - DEBBIE SHRIVE, GREEN EDGE, NORTHAMPTON LANE
Representees
Not yet archived · Original link
REPRESENTEE - DEBORAH COX, 19 HARVEY GARDENS
Representees
Not yet archived · Original link
REPRESENTEE - DEBORAH ORRIS, WILLOWS, GARDEN CITY, MAIN ROAD
Representees
Not yet archived · Original link
REPRESENTEE - DELLA HEMS, 39 ROLLESTONE ROAD
Representees
Not yet archived · Original link
REPRESENTEE - DELLA HEMS, 39 ROLLESTONE ROAD
Representees
Not yet archived · Original link
REPRESENTEE - DENISE BOLAM, ALVREDISTON, THE DROVE
Representees
Not yet archived · Original link
REPRESENTEE - DENISE WALDEN, 75 LARKSPUR GARDENS
Representees
Not yet archived · Original link
REPRESENTEE - DEREK PHILLIPS, 3 LONG COPSE COTTAGES
Representees
Not yet archived · Original link
REPRESENTEE - DEREK W PHILLIPS, 3 LONG COPSE COTTAGES
Representees
Not yet archived · Original link
REPRESENTEE - DIANA PECKHAM, 38 ROLLESTONE ROAD
Representees
Not yet archived · Original link
REPRESENTEE - DIANE MAYO, 4 STANLEY ROAD
Representees
Not yet archived · Original link
REPRESENTEE - DONNA WHEELER, 9 TRENLEY CLOSE
Representees
Not yet archived · Original link
REPRESENTEE - DOUGLAS JOHNSON, 10 HURSLEY DRIVE
Representees
Not yet archived · Original link
REPRESENTEE - DR ALYSON PENDLEBURY, 1, WHITEFIELD RD
Representees
Not yet archived · Original link
REPRESENTEE - DR HEIDI SHAW, WILBERT HOUSE
Representees
Not yet archived · Original link
REPRESENTEE - DR KEITH BROWN, FOREST LODGE, ROUGHDOWN LANE
Representees
Not yet archived · Original link
REPRESENTEE - E EARL, 10 TIMBERLEY CLOSE
Representees
Not yet archived · Original link
REPRESENTEE - EILEEN KEEN, 36 THE WARREN
Representees
Not yet archived · Original link
REPRESENTEE - ELENA KING, 44 WATTON ROAD
Representees
Not yet archived · Original link
REPRESENTEE - ELIZABETH HENDRY 25 WATTON ROAD
Representees
Not yet archived · Original link
REPRESENTEE - ELIZABETH YOUNG, GOLF VIEW, THE DROVE
Representees
Not yet archived · Original link
REPRESENTEE - EMERSON DENT, 84 ROLLESTONE ROAD
Representees
Not yet archived · Original link
REPRESENTEE - EMMA DAVIES, OVERHILL, EXBURY ROAD
Representees
Not yet archived · Original link
REPRESENTEE - EMMA DENT, 84 ROLLESTONE ROAD
Representees
Not yet archived · Original link
REPRESENTEE - EMMA DOYLE, 15 NELSON CLOSE
Representees
Not yet archived · Original link
REPRESENTEE - EMMA MILLS, 22 HEATHER ROAD
Representees
Not yet archived · Original link
REPRESENTEE - EMMA SAUNDERS, 22 PAVILION GARDENS
Representees
Not yet archived · Original link
REPRESENTEE - EMMA-JANE ASHLEY, 9 MAY CRESCENT
Representees
Not yet archived · Original link
REPRESENTEE - ESMERALDA MAUNDER, 3 CEDAR ROAD
Representees
Not yet archived · Original link
REPRESENTEE - FIONA HAWKINS, 6 SOUTHBOURNE AVENUE
Representees
Not yet archived · Original link
REPRESENTEE - FLEUR HOUNSLOW, 29 HOBSON WAY
Representees
Not yet archived · Original link
REPRESENTEE - FORESTRY ENGLAND, THE KINGS HOUSE
Representees
Not yet archived · Original link
REPRESENTEE - FRANK TILLYER, ROWDOWN COTTAGE
Representees
Not yet archived · Original link
REPRESENTEE - FRANK TILLYER, ROWDOWN COTTAGE
Representees
Not yet archived · Original link
REPRESENTEE - FRANK TILLYER, ROWDOWN COTTAGE
Representees
Not yet archived · Original link
REPRESENTEE - FRANK TILLYER, ROWDOWN COTTAGE
Representees
Not yet archived · Original link
REPRESENTEE - FRANK TILLYER, ROWDOWN COTTAGE
Representees
Not yet archived · Original link
REPRESENTEE - FRED DUNN, 18 HARTSGROVE AVENUE
Representees
Not yet archived · Original link
REPRESENTEE - G & P HOLMES, 5 ROLLESTONE ROAD
Representees
Not yet archived · Original link
REPRESENTEE - GARY MOORCROFT, ALVEDISTON, THE DROVE
Representees
Not yet archived · Original link
REPRESENTEE - GAVIN COLE, 114 ROLLESTONE ROAD
Representees
Not yet archived · Original link
REPRESENTEE - GEMMA WICKERS 34 ROEWOOD ROAD
Representees
Not yet archived · Original link
REPRESENTEE - GENEVIEVE SOMES, THE COTTAGE
Representees
Not yet archived · Original link
REPRESENTEE - GEOFF CROSS, 4 MAY CRESCENT
Representees
Not yet archived · Original link
REPRESENTEE - GEOFF HOOLE, 8 CRAWTE AVENUE
Representees
Not yet archived · Original link
REPRESENTEE - GEORGIE JUDD, FAIRLEA, ROUGHDOWN
Representees
Not yet archived · Original link
REPRESENTEE - GEORGINA JENKINS, ROWDOWN COTTAGE
Representees
Not yet archived · Original link
REPRESENTEE - GEORGINA OLIVER-HARRIS, 51 CRAWTE AVENUE
Representees
Not yet archived · Original link
REPRESENTEE - GILLIAN SWORN, 54 RENDA ROAD
Representees
Not yet archived · Original link
REPRESENTEE - GLENN HOBBS, 5 ASHDOWN
Representees
Not yet archived · Original link
REPRESENTEE - GLENN SWORN, 54 RENDA ROAD
Representees
Not yet archived · Original link
REPRESENTEE - GRACE GREGORY, KINGS COPSE FARM, KINGS COPSE ROAD
Representees
Not yet archived · Original link
REPRESENTEE - GRACE NICOL, 63 SOUTHBOURNE AVENUE
Representees
Not yet archived · Original link
REPRESENTEE - GRAHAM BICKNELL, 14 SPRINGFIELD AVENUE
Representees
Not yet archived · Original link
REPRESENTEE - GREG MCEWAN, 2 STAGBRAKE CLOSE
Representees
Not yet archived · Original link
REPRESENTEE - GREGORY DE LA NOUGEREDE, 17 SPRINGFIELD AVENUE
Representees
Not yet archived · Original link
REPRESENTEE - H E BUTEUX, 17 SHERWOOD WAY
Representees
Not yet archived · Original link
REPRESENTEE - H SCAUM, 20 MARY DRAKE CLOSE
Representees
Not yet archived · Original link
REPRESENTEE - HANNAH BURDEN. 4 VIKING CLOSE. BLACKFIELD
Representees
Not yet archived · Original link
REPRESENTEE - HANNAH JENNINGS 91 HEATHER ROAD
Representees
Not yet archived · Original link
REPRESENTEE - HANNAH STONE 10 SOUTHBOURNE AVENUE
Representees
Not yet archived · Original link
REPRESENTEE - HANNAH YOUNG 17 SPRINGFIELD AVENEU
Representees
Not yet archived · Original link
REPRESENTEE - HARRY COBBING. 60 STUDLEY AVENUE. HOLBURY
Representees
Not yet archived · Original link
REPRESENTEE - HARRY SHERRIFF 3 ASHLEY CROSS AVENUE
Representees
Not yet archived · Original link
REPRESENTEE - HAYLEY HEWETT, 4 HAMPTON CLOSE
Representees
Not yet archived · Original link
REPRESENTEE - HAYLEY POINTER 8 HARTSGROVE CLOSE
Representees
Not yet archived · Original link
REPRESENTEE - HAZEL BUTLER, 81 WHITEFIELD ROAD
Representees
Not yet archived · Original link
REPRESENTEE - HEATHER ROBSON. KINGS COPSE. BLACKFIELD
Representees
Not yet archived · Original link
REPRESENTEE - HEATHER WHITE KINGS COPSE FARM
Representees
Not yet archived · Original link
REPRESENTEE - HEATHER WHITE, KINGS COPSE FARM
Representees
Not yet archived · Original link
REPRESENTEE - HELEN RICHARDS HALL, LAUREL COTTAGE
Representees
Not yet archived · Original link
REPRESENTEE - HILARY DICKS 7 ROSE ROAD
Representees
Not yet archived · Original link
REPRESENTEE - I LOVELL, KINGS COPSE FARM
Representees
Not yet archived · Original link
REPRESENTEE - IAN SHRIVE GREEN EDGE
Representees
Not yet archived · Original link
REPRESENTEE - ISAAC LOVELL, KINGS COPSE FARM
Representees
Not yet archived · Original link
REPRESENTEE - IVAN MANSTON, ROLLESTONE FARM
Representees
Not yet archived · Original link
REPRESENTEE - J R MACKENZIE, 28 MORRIS CLOSE
Representees
Not yet archived · Original link
REPRESENTEE - J STANBRIDGE
Representees
Not yet archived · Original link
REPRESENTEE - JAMES BRADLEY, ST MICHEALS, ST MICHAELS CLOSE
Representees
Not yet archived · Original link
REPRESENTEE - JAMES HARDIE, 8 HARTSGROVE CLOSE
Representees
Not yet archived · Original link
REPRESENTEE - JAMES JUDD, FAIRLEA, ROUGHDOWN
Representees
Not yet archived · Original link
REPRESENTEE - JAMIE JAMES, 8 CONIFER CLOSE
Representees
Not yet archived · Original link
REPRESENTEE - JAN BRADLEY, 5 WATTON ROAD
Representees
Not yet archived · Original link
REPRESENTEE - JANE BANNER, 2 LITTLE STANDSWOOD COTTAGES
Representees
Not yet archived · Original link
REPRESENTEE - JANE BRIXTON-WILES, 2 STEPHEN COURT
Representees
Not yet archived · Original link
REPRESENTEE - JANE DURBAN, 11 NELSON CLOSE
Representees
Not yet archived · Original link
REPRESENTEE - JANE LEWIS, 4 HARVEY GARDENS
Representees
Not yet archived · Original link
REPRESENTEE - JANE PATZ - 55 ROLLESTONE ROAD
Representees
Not yet archived · Original link
REPRESENTEE - JANE STREETS, 26 ROLLESTONE ROAD
Representees
Not yet archived · Original link
REPRESENTEE - JANE WILLIAMS, WHITE COTTAGE, STONEHILLS
Representees
Not yet archived · Original link
REPRESENTEE - JANIS ORCHARD, DRIFTWOOD HOUSE, THE DROVE
Representees
Not yet archived · Original link
REPRESENTEE - JASON PLANK, 42 THE GLADE, LANGLEY
Representees
Not yet archived · Original link
REPRESENTEE - JAYNE PHILLIP
Representees
Not yet archived · Original link
REPRESENTEE - JAYNE PHILLIPS ON BEHALF OF HOOFF HANDS OFF OUR FOREST & FARMLAND
Representees
Not yet archived · Original link
REPRESENTEE - JAYNE PHILLIPS, 3 LONG COPSE COTTAGES
Representees
Not yet archived · Original link
REPRESENTEE - JEAN OSBOURNE, 133 LONG LANE
Representees
Not yet archived · Original link
REPRESENTEE - JEANETTE MACKENZIE, 28 MORRIS CLOSE
Representees
Not yet archived · Original link
REPRESENTEE - JENIFER NEEDHAM, 17 MAY COTTAGE
Representees
Not yet archived · Original link
REPRESENTEE - JENNIFER WITT, 13 MERRIMEADE CLOSE
Representees
Not yet archived · Original link
REPRESENTEE - JESSICA BOOTH, 27 BEECHWOOD ROAD
Representees
Not yet archived · Original link
REPRESENTEE - JOANNA ROBSON, 4 OATFIELD GARDENS
Representees
Not yet archived · Original link
REPRESENTEE - JOANNE HOBBS, 5 ASHDOWN
Representees
Not yet archived · Original link
REPRESENTEE - JOANNE READ, 1 ALUM CLOSE
Representees
Not yet archived · Original link
REPRESENTEE - JODIE COOKE, 23 OAKLEY CLOSE
Representees
Not yet archived · Original link
REPRESENTEE - JOE LENNORD, 18 OLD SCHOOL CLOSE
Representees
Not yet archived · Original link
REPRESENTEE - JOHN BIGG, 68 LONG COPSE
Representees
Not yet archived · Original link
REPRESENTEE - JOHN BIGG, 68 LONG COPSE
Representees
Not yet archived · Original link
REPRESENTEE - JOHN COWLING, 10 SOUTHBOURNE AVENUE
Representees
Not yet archived · Original link
REPRESENTEE - JOHN HALL, 24 GREAT ELMS DRIVE
Representees
Not yet archived · Original link
REPRESENTEE - JOHN HALL, KINGS COPSE FARM, KINGS COPSE ROAD
Representees
Not yet archived · Original link
REPRESENTEE - JOHN MORTON 5 HUGHES CLOSE
Representees
Not yet archived · Original link
REPRESENTEE - JOHN NEEDHAM, 13 WHITEFIELD ROAD
Representees
Not yet archived · Original link
REPRESENTEE - JOHN ROWE, 10 OAKLEY CLOSE
Representees
Not yet archived · Original link
REPRESENTEE - JOHN SIBLEY, 104 ROLLESTONE ROAD
Representees
Not yet archived · Original link
REPRESENTEE - JOHN SMITH, 42 ROLLESTONE ROAD
Representees
Not yet archived · Original link
REPRESENTEE - JOHNATHON & JULIE NICOLLS, BYWAYS
Representees
Not yet archived · Original link
REPRESENTEE - JONATHAN POWS, 1 HOBSON WAY
Representees
Not yet archived · Original link
REPRESENTEE - JORDAN COOKSON, 15 RIDLEY CLOSE
Representees
Not yet archived · Original link
REPRESENTEE - JOSH HILL, ROMAN ROAD HOUSE
Representees
Not yet archived · Original link
REPRESENTEE - JOSHUA LYONS, 16 ALUM CLOSE
Representees
Not yet archived · Original link
REPRESENTEE - JOSHUA MCCULLIE, 67 ROLLESTONE ROAD
Representees
Not yet archived · Original link
REPRESENTEE - JOSHUA OLIPHANT, PORTHCAWL
Representees
Not yet archived · Original link
REPRESENTEE - JUDITH BELL, 18 OAK ROAD
Representees
Not yet archived · Original link
REPRESENTEE - JULIA J DYER, 37 ROLLESTONE ROAD
Representees
Not yet archived · Original link
REPRESENTEE - JULIA LAW, THE COACH HOUSE
Representees
Not yet archived · Original link
REPRESENTEE - JULIE HOPE, 44 ROLLESTONE ROAD
Representees
Not yet archived · Original link
REPRESENTEE - JULIE NASH, 29 GREAT ELMS CLOSE
Representees
Not yet archived · Original link
REPRESENTEE - JULIE PITHERS, 59 HOBSON WAY
Representees
Not yet archived · Original link
REPRESENTEE - JULIE ROBSON, 2 STAGBRAKE CLOSE
Representees
Not yet archived · Original link
REPRESENTEE - JULIE SMITH, 26 HAYES MEAD
Representees
Not yet archived · Original link
REPRESENTEE - JULIE STUBBS 19 FOREST EDGE
Representees
Not yet archived · Original link
REPRESENTEE - JULIE TARRANT, 2 HOBSON WAY
Representees
Not yet archived · Original link
REPRESENTEE - JUNE DENHAM 31 OAKLEY CLOSE
Representees
Not yet archived · Original link
REPRESENTEE - JUSTIN LEONARD MOORLANDS THE DROVE
Representees
Not yet archived · Original link
REPRESENTEE - JUSTIN PACKMAN - ON BEHALF OF THE RESIDENTS OF HOLBURY
Representees
Not yet archived · Original link
REPRESENTEE - JUSTIN PACKMAN - ON BEHALF OF THE RESIDENTS OF HOLBURY
Representees
Not yet archived · Original link
REPRESENTEE - JUSTIN PACKMAN ON BEHALF OF RESIDENTS OF HOLBURY
Representees
Not yet archived · Original link
REPRESENTEE - JUSTIN SANDALLS 136 ROLLESTONE ROAD
Representees
Not yet archived · Original link
REPRESENTEE - JUSTINE BAYLEY ON BEHALF OF VERDERERS OF THE NEW FOREST
Representees
Not yet archived · Original link
REPRESENTEE - K J SWEETING 9 WALKERS LANE SOUTH
Representees
Not yet archived · Original link
REPRESENTEE - K MACSWEEN 37 HOLBURY DROVE
Representees
Not yet archived · Original link
REPRESENTEE - K OLRR, 1A WHITEFIELD ROAD
Representees
Not yet archived · Original link
REPRESENTEE - KAIRLYN SAIGER 46 CRAWTE AVENUE
Representees
Not yet archived · Original link
REPRESENTEE - KAREN BICKNELL 14 SPRINGFIELD AVENUE
Representees
Not yet archived · Original link
REPRESENTEE - KAREN BOOTH 27 BEACHWOOD ROAD
Representees
Not yet archived · Original link
REPRESENTEE - KAREN CHILDS. 16 BOWER CLOSE. HOLBURY
Representees
Not yet archived · Original link
REPRESENTEE - KAREN KITCHER 2 BADMINSTEIN COTTAGES CALSHOT ROAD
Representees
Not yet archived · Original link
REPRESENTEE - KAREN PEIRCE 29 HAMPTON LANE
Representees
Not yet archived · Original link
REPRESENTEE - KAREN SHANNAN 77 LARKSPUR GARDENS
Representees
Not yet archived · Original link
REPRESENTEE - KAREN STEWART. 21 BLENHEIM GARDENS. DIDEN PURLIEU
Representees
Not yet archived · Original link
REPRESENTEE - KATE HUMPHREY ASHFORD BLACKFIELD ROAD
Representees
Not yet archived · Original link
REPRESENTEE - KATHARINE LONG 24 ROSEWOOD GARDENS
Representees
Not yet archived · Original link
REPRESENTEE - KATHLEEN DRAYCOTT. 64 ROLLESTONE ROAD. HOLBURY
Representees
Not yet archived · Original link
REPRESENTEE - KATHRYN HAMMOND 26 CORSAIR DRIVE
Representees
Not yet archived · Original link
REPRESENTEE - KATIE OPENSHAW 1 DOWNWOOD CLOSE
Representees
Not yet archived · Original link
REPRESENTEE - KATIE OSBORNE 135 LONG LANE
Representees
Not yet archived · Original link
REPRESENTEE - KAY WHITTINGTON 14 MERRIEMEADE CLOSE
Representees
Not yet archived · Original link
REPRESENTEE - KAYLEIGH BARKUS, 90 STUDLEY AVENUE
Representees
Not yet archived · Original link
REPRESENTEE - KEIRA HILL. 15 SMITH CLOSE. BLACKFIELD
Representees
Not yet archived · Original link
REPRESENTEE - KEITH BROWN, FOREST LODGE
Representees
Not yet archived · Original link
REPRESENTEE - KEITH ROBSON. KINGS COPSE. BLACKFIELD
Representees
Not yet archived · Original link
REPRESENTEE - KELLEY LEONARD MOORLANDS THE DROVE
Representees
Not yet archived · Original link
REPRESENTEE - KELLY NEWMAN 15 RIDLEY CLOSE
Representees
Not yet archived · Original link
REPRESENTEE - KELLY PRESTON, 4 FOXCROFT DRIVE
Representees
Not yet archived · Original link
REPRESENTEE - KELLY SHERGOLD 26 ROEWOOD ROAD
Representees
Not yet archived · Original link
REPRESENTEE - KEMI BRATHWAIT-KELLY 21 WHITEFIELD ROAD
Representees
Not yet archived · Original link
REPRESENTEE - KENNETH & PAMELA SMITH, LITTLE ENGLAND
Representees
Not yet archived · Original link
REPRESENTEE - KENNETH COLVERSON 42 CRAWTE AVENUE.
Representees
Not yet archived · Original link
REPRESENTEE - KENNETH HOREY, 4 WHITEHOUSE CLOSE
Representees
Not yet archived · Original link
REPRESENTEE - KENNETH PECKHAM. 38 ROLLESTONE ROAD. HOLBURY
Representees
Not yet archived · Original link
REPRESENTEE - KEVIN CURTIS, 30 WALTONS AVENUE
Representees
Not yet archived · Original link
REPRESENTEE - KEVIN LEY, 158 ROLLESTONE ROAD
Representees
Not yet archived · Original link
REPRESENTEE - KIM COOKE, 7 NASH ROAD
Representees
Not yet archived · Original link
REPRESENTEE - KIM HUGHES, 100 ROLLESTONE ROAD
Representees
Not yet archived · Original link
REPRESENTEE - KIRSTY CLOVER, CHEVERELL, CHAPEL LANE
Representees
Not yet archived · Original link
REPRESENTEE - KIRSTY WOODFORD-GUTTERIDGE, 5 WALTONS AVENUE
Representees
Not yet archived · Original link
REPRESENTEE - KRYSTAL THORNE, 16 FORESTERS GATE
Representees
Not yet archived · Original link
REPRESENTEE - L. JARVIS, 54 ROLLESTONE ROAD
Representees
Not yet archived · Original link
REPRESENTEE - LAURA GLIBBERY, GANG WARILY FARM
Representees
Not yet archived · Original link
REPRESENTEE - LAURAINE MATTHEWS, 3 WHITEHAVEN PARK
Representees
Not yet archived · Original link
REPRESENTEE - LEE COATS, 44 FOREST EDGE
Representees
Not yet archived · Original link
REPRESENTEE - LESLEY WATERMAN, 10 ROLLESTONE ROAD
Representees
Not yet archived · Original link
REPRESENTEE - LIA DUNN, 18 HARTSGROVE AVENUE
Representees
Not yet archived · Original link
REPRESENTEE - LILY KATE STORRY, WEETWOOD
Representees
Not yet archived · Original link
REPRESENTEE - LINDA MARSHALL, 7 WATERMANS LANE
Representees
Not yet archived · Original link
REPRESENTEE - LINDA TEAGUE, 5 MAY CRESCENT
Representees
Not yet archived · Original link
REPRESENTEE - LINDA TEAGUE, 5 MAY CRESCENT
Representees
Not yet archived · Original link
REPRESENTEE - LINDA TEAGUE, 5 MAY CRESCENT
Representees
Not yet archived · Original link
REPRESENTEE - LISA MARCHMENT, 17 NORTHBOURNE CLOSE
Representees
Not yet archived · Original link
REPRESENTEE - LISA PEACE, 10 WHEELERS WALK
Representees
Not yet archived · Original link
REPRESENTEE - LOGAN SESSIONS, 146 ROLLESTONE ROAD
Representees
Not yet archived · Original link
REPRESENTEE - LOIS WELLMAN, 3 SYCAMORE ROAD
Representees
Not yet archived · Original link
REPRESENTEE - LOUIE HOUNSLOW, 29 HOBSON WAY
Representees
Not yet archived · Original link
REPRESENTEE - LOUISA REYNOLDS, 17 HARRIER GREEN
Representees
Not yet archived · Original link
REPRESENTEE - LOUISA WILDING, CHALONE
Representees
Not yet archived · Original link
REPRESENTEE - LOUISE FRANCIS, RED ROOFS
Representees
Not yet archived · Original link
REPRESENTEE - LOUISE HARVEY, 46 DUKESWOOD DRIVE
Representees
Not yet archived · Original link
REPRESENTEE - LOUISE OLIVER-HARRIS, 51 CRAWTE AVENUE
Representees
Not yet archived · Original link
REPRESENTEE - LUCIE MANN, 46 MOPLEY CLOSE
Representees
Not yet archived · Original link
REPRESENTEE - LUCIE MANN, 46 MOPLEY CLOSE
Representees
Not yet archived · Original link
REPRESENTEE - LUCY ORCHARD, 3 WATTON ROAD
Representees
Not yet archived · Original link
REPRESENTEE - LUCY SMITH, FLAT 4 NORTH ROAD
Representees
Not yet archived · Original link
REPRESENTEE - LUKE STERLUND, 146 ROLLESTONE ROAD
Representees
Not yet archived · Original link
REPRESENTEE - LYDIA PANDYA, 1 NURSERY FARM BUILDINGS
Representees
Not yet archived · Original link
REPRESENTEE - LYDIA STALLARD, 165 WATER LANE
Representees
Not yet archived · Original link
REPRESENTEE - LYNDON TAYLOR, 41 SOUTH STREET
Representees
Not yet archived · Original link
REPRESENTEE - LYNN DRODGE, FOREST EDGE
Representees
Not yet archived · Original link
REPRESENTEE - LYNN DRODGE, FOREST EDGE
Representees
Not yet archived · Original link
REPRESENTEE - LYNN SUTCLIFFE, 106 ROLLESTONE ROAD
Representees
Not yet archived · Original link
REPRESENTEE - LYNN TARRY, 8 BUCHAN COURT
Representees
Not yet archived · Original link
REPRESENTEE - MACEY BURROWS, 14 RIDLEY CLOSE
Representees
Not yet archived · Original link
REPRESENTEE - MAISIE GLASS, 9 ROLLESTONE ROAD
Representees
Not yet archived · Original link
REPRESENTEE - MARGARET KING, 2 WILVERLY PLACE
Representees
Not yet archived · Original link
REPRESENTEE - MARGARET MARSHALL, 55 CRAWTE AVENUE
Representees
Not yet archived · Original link
REPRESENTEE - MARGARET MARSHALL, 55 CRAWTE AVENUE
Representees
Not yet archived · Original link
REPRESENTEE - MARGARET VAUGHAN, 8 CRETE LANE
Representees
Not yet archived · Original link
REPRESENTEE - MARGARET WHITMAN, 42 ROEWOOD CLOSE
Representees
Not yet archived · Original link
REPRESENTEE - MARIA HOSEY, 80 ROLLESTONE ROAD
Representees
Not yet archived · Original link
REPRESENTEE - MARIA MARCHMENT, 157A HAMPTON LANE
Representees
Not yet archived · Original link
REPRESENTEE - MARIA SHERWOOD, 49 ROLLESTONE ROAD
Representees
Not yet archived · Original link
REPRESENTEE - MARIA SOARES, 22 LONG COPSE
Representees
Not yet archived · Original link
REPRESENTEE - MARIA TINGE, 47 ROLLESTONE ROAD
Representees
Not yet archived · Original link
REPRESENTEE - MARIE GANTER, KENWOOD
Representees
Not yet archived · Original link
REPRESENTEE - MARIE WHITE, 34 JASMINE ROAD
Representees
Not yet archived · Original link
REPRESENTEE - MARILYN BETTS, 4 FIELDS CLOSE
Representees
Not yet archived · Original link
REPRESENTEE - MARILYN DEAN, 50 ROLLESTONE ROAD
Representees
Not yet archived · Original link
REPRESENTEE - MARILYN TUFFS, 4 WILVERLEY PLACE
Representees
Not yet archived · Original link
REPRESENTEE - MARION COWLING, 10 SOUTHBOURNE AVENUE
Representees
Not yet archived · Original link
REPRESENTEE - MARION SHEPPERD, 14 ASH CLOSE
Representees
Not yet archived · Original link
REPRESENTEE - MARK WHEELER, 43 BUTTS ASH GARDEN
Representees
Not yet archived · Original link
REPRESENTEE - MARTIN BEAN, 34 ROEWOOD ROAD, HOLBURY
Representees
Not yet archived · Original link
REPRESENTEE - MARTIN GRANT, 72 ROLLESTONE ROAD
Representees
Not yet archived · Original link
REPRESENTEE - MARTIN MUDDIMAN, 56 ROLLESTONE ROAD
Representees
Not yet archived · Original link
REPRESENTEE - MARTYN HUGHES, 108 ROLLESTONE ROAD
Representees
Not yet archived · Original link
REPRESENTEE - MARY DUFFEY, 3 BRAMBLE CLOSE
Representees
Not yet archived · Original link
REPRESENTEE - MARY SMALL, 81 HAMPTON LANE
Representees
Not yet archived · Original link
REPRESENTEE - MATTHEW DENT, 84 ROLLESTONE ROAD
Representees
Not yet archived · Original link
REPRESENTEE - MATTHEW GIRARD, 17 NORTHBOURNE CLOSE
Representees
Not yet archived · Original link
REPRESENTEE - MAUREEN ALEXANDER, 61 HOLBURY DROVE
Representees
Not yet archived · Original link
REPRESENTEE - MAVIS BRANCH, 44 SAXON ROAD
Representees
Not yet archived · Original link
REPRESENTEE - MAXIMILIAN BRADLEY-OWERS, 13 SYCAMORE ROAD
Representees
Not yet archived · Original link
REPRESENTEE - MEGAN BUSBY, 4 BOWER CLOSE
Representees
Not yet archived · Original link
REPRESENTEE - MEGAN DAVIES, 37 THE GLADE
Representees
Not yet archived · Original link
REPRESENTEE - MELANIE CROSS, 4 MAY CRESCENT
Representees
Not yet archived · Original link
REPRESENTEE - MELANIE JONES, 64 HOLBURY DROVE
Representees
Not yet archived · Original link
REPRESENTEE - MICA BAILEY, 4 BROKENFORD AVENUE
Representees
Not yet archived · Original link
REPRESENTEE - MICHAEL COOPER, 17 RHYME HALL MEWS
Representees
Not yet archived · Original link
REPRESENTEE - MICHAEL FRANKS, 47 THE MILL POND
Representees
Not yet archived · Original link
REPRESENTEE - MICHAEL HARVEY, 46 DUKESWOOD DRIVE
Representees
Not yet archived · Original link
REPRESENTEE - MICHAEL LONGHORN, 1 MYVERN CLOSE
Representees
Not yet archived · Original link
REPRESENTEE - MICHAEL SHELLEY, 43 CRAWTE AVENUE
Representees
Not yet archived · Original link
REPRESENTEE - MICHAEL SHORT, 172 ROLLESTONE ROAD
Representees
Not yet archived · Original link
REPRESENTEE - MICHEAL LANE, YALOVA, NEW ROAD
Representees
Not yet archived · Original link
REPRESENTEE - MICHELLE HARVEY, 46 DUKESWOOD DRIVE
Representees
Not yet archived · Original link
REPRESENTEE - MIKE BLUNDELL, 24 LARKSPUR GARDENS
Representees
Not yet archived · Original link
REPRESENTEE - MIRANDE JONES, 3 THE GREENWICH
Representees
Not yet archived · Original link
REPRESENTEE - MIREILLE UZZELL, 60 KINGFISHER WAY
Representees
Not yet archived · Original link
REPRESENTEE - MISS ALEXANDRIA RIX, 18
Representees
Not yet archived · Original link
REPRESENTEE - MISS ALISON TILBURY, 4 LEPE FARM COTTAGES
Representees
Not yet archived · Original link
REPRESENTEE - MISS CLAIRE FARROW, 15 STUDLEY AVENUE
Representees
Not yet archived · Original link
REPRESENTEE - MISS DONNA MILLARD, CLUB COTTAGE
Representees
Not yet archived · Original link
REPRESENTEE - MISS EMMA EDGAR, 2 FIELDS CLOSE
Representees
Not yet archived · Original link
REPRESENTEE - MISS EMMA EDGAR, 2 FIELDS CLOSE
Representees
Not yet archived · Original link
REPRESENTEE - MISS EMMA LANE, 43 TRISTAN CLOSE
Representees
Not yet archived · Original link
REPRESENTEE - MISS GEORGIE JUDD, FAIRLEA
Representees
Not yet archived · Original link
REPRESENTEE - MISS HAYLEY POINTER, 8 HARTSGROVE CLOSE
Representees
Not yet archived · Original link
REPRESENTEE - MISS J BAKER, 11 MAY CRESCENT
Representees
Not yet archived · Original link
REPRESENTEE - MISS JACKIE CLEVETT, 14 ADAMS ROAD
Representees
Not yet archived · Original link
REPRESENTEE - MISS KATY BIRD, 39 DUKESWOOD DRIVE
Representees
Not yet archived · Original link
REPRESENTEE - MISS KAY HOLMES, 1 BURNT HOUSE LANE
Representees
Not yet archived · Original link
REPRESENTEE - MISS LAUREN WARR, 9 CARLTON HOUSE
Representees
Not yet archived · Original link
REPRESENTEE - MISS LOUISA REYNOLDS, 17 HARRIER GREEN
Representees
Not yet archived · Original link
REPRESENTEE - MISS LYDIA STALLARD, 165 WATER LANE
Representees
Not yet archived · Original link
REPRESENTEE - MISS M WHITE, EYPE, ROUGHDOWN
Representees
Not yet archived · Original link
REPRESENTEE - MISS MARIA SOARES, 22 LONG COPSE
Representees
Not yet archived · Original link
REPRESENTEE - MISS MEGAN BUSBY, 4 BOWER CLOSE
Representees
Not yet archived · Original link
REPRESENTEE - MISS PATRICIA HARDWICK, 20 GREAT ELMS CLOSE, HOLBURY
Representees
Not yet archived · Original link
REPRESENTEE - MISS SARAH MILLS, 26 WHITEFIELD ROAD
Representees
Not yet archived · Original link
REPRESENTEE - MISS YAZMIN HOBBS, 5 ASHDOWN
Representees
Not yet archived · Original link
REPRESENTEE - MITCHELL WONDIN, 3 WATTON ROAD
Representees
Not yet archived · Original link
REPRESENTEE - MOLLY FRANCIS, 24 WALKERS LANE SOUTH
Representees
Not yet archived · Original link
REPRESENTEE - MR & MRS BRIDGES, 10 CHERRYTON GARDENS
Representees
Not yet archived · Original link
REPRESENTEE - MR & MRS CLAY
Representees
Not yet archived · Original link
REPRESENTEE - MR & MRS CURTIS, WELWYN
Representees
Not yet archived · Original link
REPRESENTEE - MR & MRS CURTIS, WELWYN, ROUGHDOWN
Representees
Not yet archived · Original link
REPRESENTEE - MR & MRS LANG, 43 ROLLESTONE ROAD
Representees
Not yet archived · Original link
REPRESENTEE - MR & MRS LOWE, 8 NEWLANDS COPSE
Representees
Not yet archived · Original link
REPRESENTEE - MR & MRS MINTRAM, 58 ROLLESTONE ROAD
Representees
Not yet archived · Original link
REPRESENTEE - MR & MRS SMITH, 116 ROLLESTONE ROAD
Representees
Not yet archived · Original link
REPRESENTEE - MR & MRS WOODLAND, 58 RENDA ROAD
Representees
Not yet archived · Original link
REPRESENTEE - MR AARON CLARKE, 41 ROLLESTONE ROAD
Representees
Not yet archived · Original link
REPRESENTEE - MR ADAM WARDER, 1 HARTSGROVE AVENUE
Representees
Not yet archived · Original link
REPRESENTEE - MR ADAM WARDER, 1 HARTSGROVE AVENUE
Representees
Not yet archived · Original link
REPRESENTEE - MR ADNREW PATZ, 55 ROLLESTONE ROAD
Representees
Not yet archived · Original link
REPRESENTEE - MR ALAN WARD-BEST, 14 ROLLESTONE ROAD
Representees
Not yet archived · Original link
REPRESENTEE - MR ALCIDES MCEWEN, 45 WEDGEWOOD CLOSE
Representees
Not yet archived · Original link
REPRESENTEE - MR ALWYN REES, 47 ROLLESTONE ROAD HOLBURY
Representees
Not yet archived · Original link
REPRESENTEE - MR ANDREW PARRY NORTON, STORMS FARM
Representees
Not yet archived · Original link
REPRESENTEE - MR ANDREW PATZ PATZ, 55 ROLLESTONE ROAD
Representees
Not yet archived · Original link
REPRESENTEE - MR ANDREW PATZ, 55 ROLLESTONE ROAD
Representees
Not yet archived · Original link
REPRESENTEE - MR ANDREW TEAGUE, 5 MAY CRESCENT
Representees
Not yet archived · Original link
REPRESENTEE - MR ANDREW WORLOCK, GARAGE ANNEXE
Representees
Not yet archived · Original link
REPRESENTEE - MR BARRIE LLEWELLYN, LYCHETTE COTTAGE
Representees
Not yet archived · Original link
REPRESENTEE - MR BARRIE ORPEN, 8 BARCLAY MEWS
Representees
Not yet archived · Original link
REPRESENTEE - MR BEN A WATERS, 7 SHERWOOD WAY
Representees
Not yet archived · Original link
REPRESENTEE - MR BRIAN HALEY, 73 KILN LANE
Representees
Not yet archived · Original link
REPRESENTEE - MR C FRANKS, REDROOFS, KINGS COPSE ROAD
Representees
Not yet archived · Original link
REPRESENTEE - MR C J COLLINS, 77 STUDLEY AVENUE
Representees
Not yet archived · Original link
REPRESENTEE - MR C M, 49 LARKSPUR GARDENS
Representees
Not yet archived · Original link
REPRESENTEE - MR CARL WATERS, 18 SYCAMORE ROAD
Representees
Not yet archived · Original link
REPRESENTEE - MR CHARLES STARLING, 31 LYDLYNCH RD
Representees
Not yet archived · Original link
REPRESENTEE - MR CHRISTOPHER RIXON, GREENACRES,GREEN LANE
Representees
Not yet archived · Original link
REPRESENTEE - MR COLIN WALDEN, 75 LARKSPUR GARDENS
Representees
Not yet archived · Original link
REPRESENTEE - MR D C MACSHEEN, 37 HOLBURY DRIVE
Representees
Not yet archived · Original link
REPRESENTEE - MR D C MOODY, 41 NEWLANDS CLOSE
Representees
Not yet archived · Original link
REPRESENTEE - MR DAVID READHEAD, ALANDALE KINGS COPSE ROAD
Representees
Not yet archived · Original link
REPRESENTEE - MR DAVID SEVERN, 4 THE MEWS
Representees
Not yet archived · Original link
REPRESENTEE - MR EDWIN HOLTHAM, 5 HENRY CLOSE
Representees
Not yet archived · Original link
REPRESENTEE - MR EDWIN HOLTHAM, 5, HENRY CLOSE,
Representees
Not yet archived · Original link
REPRESENTEE - MR G WHITEFOOT, 32 PARK ROAD, WROXHAM, NORWICH
Representees
Not yet archived · Original link
REPRESENTEE - MR GARETH WARDER, 8 ELGIN CLOSE
Representees
Not yet archived · Original link
REPRESENTEE - MR GEORGE BETHELL, 53 ROLLESTONE ROAD
Representees
Not yet archived · Original link
REPRESENTEE - MR GEORGE WHITEFOOT, 32 PARK ROAD
Representees
Not yet archived · Original link
REPRESENTEE - MR GREG MCEWEN, 2 STAGBRAKE CLOSE
Representees
Not yet archived · Original link
REPRESENTEE - MR JAMES BLACKMAN, ASHTOPS
Representees
Not yet archived · Original link
REPRESENTEE - MR JAMES COATS, 12 ROLLESTONE ROAD
Representees
Not yet archived · Original link
REPRESENTEE - MR JAMES JUDD, FAIRLEA, ROUGHDOWN LANE, BLACKFIELD,
Representees
Not yet archived · Original link
REPRESENTEE - MR JEFFREY MCKELL, 8 ALUM CLOSE
Representees
Not yet archived · Original link
REPRESENTEE - MR JOHN HALL, 24 GREAT ELMS CLOSE
Representees
Not yet archived · Original link
REPRESENTEE - MR JOHN LOVELL, KINGS COPSE FARM
Representees
Not yet archived · Original link
REPRESENTEE - MR JOHN LOVELL, KINGS COPSE FARM, KINGS COPSE ROAD
Representees
Not yet archived · Original link
REPRESENTEE - MR JOHN NEEDHAM, 13 WHITEFIELD ROAD
Representees
Not yet archived · Original link
REPRESENTEE - MR JOHN POOLEY, HAWKHILL COTTAGE
Representees
Not yet archived · Original link
REPRESENTEE - MR JORDAN CONNELLY, PINFIELDS
Representees
Not yet archived · Original link
REPRESENTEE - MR KEVIN LEY, 158 ROLLESTONE ROAD
Representees
Not yet archived · Original link
REPRESENTEE - MR LAWRENCE READ, POLLENSA
Representees
Not yet archived · Original link
REPRESENTEE - MR LAWRENCE READ, POLLENSA, CHAPEL LANE
Representees
Not yet archived · Original link
REPRESENTEE - MR LES FLYNN, 59 ELMSLEIGH GARDENS
Representees
Not yet archived · Original link
REPRESENTEE - MR M BUBB, 52 CRAWTE AVENUE
Representees
Not yet archived · Original link
REPRESENTEE - MR M PRITCHARD 20 EASTCOT CLOSE
Representees
Not yet archived · Original link
REPRESENTEE - MR M.J HORNE, 16 STUDLEY AVENUE
Representees
Not yet archived · Original link
REPRESENTEE - MR MARK LEE, 39 HOBSON WAY
Representees
Not yet archived · Original link
REPRESENTEE - MR MARK WALL, MICHELMERSH BRICK HOLDINGS
Representees
Not yet archived · Original link
REPRESENTEE - MR MARK WHEELER, 43
Representees
Not yet archived · Original link
REPRESENTEE - MR MARTIN FIELDEN, 16 SILKIN GARDENS
Representees
Not yet archived · Original link
REPRESENTEE - MR MARTIN NOBLE, PRIMROSE COTTAGE
Representees
Not yet archived · Original link
REPRESENTEE - MR MATTHEW BAXTER, 21 ALUM CLOSE
Representees
Not yet archived · Original link
REPRESENTEE - MR MICHAEL CASEMORE, 57 ROLLESTONE ROAD
Representees
Not yet archived · Original link
REPRESENTEE - MR MICHAEL OSEY, 82 THE WARREN, HOLBURY, HOLBURY
Representees
Not yet archived · Original link
REPRESENTEE - MR MICHAEL ROBERTSON, 1 HARTSGROVE AVENUE
Representees
Not yet archived · Original link
REPRESENTEE - MR MICHAEL WELCH, 75 CEDAR ROAD
Representees
Not yet archived · Original link
REPRESENTEE - MR MIKE SHORT, 172 ROLLESTONE ROAD
Representees
Not yet archived · Original link
REPRESENTEE - MR N PRITCHARD, 20 EASTCOT CLOSE
Representees
Not yet archived · Original link
REPRESENTEE - MR NEIL JENKS, 21 MAY CRESCENT
Representees
Not yet archived · Original link
REPRESENTEE - MR NEIL WADMORE, 6 LANESBRIDGE CLOSE
Representees
Not yet archived · Original link
REPRESENTEE - MR NICHOLAS WHITE, 33 LACKFORD AVENUE
Representees
Not yet archived · Original link
REPRESENTEE - MR PAUL KELLY, THE NEST, CHAPEL LANE
Representees
Not yet archived · Original link
REPRESENTEE - MR PAUL MARKIDES, 17 HAMPTON LANE
Representees
Not yet archived · Original link
REPRESENTEE - MR PETE PARSONS, SOLENT VIEW
Representees
Not yet archived · Original link
REPRESENTEE - MR PETER ALEXANDER, 61 HOLBURY DROVE
Representees
Not yet archived · Original link
REPRESENTEE - MR PETER BORLEY, 22 BADGERS WALK
Representees
Not yet archived · Original link
REPRESENTEE - MR PETER DYMOND, LAUREL COTTGE
Representees
Not yet archived · Original link
REPRESENTEE - MR PETER MOSS, 66 ROLLESTONE ROAD
Representees
Not yet archived · Original link
REPRESENTEE - MR PHILIP GOFTON, 88 ROLLESTONE ROAD
Representees
Not yet archived · Original link
REPRESENTEE - MR RAFN STREETS, 26 ROLLESTONE ROAD
Representees
Not yet archived · Original link
REPRESENTEE - MR REGINALD CHESTER-STERNE, THE PIPPINS
Representees
Not yet archived · Original link
REPRESENTEE - MR RICHARD LEEDHAM, 126 ROLLESTONE ROAD
Representees
Not yet archived · Original link
REPRESENTEE - MR ROB GLASS, 24 LANGDOWN ROAD
Representees
Not yet archived · Original link
REPRESENTEE - MR ROBERT DYER, BYTHAM BANK
Representees
Not yet archived · Original link
REPRESENTEE - MR ROBIN SOMES, THE COTTAGE
Representees
Not yet archived · Original link
REPRESENTEE - MR ROBIN SOMES, THE COTTAGE
Representees
Not yet archived · Original link
REPRESENTEE - MR ROGER ALLEN, ASHDOWN
Representees
Not yet archived · Original link
REPRESENTEE - MR ROLAND BISHOP, 1 WHITEFIELD ROAD
Representees
Not yet archived · Original link
REPRESENTEE - MR RORY DYER, 26 WHITEHAVEN HOMEPARK
Representees
Not yet archived · Original link
REPRESENTEE - MR ROSS MATTHEWS, 30 ROEWOOD ROAD
Representees
Not yet archived · Original link
REPRESENTEE - MR ROY AND MAVIS DAVIS, 14 FOXHAYES LANE
Representees
Not yet archived · Original link
REPRESENTEE - MR RYAN HAYMAN, HOLBURY
Representees
Not yet archived · Original link
REPRESENTEE - MR S POINTER, 38 KINGS RIDE
Representees
Not yet archived · Original link
REPRESENTEE - MR S SMITH, 26 HAYES MEAD
Representees
Not yet archived · Original link
REPRESENTEE - MR SAM WHITE, 33 LACKFORD AVENUE
Representees
Not yet archived · Original link
REPRESENTEE - MR SCOTT WILSON, 1 ASHDOWN RD
Representees
Not yet archived · Original link
REPRESENTEE - MR SEAN HEWETT, 48 CRAWTE AVENUE HOLBURY
Representees
Not yet archived · Original link
REPRESENTEE - MR STEPHEN LOWE, 37,HAMPTON CLOSE
Representees
Not yet archived · Original link
REPRESENTEE - MR STEPHEN POINTER, 38 KINGS RIDE
Representees
Not yet archived · Original link
REPRESENTEE - MR STEPHEN WRIGHT, 61 ROLLESTONE ROAD
Representees
Not yet archived · Original link
REPRESENTEE - MR STEVE DAVIES, NEWLANDS EXBURY ROAD
Representees
Not yet archived · Original link
REPRESENTEE - MR STEVE HARWOOD, 5 PARKHILL CLOSE
Representees
Not yet archived · Original link
REPRESENTEE - MR STEVE MITTEN, 9 PRIESTCROFT DRIVE
Representees
Not yet archived · Original link
REPRESENTEE - MR TARIK RAMSHAW, 52 RENDA ROAD
Representees
Not yet archived · Original link
REPRESENTEE - MR TERRY DEAN MCRAE, 21 ROLLESTONE ROAD
Representees
Not yet archived · Original link
REPRESENTEE - MR TERRY MCRAE, 21 ROLLESTONE ROAD
Representees
Not yet archived · Original link
REPRESENTEE - MR TERRY WELLS, 1 ASHLEY CROSS CLOSE
Representees
Not yet archived · Original link
REPRESENTEE - MR THEODORE SHAW, WILBERT HOUSE
Representees
Not yet archived · Original link
REPRESENTEE - MR TIMOTHY ALCHIN, 28 LARKSPUR GARDENS ,HOLBURY ,SOUTHAMPTON
Representees
Not yet archived · Original link
REPRESENTEE - MR ZACK MAYNARD, 34 ASHWOOD GARDENS
Representees
Not yet archived · Original link
REPRESENTEE - MRS ALISON BROWN, FOREST LODGE
Representees
Not yet archived · Original link
REPRESENTEE - MRS AMANDA MCCOURT, ALWYN, THE PENTAGON,
Representees
Not yet archived · Original link
REPRESENTEE - MRS AMANDA WHITE, 26 HOBSON WAY
Representees
Not yet archived · Original link
REPRESENTEE - MRS ANGELA LEY, 158 ROLLESTONE ROAD
Representees
Not yet archived · Original link
REPRESENTEE - MRS ANN WADE, 22 SHAPTON CLOSE
Representees
Not yet archived · Original link
REPRESENTEE - MRS B.A. HORNE, 16 STUDLEY AVENUE
Representees
Not yet archived · Original link
REPRESENTEE - MRS CAROLINE HAZELL, LITTLE HEATHFIELD
Representees
Not yet archived · Original link
REPRESENTEE - MRS CAROLINE SARSON, 76 LARKSPUR GARDENS
Representees
Not yet archived · Original link
REPRESENTEE - MRS CATHERINE COOK, 4 FIR CLOSE
Representees
Not yet archived · Original link
REPRESENTEE - MRS CHRISTINE GRAY, 15 ORCHARD CLOSE
Representees
Not yet archived · Original link
REPRESENTEE - MRS CHRISTINE SOUTHWELL, 27 ROLLESTONE ROAD
Representees
Not yet archived · Original link
REPRESENTEE - MRS CLAIRE LOWE, INSPIRE LEARNING PARTNERSHIP
Representees
Not yet archived · Original link
REPRESENTEE - MRS CLAIRE MCEWEN, 45 WEDGEWOOD CLOSE
Representees
Not yet archived · Original link
REPRESENTEE - MRS CLAIRE SHERWOOD, 3 SHERWOOD WAY, LANGLEY
Representees
Not yet archived · Original link
REPRESENTEE - MRS COLEEN LLEWELLYN, LYCHETTE COTTAGE
Representees
Not yet archived · Original link
REPRESENTEE - MRS CRISTINA JUDD, FAIRLEA
Representees
Not yet archived · Original link
REPRESENTEE - MRS D NASH, 18 HARTSGROVE AVENUE
Representees
Not yet archived · Original link
REPRESENTEE - MRS DANIELLE MILLS, 96 ROLLESTONE ROAD
Representees
Not yet archived · Original link
REPRESENTEE - MRS DANIELLE-JAYNE MILLS, 96 ROLLESTONE ROAD
Representees
Not yet archived · Original link
REPRESENTEE - MRS DEBBIE SHRIVE, GREEN EDGE
Representees
Not yet archived · Original link
REPRESENTEE - MRS DEBBIE TERRY, 8 CORMORANT PLACE
Representees
Not yet archived · Original link
REPRESENTEE - MRS DEBRA HILL, ROMAN ROAD HOUSE
Representees
Not yet archived · Original link
REPRESENTEE - MRS E RICHMOND, 189 LONG LANE
Representees
Not yet archived · Original link
REPRESENTEE - MRS E WILLIAMS, 16 WENTWORTH GARDENS
Representees
Not yet archived · Original link
REPRESENTEE - MRS EILEEN KEEN, 36 THE WARREN
Representees
Not yet archived · Original link
REPRESENTEE - MRS EMMA BORLEY, 22 BADGERS WALK
Representees
Not yet archived · Original link
REPRESENTEE - MRS EMMA KAINTOCH, MERRY WEATHERS
Representees
Not yet archived · Original link
REPRESENTEE - MRS EVELYN WRIGHT, 61 ROLLESTONE ROAD
Representees
Not yet archived · Original link
REPRESENTEE - MRS F ANDREW, 76 CHURCH LANE
Representees
Not yet archived · Original link
REPRESENTEE - MRS F E VISCO, 170 ROLLESTONE ROAD
Representees
Not yet archived · Original link
REPRESENTEE - MRS G WALLBRIDGE, HEATHLANDS, KINGS COPSE ROAD
Representees
Not yet archived · Original link
REPRESENTEE - MRS GILLIAN GRANT, 72 ROLLESTONE ROAD
Representees
Not yet archived · Original link
REPRESENTEE - MRS GILLIAN SWORN, 54 RENDA ROAD
Representees
Not yet archived · Original link
REPRESENTEE - MRS HANNAH LEEKE, LOMOND, EXBURY ROAD
Representees
Not yet archived · Original link
REPRESENTEE - MRS HANNAH WATERS, 7 SHERWOOD WAY
Representees
Not yet archived · Original link
REPRESENTEE - MRS HARRIET BETHELL, 53 ROLLESTONE ROAD
Representees
Not yet archived · Original link
REPRESENTEE - MRS HARRIET BETHELL, 53 ROLLESTONE ROAD
Representees
Not yet archived · Original link
REPRESENTEE - MRS HAZEL KENNEDY, THE REST
Representees
Not yet archived · Original link
REPRESENTEE - MRS HILARY COOK, HIGHWAYS
Representees
Not yet archived · Original link
REPRESENTEE - MRS HILARY ENNION, 65 ROLLESTONE ROAD
Representees
Not yet archived · Original link
REPRESENTEE - MRS HILARY VAUGHAN-WILSON, 7 STOCKLEY CLOSE
Representees
Not yet archived · Original link
REPRESENTEE - MRS J A CLOTHIER, ROUGHDOWN HOUSE
Representees
Not yet archived · Original link
REPRESENTEE - MRS J CROSS, 90 HAMPTON LANE
Representees
Not yet archived · Original link
REPRESENTEE - MRS J HALL, 9 ROLLESTONE ROAD
Representees
Not yet archived · Original link
REPRESENTEE - MRS J M POINTER, 38 KINGS RIDE
Representees
Not yet archived · Original link
REPRESENTEE - MRS J MUNDEN, 2 WHITEHAVEN PARK
Representees
Not yet archived · Original link
REPRESENTEE - MRS JAN CARROLL, 22 KINGS RIDE
Representees
Not yet archived · Original link
REPRESENTEE - MRS JANE BRIXTON-WILES, 2 STEPHEN COURT
Representees
Not yet archived · Original link
REPRESENTEE - MRS JANE PATZ, 55 ROLLESTONE ROAD
Representees
Not yet archived · Original link
REPRESENTEE - MRS JANE PATZ, 55 ROLLESTONE ROAD
Representees
Not yet archived · Original link
REPRESENTEE - MRS JANE STREETS, 26 ROLLESTONE ROAD
Representees
Not yet archived · Original link
REPRESENTEE - MRS JAYNE POINTER, 38 KINGS RIDE
Representees
Not yet archived · Original link
REPRESENTEE - MRS JESSICA BLUNDELL, WATERSIDE
Representees
Not yet archived · Original link
REPRESENTEE - MRS JO COATS, 12 ROLLESTONE ROAD
Representees
Not yet archived · Original link
REPRESENTEE - MRS JOANNA COATS, 12 ROLLESTONE ROAD
Representees
Not yet archived · Original link
REPRESENTEE - MRS JULIE CURREY 9 ROLLESTONE ROAD
Representees
Not yet archived · Original link
REPRESENTEE - MRS JULIE TARRANT, 2 HOBSON WAY
Representees
Not yet archived · Original link
REPRESENTEE - MRS JUNE DENHAM, 31 OAKLEY CLOSE
Representees
Not yet archived · Original link
REPRESENTEE - MRS KATHERINE SANDALLS 136 ROLLESTONE ROAD
Representees
Not yet archived · Original link
REPRESENTEE - MRS KELLY RAMSHAW, 52 RENDA ROAD
Representees
Not yet archived · Original link
REPRESENTEE - MRS KIM BURCHELL, 19 HOBSON WAY
Representees
Not yet archived · Original link
REPRESENTEE - MRS KIMBERLEY SEVERN, 4 THE MEWS
Representees
Not yet archived · Original link
REPRESENTEE - MRS L HUMPHRISS, 11 NICHOLAS ROAD
Representees
Not yet archived · Original link
REPRESENTEE - MRS L WHITEFOOT, 32 PARK ROAD, WROXHAM, NORWICH
Representees
Not yet archived · Original link
REPRESENTEE - MRS LAURA FINLAY, 233 HAMPTON LANE
Representees
Not yet archived · Original link
REPRESENTEE - MRS LAURA FINLAY, 233 HAMPTON LANE
Representees
Not yet archived · Original link
REPRESENTEE - MRS LAURA FINLAY, 233 HAMPTON LANE
Representees
Not yet archived · Original link
REPRESENTEE - MRS LAURA KNIGHT, 43 FAIRCROSS CLOSE
Representees
Not yet archived · Original link
REPRESENTEE - MRS LINDA MATTHEWS 30 ROEWOOD ROAD
Representees
Not yet archived · Original link
REPRESENTEE - MRS LINDA WHITEFOOT, 32 PARK ROAD
Representees
Not yet archived · Original link
REPRESENTEE - MRS LINDA WICKERS 34 ROEWOOD ROAD
Representees
Not yet archived · Original link
REPRESENTEE - MRS LISA HAYMAN
Representees
Not yet archived · Original link
REPRESENTEE - MRS LORNA LEVERETT, FALLODON
Representees
Not yet archived · Original link
REPRESENTEE - MRS LOUISE WREFORD, SUGAR LOAF
Representees
Not yet archived · Original link
REPRESENTEE - MRS LOUISE WREFORD, SUGAR LOAF, KINGS COPSE ROAD, CORNER OF BELL L
Representees
Not yet archived · Original link
REPRESENTEE - MRS LYNDA BULL, 15 TRENLEY CLOSE
Representees
Not yet archived · Original link
REPRESENTEE - MRS M SABEN 22 THE MILL POND
Representees
Not yet archived · Original link
REPRESENTEE - MRS M SHERWOOD, 49 ROLLESTONE ROAD
Representees
Not yet archived · Original link
REPRESENTEE - MRS MACSWEEN, 37 HOLBURY DROVE
Representees
Not yet archived · Original link
REPRESENTEE - MRS MALGORZATA SMITH, ACORNS
Representees
Not yet archived · Original link
REPRESENTEE - MRS MARGARET GRAY, 21 STONYMOOR CLOSE
Representees
Not yet archived · Original link
REPRESENTEE - MRS MARGRETHE TOPP, 3 ROLLESTONE ROAD
Representees
Not yet archived · Original link
REPRESENTEE - MRS MARIA LEVER, 3 WEST ROAD
Representees
Not yet archived · Original link
REPRESENTEE - MRS MARIAN KITCHER 2 BADMINSTON COTTAGES CALSHOT ROAD
Representees
Not yet archived · Original link
REPRESENTEE - MRS MOIRA HOOLE 8 CRAWTE AVENUE
Representees
Not yet archived · Original link
REPRESENTEE - MRS PATRICIA NICHOLSON, 37 NEW FOREST PARK
Representees
Not yet archived · Original link
REPRESENTEE - MRS PATRICIA SMITH, 42 ROLLESTONE ROAD
Representees
Not yet archived · Original link
REPRESENTEE - MRS PAULA OAKLEY, 67 ROLLESTONE ROAD
Representees
Not yet archived · Original link
REPRESENTEE - MRS PAULA OAKLEY, 67 ROLLESTONE ROAD
Representees
Not yet archived · Original link
REPRESENTEE - MRS PAULA OAKLEY, 67 ROLLESTONE ROAD
Representees
Not yet archived · Original link
REPRESENTEE - MRS REBECCA OSMAN, 15 OAKLEY CLOSE
Representees
Not yet archived · Original link
REPRESENTEE - MRS S B, BEECHWOOD ROAD
Representees
Not yet archived · Original link
REPRESENTEE - MRS SALLYANNE BELL, TIROL 3 SCHOOL ROAD
Representees
Not yet archived · Original link
REPRESENTEE - MRS SANDRA REES, 47 ROLLESTONE ROAD
Representees
Not yet archived · Original link
REPRESENTEE - MRS SANDRA REES, 47 ROLLESTONE ROAD
Representees
Not yet archived · Original link
REPRESENTEE - MRS SANDY MOSS, 66 ROLLESTONE ROAD
Representees
Not yet archived · Original link
REPRESENTEE - MRS SARAH MORTON, 5 HUGHES CLOSE
Representees
Not yet archived · Original link
REPRESENTEE - MRS SHARLENE CLARKE, 41 ROLLESTONE ROAD
Representees
Not yet archived · Original link
REPRESENTEE - MRS SHARON SPELLS, 14 WYCHWOOD DRIVE
Representees
Not yet archived · Original link
REPRESENTEE - MRS SHARON SPELLS, 14 WYCHWOOD DRIVE, LANGLEY
Representees
Not yet archived · Original link
REPRESENTEE - MRS STEVIE SUMMERS, 19 TRISTAN CLOSE
Representees
Not yet archived · Original link
REPRESENTEE - MRS SUSAN CORNELIUS
Representees
Not yet archived · Original link
REPRESENTEE - MRS SUZZANE PICK, CHERRYTREE COTTAGE
Representees
Not yet archived · Original link
REPRESENTEE - MRS TINA REDFEARN, 8 CHALEWOOD ROAD
Representees
Not yet archived · Original link
REPRESENTEE - MRS TRACIE BURROUGHS, ST. CHRISTOPHER
Representees
Not yet archived · Original link
REPRESENTEE - MRS V ROUSELL, 3 MAY CRESCENT
Representees
Not yet archived · Original link
REPRESENTEE - MRS VAL INGRAM, 20 CORDELIA CLOSE
Representees
Not yet archived · Original link
REPRESENTEE - MRS VALERIE CACCHI, 21 WESTBOURNE AVENUE
Representees
Not yet archived · Original link
REPRESENTEE - MRS VALERIE CACCHI, 21 WESTBOURNE AVENUE
Representees
Not yet archived · Original link
REPRESENTEE - MRS VIRGINIA GUY, 23 ROLLESTONE ROAD
Representees
Not yet archived · Original link
REPRESENTEE - MRS WENDY WARE, 60 ROLLESTONE ROAD
Representees
Not yet archived · Original link
REPRESENTEE - MRS WENDY WARE, 60 ROLLESTONE ROAD
Representees
Not yet archived · Original link
REPRESENTEE - MS CHARLOTTE HARVEY, ROMAN ROAD HOUSE
Representees
Not yet archived · Original link
REPRESENTEE - MS CHELLAN EAMES, 63 ROLLESTONE ROAD
Representees
Not yet archived · Original link
REPRESENTEE - MS CHELLAN EAMES, 65 ROLLESTONE ROAD
Representees
Not yet archived · Original link
REPRESENTEE - MS CLAIRE LAMONT, 30 WALTONS AVE
Representees
Not yet archived · Original link
REPRESENTEE - MS CLAIRE LAMONT, 30 WALTONS AVENUE
Representees
Not yet archived · Original link
REPRESENTEE - MS DEBBIE CURTIS, 9 LIME KILN LANE
Representees
Not yet archived · Original link
REPRESENTEE - MS DEBBIE DIXON, 9 LIME KILN LANE
Representees
Not yet archived · Original link
REPRESENTEE - MS DEBORAH BUCKERFIELD, 9 LIME KILN LANE
Representees
Not yet archived · Original link
REPRESENTEE - MS GEOGRINA PATZ, 335 RENDA ROAD
Representees
Not yet archived · Original link
REPRESENTEE - MS JANE CHARLES, 63 ROLLESTONE ROAD
Representees
Not yet archived · Original link
REPRESENTEE - MS JANE KNIGHTBRIDGE, 11 BUTTS ASH GARDENS
Representees
Not yet archived · Original link
REPRESENTEE - MS JONES, 64 HOLBURY DROVE
Representees
Not yet archived · Original link
REPRESENTEE - MS JULIE HOPE, 44 ROLLESTONE ROAD
Representees
Not yet archived · Original link
REPRESENTEE - MS JULIE HOPE, 44 ROLLESTONE ROAD
Representees
Not yet archived · Original link
REPRESENTEE - MS LINDSEY BETTERIDGE, 1 TEMPERANCE COTTAGE
Representees
Not yet archived · Original link
REPRESENTEE - MS NICOLA PHIPPS, SPRING COTTAGE
Representees
Not yet archived · Original link
REPRESENTEE - MS NICOLA PHIPPS, SPRING COTTAGE
Representees
Not yet archived · Original link
REPRESENTEE - MS SIAN THORP, 6 LANESBRIDGE CLOSE
Representees
Not yet archived · Original link
REPRESENTEE - NATASHA TASKER, 32 CHEVIOT DRIVE
Representees
Not yet archived · Original link
REPRESENTEE - NEAL ROWSELL, 3 MAY CRESCENT
Representees
Not yet archived · Original link
REPRESENTEE - NEIL CULLIS, 28 LITTLE HOLBURY CARAVAN PARK
Representees
Not yet archived · Original link
REPRESENTEE - NIC CUCKSON, 12 ROEWOOD GARDENS
Representees
Not yet archived · Original link
REPRESENTEE - NICHOLAS HEWETT, 12 WOODLAND GARDENS
Representees
Not yet archived · Original link
REPRESENTEE - NICHOLAS SHRIVE, GREEN EDGE
Representees
Not yet archived · Original link
REPRESENTEE - NICHOLAS SUTCLIFFE, 106 ROLLESTONE ROAD
Representees
Not yet archived · Original link
REPRESENTEE - NICOLA DAVIDSON NEE DREDGE, 71 HAMPTON LANE
Representees
Not yet archived · Original link
REPRESENTEE - NICOLA DAVIDSON, 71 HAMPTON LANE
Representees
Not yet archived · Original link
REPRESENTEE - NICOLA DAVIES, OVERHILL
Representees
Not yet archived · Original link
REPRESENTEE - NICOLA GRIFFITHS, 146 ROLLESTONE ROAD
Representees
Not yet archived · Original link
REPRESENTEE - NICOLA PHIPPS, SPRING COTTAGE
Representees
Not yet archived · Original link
REPRESENTEE - NIGEL HOUNSLOW, 29 HOBSON WAY
Representees
Not yet archived · Original link
REPRESENTEE - NOAH HOUNSLOW, 29 HOBSON WAY
Representees
Not yet archived · Original link
REPRESENTEE - O SAWYER, 21 WALTONS AVENUE
Representees
Not yet archived · Original link
REPRESENTEE - OCCUPANT OF JYMMARI, 1 ELMFIELD LANE
Representees
Not yet archived · Original link
REPRESENTEE - OLIVE MAYNARD, ALUM CLOSE
Representees
Not yet archived · Original link
REPRESENTEE - OLIVER MERCER, PORTHCAWL
Representees
Not yet archived · Original link
REPRESENTEE - OWEN KENNEDY, 2 BUTTS ASH COTTAGES
Representees
Not yet archived · Original link
REPRESENTEE - OWNER / OCCUPIER - JYMMAN
Representees
Not yet archived · Original link
REPRESENTEE - P BUDGE, PERRUCHE
Representees
Not yet archived · Original link
REPRESENTEE - P. SAYERS, 14 HOME FARM CLOSE
Representees
Not yet archived · Original link
REPRESENTEE - P.WILLIAM, WHITE COTTAGE
Representees
Not yet archived · Original link
REPRESENTEE - PAMELA SMITH, LITTLE BRITAIN
Representees
Not yet archived · Original link
REPRESENTEE - PAMELA SWEETING, 9 WALKERS LANE
Representees
Not yet archived · Original link
REPRESENTEE - PAMELA WHEELER, 5 FERNSIDE CLOSE
Representees
Not yet archived · Original link
REPRESENTEE - PARSONS, SOLENT VIEW, HAVE FARM LANE
Representees
Not yet archived · Original link
REPRESENTEE - PATRICIA SPELLS, 9 MOUSEHOLE LANE
Representees
Not yet archived · Original link
REPRESENTEE - PAUL DARKER, 2 SOUTHBOURNE AVENUE
Representees
Not yet archived · Original link
REPRESENTEE - PAUL DAY, 3 LIME KILN LANE
Representees
Not yet archived · Original link
REPRESENTEE - PAUL DERBYSHIRE, 2 LITTLE STANSWOOD COTTAGES
Representees
Not yet archived · Original link
REPRESENTEE - PAUL HAMMOND 47 HOBSON WAY
Representees
Not yet archived · Original link
REPRESENTEE - PAUL JONES, 64 HOLBURY DROVE
Representees
Not yet archived · Original link
REPRESENTEE - PAUL SAIGEK, 46 CRAWTE AVENUE
Representees
Not yet archived · Original link
REPRESENTEE - PAULA MCLEAN, 28 ROEWOOD ROAD, HOLBURY
Representees
Not yet archived · Original link
REPRESENTEE - PAULINE RAWLES, 102 ROLLESTONE ROAD
Representees
Not yet archived · Original link
REPRESENTEE - PETER BRYANT, 20 ROLLESTONE ROAD
Representees
Not yet archived · Original link
REPRESENTEE - PETER DYMOND OBE, LAUREL COTTAGE
Representees
Not yet archived · Original link
REPRESENTEE - PETER HUGHES, 71 LANGDOWN ROAD
Representees
Not yet archived · Original link
REPRESENTEE - PETER REYNOLDS, 46 ROLLESTONE ROAD
Representees
Not yet archived · Original link
REPRESENTEE - PHILIP SUNLEY, 18 HAMPTON CLOSE
Representees
Not yet archived · Original link
REPRESENTEE - POPPY EDGAR, 2 FIELDS CLOSE
Representees
Not yet archived · Original link
REPRESENTEE - R MASON, 45 CRAWTE AVENUE
Representees
Not yet archived · Original link
REPRESENTEE - R STREETS, 26 ROLLESTONE ROAD
Representees
Not yet archived · Original link
REPRESENTEE - REBECCA DAVIS, 5 STAGBRAKE CLOSE
Representees
Not yet archived · Original link
REPRESENTEE - REBECCA WHITE, 48 CRAWTE AVENUE
Representees
Not yet archived · Original link
REPRESENTEE - RICH PINCKNEY, 43 THORNBURY AVENUE
Representees
Not yet archived · Original link
REPRESENTEE - RICHARD BRANCH, 44 SAXON ROAD
Representees
Not yet archived · Original link
REPRESENTEE - RICHARD CHANNELL, 2 NEWTOWN COTTAGES
Representees
Not yet archived · Original link
REPRESENTEE - RICHARD COOKE, 7 NASH ROAD
Representees
Not yet archived · Original link
REPRESENTEE - RICHARD SHERWOOD, 49 ROLLESTONE ROAD
Representees
Not yet archived · Original link
REPRESENTEE - RICHARD SHERWOOD, 49 ROLLESTONE ROAD
Representees
Not yet archived · Original link
REPRESENTEE - RICHARD THORNE, 17 FORESTERS GATE
Representees
Not yet archived · Original link
REPRESENTEE - ROBERT AND MELANIE JOHNSTONE, HOOFPRINTS, ROUGHDOWN
Representees
Not yet archived · Original link
REPRESENTEE - ROBERT DYER, 37 ROLLESTONE ROAD
Representees
Not yet archived · Original link
REPRESENTEE - ROBERT JOHNSTONE, HOOFPRINTS, ROUGHDOWN
Representees
Not yet archived · Original link
REPRESENTEE - ROBERT MCLEAN, 28 ROEWOOD ROAD
Representees
Not yet archived · Original link
REPRESENTEE - ROBERT WALLIS, 1 HOME FARM CLOSE
Representees
Not yet archived · Original link
REPRESENTEE - RODNEY HAWKINS, 6 SOUTHBOURNE AVENUE
Representees
Not yet archived · Original link
REPRESENTEE - ROSEMARY GLENDINNING, STONEHEY
Representees
Not yet archived · Original link
REPRESENTEE - ROSS CUTTING, ROMAN ROAD HOUSE
Representees
Not yet archived · Original link
REPRESENTEE - ROSS DAVIDSON, 71 HAMPTON LANE,
Representees
Not yet archived · Original link
REPRESENTEE - ROY GRANT, 8 HURSLEY DRIVE
Representees
Not yet archived · Original link
REPRESENTEE - RUSSELL JOHN DYER, ISLAND VIEW, CALSHOT ROAD
Representees
Not yet archived · Original link
REPRESENTEE - RUTH WILSON, YALOVA
Representees
Not yet archived · Original link
REPRESENTEE - S DUMAVEY, 15 ROLLESTONE ROAD
Representees
Not yet archived · Original link
REPRESENTEE - S NEARY, 16 HAYLEY CLOSE
Representees
Not yet archived · Original link
REPRESENTEE - SALLY ANN ENDEAN, 47 ROLLESTONE ROAD
Representees
Not yet archived · Original link
REPRESENTEE - SAM ANGEL, 24 ALUM CLOSE
Representees
Not yet archived · Original link
REPRESENTEE - SAM YANOTT, 2 RATCLIFFE ROAD
Representees
Not yet archived · Original link
REPRESENTEE - SAMUEL PATZ 4 FOXCROFT DRIVE
Representees
Not yet archived · Original link
REPRESENTEE - SARAH COX, 19 HARVEY GARDENS
Representees
Not yet archived · Original link
REPRESENTEE - SARAH MARSHALL, 7 WATERMANS LANE
Representees
Not yet archived · Original link
REPRESENTEE - SCOTT BIDDLECOMBE, 59 HOLLY BANK CRESCENT
Representees
Not yet archived · Original link
REPRESENTEE - SCOTT GREGORY, SUNNYCOTE
Representees
Not yet archived · Original link
REPRESENTEE - SEAN WARD, 3 SYCAMORE ROAD
Representees
Not yet archived · Original link
REPRESENTEE - SERENA SEYMOUR, 72 BEECH CRESCENT
Representees
Not yet archived · Original link
REPRESENTEE - SHARON ALL, 1 STONY MOOR CLOSE
Representees
Not yet archived · Original link
REPRESENTEE - SHARON JOY FORSBERG, 3 TRENLEY CLOSE
Representees
Not yet archived · Original link
REPRESENTEE - SHARON, NORMAN & EILEEN COOPER. 34 ROLLESTONE ROAD
Representees
Not yet archived · Original link
REPRESENTEE - SHEILA FEUY, 5 ASHLEY CROSS CLOSE
Representees
Not yet archived · Original link
REPRESENTEE - SHELIA BEEDELL, LANESEND
Representees
Not yet archived · Original link
REPRESENTEE - SIMON DAVIES, OVERHILL
Representees
Not yet archived · Original link
REPRESENTEE - SIMON PEACE, 10 WHEELERS WALK
Representees
Not yet archived · Original link
REPRESENTEE - SIMON PRINCE, LILY COTTAGE
Representees
Not yet archived · Original link
REPRESENTEE - SONNY LOVELL, KINGS COPSE FARM
Representees
Not yet archived · Original link
REPRESENTEE - SOPHIA TONA, 11 WINTERS CLOSE
Representees
Not yet archived · Original link
REPRESENTEE - SOPHIE EKLUND, 15 MANOR ROAD
Representees
Not yet archived · Original link
REPRESENTEE - SOPHIE SABERI, 22 THE MILL POND
Representees
Not yet archived · Original link
REPRESENTEE - STEPHEN HILL, MEADOW VIEW
Representees
Not yet archived · Original link
REPRESENTEE - STEVE HUMPHREY, ASHFORD BLACKFIELD ROAD
Representees
Not yet archived · Original link
REPRESENTEE - STEVE WILLIAMS. 16 WENTWORTH GARDENS. HOLBURY
Representees
Not yet archived · Original link
REPRESENTEE - STEVEN DRODGE, 19 FOREST GATE
Representees
Not yet archived · Original link
REPRESENTEE - STEVEN WICKERS 34 ROEWOOD ROAD
Representees
Not yet archived · Original link
REPRESENTEE - STUART GOODALL 3 BRAMBLE CLOSE
Representees
Not yet archived · Original link
REPRESENTEE - SUE POLLOCK, 2C WATERMANS LANE
Representees
Not yet archived · Original link
REPRESENTEE - SUSAN CORNELIUS
Representees
Not yet archived · Original link
REPRESENTEE - SUSAN DAY. 3 FAIRCROSS CLOSE
Representees
Not yet archived · Original link
REPRESENTEE - SUSAN YONOFF 2 RATCLIFFE ROAD
Representees
Not yet archived · Original link
REPRESENTEE - SYLVIA BATTEN, SUMMERCOMBE, CHAPEL LANE
Representees
Not yet archived · Original link
REPRESENTEE - TAMMY SAIGER, 46 CRAWTE AVENUE
Representees
Not yet archived · Original link
REPRESENTEE - TERENCE WHEELER. 5 FERNSIDE CLOSE
Representees
Not yet archived · Original link
REPRESENTEE - TERESA RIDOUT, 56 ROLLESTONE ROAD
Representees
Not yet archived · Original link
REPRESENTEE - TERRY DENHAM 31 OAKLEY CLOSE.
Representees
Not yet archived · Original link
REPRESENTEE - TERRY OLIVER, 27 WATTON ROAD
Representees
Not yet archived · Original link
REPRESENTEE - TERRY OLIVER, 27 WATTON ROAD
Representees
Not yet archived · Original link
REPRESENTEE - TERRY RYMER, 6 JO BENSON COURT
Representees
Not yet archived · Original link
REPRESENTEE - THERESA GREGORY, SUNNYCOTE
Representees
Not yet archived · Original link
REPRESENTEE - TIM GRAY, 11 CORSAIR DRIVE
Representees
Not yet archived · Original link
REPRESENTEE - TONI DRODGE, 19 FOREST GATE
Representees
Not yet archived · Original link
REPRESENTEE - TONY NORTHCUTT, 23 PAVILION GARDENS
Representees
Not yet archived · Original link
REPRESENTEE - TONY WRIGHT, 7 WESTBOURNE AVENUE
Representees
Not yet archived · Original link
REPRESENTEE - TRACIE LONGLAND, 152 KENDAL AVENUE
Representees
Not yet archived · Original link
REPRESENTEE - TREVOR J DEBELL, HOLLYMEAD
Representees
Not yet archived · Original link
REPRESENTEE - V GUY, 23 ROLLESTONE ROAD
Representees
Not yet archived · Original link
REPRESENTEE - VALERIE INGRAM, 20 CORDELIA CLOSE
Representees
Not yet archived · Original link
REPRESENTEE - VANESSA SMALL, RONALDA, THORNBURY AVENUE
Representees
Not yet archived · Original link
REPRESENTEE - VERITY SHELLEY, 43 CRAWTE AVENUE
Representees
Not yet archived · Original link
REPRESENTEE - VIC AND MARINA FARMER, 7 ROLLESTONE ROAD
Representees
Not yet archived · Original link
REPRESENTEE - VICKI HUMPHREY, 33 REDRISE CLOSE
Representees
Not yet archived · Original link
REPRESENTEE - VICKY ROSS, 7 SHAPTON CLOSE
Representees
Not yet archived · Original link
REPRESENTEE - VICTOR AND MARINA FARMER, 7 ROLLESTONE ROAD
Representees
Not yet archived · Original link
REPRESENTEE - VICTORIA BAYLEY 6 SHERWOOD WAY
Representees
Not yet archived · Original link
REPRESENTEE - VICTORIA HOUNSLOW 29 HOBSON WAY
Representees
Not yet archived · Original link
REPRESENTEE - WENDY ACUN, 183 HAMPTON LANE
Representees
Not yet archived · Original link
REPRESENTEE - WENDY CAESAR. 3 SCOTT PAINE DRIVE. HYTHE
Representees
Not yet archived · Original link
REPRESENTEE - WENDY LANSBURY 104 ROLLESTONE ROAD
Representees
Not yet archived · Original link
REPRESENTEE - WENDY PARSONS, THE PENNIES
Representees
Not yet archived · Original link
REPRESENTEE - WENDY ROWE, 10 OAKLEY CLOSE
Representees
Not yet archived · Original link
REPRESENTEE - YAZMIN HOBBS, 5 ASHDOWN
Representees
Not yet archived · Original link
REPRESENTEE - YVONNE SHORT 2 BOWER CLOSE
Representees
Not yet archived · Original link
REPRESENTEE - ZAC HAWKINS, 6 SOUTHBOURNE AVENUE, HOLBURY
Representees
Not yet archived · Original link
REPRESENTEE - ZOE BRADLEY, ST MICHAELS, ST MICHAELS CLOSE
Representees
Not yet archived · Original link
REPRESENTEE -ANGUS BOITZ THE OLD MILL LIME KILN LANE
Representees
Not yet archived · Original link
REPRESENTEE -JADE COBBING, 60 STUDLEY AVENUE
Representees
Not yet archived · Original link
REPRESENTEE -JADE HOSEY, FLAT 7, BLOCK D, FURZE COURT
Representees
Not yet archived · Original link
REPRESENTEE -JANE FLANAGAN, 13 CRETE ROAD
Representees
Not yet archived · Original link
REPRESENTEE -JOSIE JAMES, 8 CONIFER CLOSE
Representees
Not yet archived · Original link
REPRESENTEE -JULIE GAME LANGSTONE LIME WALK
Representees
Not yet archived · Original link
REPRESENTEE -MS BOLAM, ALVEDISTON, THE DROVE
Representees
Not yet archived · Original link
REPRESENTEE -SARAH MORTON 5 HUGHES CLOSE
Representees
Not yet archived · Original link
REPRESENTEE A CLARKE 41 ROLLESTONE ROAD
Representees
Not yet archived · Original link
REPRESENTEE A LANCEFIELD 33 ST JOHN ROAD
Representees
Not yet archived · Original link
REPRESENTEE A READHEAD MEADOW VIEW
Representees
Not yet archived · Original link
REPRESENTEE AARON BURGESS 4 HAMPTON CLOSE
Representees
Not yet archived · Original link
REPRESENTEE AARON HEAD PENNY HEATH
Representees
Not yet archived · Original link
REPRESENTEE ADDITIONAL COMMENTS STEVE HILL
Representees
Not yet archived · Original link
REPRESENTEE ANDREW SHEPPARD WILVERLEY
Representees
Not yet archived · Original link
REPRESENTEE ANNA WOODWARD 15 MOPLEY CLOSE
Representees
Not yet archived · Original link
REPRESENTEE ANTHONY BOLTON 5 ORCHARD CLOSE
Representees
Not yet archived · Original link
REPRESENTEE BEN KING 167 HEATHER ROAD
Representees
Not yet archived · Original link
REPRESENTEE C HERNS 39 ROLLESTONE ROAD
Representees
Not yet archived · Original link
REPRESENTEE C WHEELER 8 ROSE CLOSE
Representees
Not yet archived · Original link
REPRESENTEE CATHERINE NEWMAN 15 RIDLEY CLOSE
Representees
Not yet archived · Original link
REPRESENTEE CHLOE BURROWS 14 RIDLEY CLOSE
Representees
Not yet archived · Original link
REPRESENTEE CHRIS HEMS 39 ROLLESTONE ROAD
Representees
Not yet archived · Original link
REPRESENTEE CHRIS HEMS 39 ROLLESTONE ROAD
Representees
Not yet archived · Original link
REPRESENTEE CHRISTOPHER BUTTERTON 85 THE WARREN
Representees
Not yet archived · Original link
REPRESENTEE CHRISTOPHER LOADER VINE COTTAGE
Representees
Not yet archived · Original link
REPRESENTEE COLIN HAWKINS HAZELDENE SOUTHAMPTON ROAD
Representees
Not yet archived · Original link
REPRESENTEE COLIN JONES 3 THE GREENWICH
Representees
Not yet archived · Original link
REPRESENTEE D E AGER 31 THE WARREN
Representees
Not yet archived · Original link
REPRESENTEE D SHARPE 42 WATTON ROAD
Representees
Not yet archived · Original link
REPRESENTEE DAVID CHAMBERLAIN 1 RHYMHALL MEWS
Representees
Not yet archived · Original link
REPRESENTEE DEAN COLMER 46 THE WARREN
Representees
Not yet archived · Original link
REPRESENTEE DENISE ROUGHTON HALL 24 GREAT ELMS AVE
Representees
Not yet archived · Original link
REPRESENTEE DIANE BUTTERTON 85 THE WARREN
Representees
Not yet archived · Original link
REPRESENTEE DR G BETHELL 53 ROLLSTONE ROAD
Representees
Not yet archived · Original link
REPRESENTEE E ROCK-READHEAD MEADOW VIEW
Representees
Not yet archived · Original link
REPRESENTEE E WRIGHT 61 ROLLESTONE ROAD
Representees
Not yet archived · Original link
REPRESENTEE EMMA EDGAR 2 FIELDS CLOSE
Representees
Not yet archived · Original link
REPRESENTEE G TARRANT 2 HOBSON WAY
Representees
Not yet archived · Original link
REPRESENTEE GAIL DEVINE 29 GREAT ELMS CLOSE
Representees
Not yet archived · Original link
REPRESENTEE GEMMA CHRISTIANS FORREST SO443 500137
Representees
Not yet archived · Original link
REPRESENTEE GEORGINA JENKINS ROWDOWN COTTAGE
Representees
Not yet archived · Original link
REPRESENTEE GORDON SMITH STANDOR MOPLEY
Representees
Not yet archived · Original link
REPRESENTEE H ENNION 65 ROLLESTONE ROAD
Representees
Not yet archived · Original link
REPRESENTEE H RICHARDS HALL LAUREL COTTAGE
Representees
Not yet archived · Original link
REPRESENTEE HAZEL ROEBUCK 14 RIDLEY
Representees
Not yet archived · Original link
REPRESENTEE J HURST 11 VALLEY CLOSE
Representees
Not yet archived · Original link
REPRESENTEE J J DYER BYTHAM BANK
Representees
Not yet archived · Original link
REPRESENTEE J SYMONDS 31 SPRINGFIELD AVE
Representees
Not yet archived · Original link
REPRESENTEE JAMES BLACKMAN 17 ROLLSTONE ROAD
Representees
Not yet archived · Original link
REPRESENTEE JAMES BLACKMAN 17 ROLLSTONE ROAD (DECISION NOTICE)
Representees
Not yet archived · Original link
REPRESENTEE JAMES BLACKMAN 17 ROLLSTONE ROAD (HOUSING LAND AVAILABILITY ASSESSME
Representees
Not yet archived · Original link
REPRESENTEE JANE CHARLES 63 ROLLESTONE ROAD
Representees
Not yet archived · Original link
REPRESENTEE JANE SYMONS - 31 SPRINGFIELD AVENUE
Representees
Not yet archived · Original link
REPRESENTEE JENNIFER TAYLOR 41 SOUTH STREET
Representees
Not yet archived · Original link
REPRESENTEE JORDAN CONNELLY PINFOLDS NEW ROAD
Representees
Not yet archived · Original link
REPRESENTEE JORDAN COOKSON 15 RIDLEY CLOSE
Representees
Not yet archived · Original link
REPRESENTEE JOYCE CHAMBERLAIN 1 RYMEHALL MEWS
Representees
Not yet archived · Original link
REPRESENTEE JUDITH BELL 18 OAK ROAD
Representees
Not yet archived · Original link
REPRESENTEE JULIE CLARK 73 THE WARREN
Representees
Not yet archived · Original link
REPRESENTEE K L CLARK 40 IPLEY WAY
Representees
Not yet archived · Original link
REPRESENTEE K SHERGOLD 25 ROEWOOD ROAD
Representees
Not yet archived · Original link
REPRESENTEE KATHERINE LONG 24 ROSEWOOD GARDENS
Representees
Not yet archived · Original link
REPRESENTEE KATHY PRICE 8 HOME FARM CLOSE
Representees
Not yet archived · Original link
REPRESENTEE KELSEY KING 167 HEATHER ROAD
Representees
Not yet archived · Original link
REPRESENTEE L M PAUL 12 WOODLAND GARDENS
Representees
Not yet archived · Original link
REPRESENTEE LES FLYNN 59 ELMLEIGH GARDENS
Representees
Not yet archived · Original link
REPRESENTEE LISA THOMAS 5 REDRISE CLOSE
Representees
Not yet archived · Original link
REPRESENTEE LOUISE BOLTON 5 ORCHARD CLOSE
Representees
Not yet archived · Original link
REPRESENTEE M K ARMSTRONG INVERGARRY
Representees
Not yet archived · Original link
REPRESENTEE M RICHES 14 FOREST GATE
Representees
Not yet archived · Original link
REPRESENTEE MAGIE CONSTABLE ONSLOW NEW ROAD
Representees
Not yet archived · Original link
REPRESENTEE MATTHEW BROWN 14 RIDLEY CLOSE
Representees
Not yet archived · Original link
REPRESENTEE MICHAEL OSBORNE 133 LONG LANE
Representees
Not yet archived · Original link
REPRESENTEE MISS K TILBURN 43 PAVILION GARDENS
Representees
Not yet archived · Original link
REPRESENTEE MR & MRS CLAY 120 ROLLSTONE ROAD
Representees
Not yet archived · Original link
REPRESENTEE MR & MRS ENEAN LARCHWOOD
Representees
Not yet archived · Original link
REPRESENTEE MR & MRS PECKHAM 38 ROLLESTONE ROAD
Representees
Not yet archived · Original link
REPRESENTEE MR & MRS PHILLIPS 3 LONG COPSE COTTAGE
Representees
Not yet archived · Original link
REPRESENTEE MR ANDREW HEWETT KENT HOUSE
Representees
Not yet archived · Original link
REPRESENTEE MR ARON MILLS 96 ROLLESTONE ROAD
Representees
Not yet archived · Original link
REPRESENTEE MR S PITHERS 355 RENDA ROAD
Representees
Not yet archived · Original link
REPRESENTEE MRS A HAYMAN WITH LUCK NEW ROAD
Representees
Not yet archived · Original link
REPRESENTEE MRS J BEALES WRIGHT 7 WESTBOURNE AVE
Representees
Not yet archived · Original link
REPRESENTEE MRS J LOCK 53 HAMPTON LANE
Representees
Not yet archived · Original link
REPRESENTEE MRS JANET CARVER 29 FERNDALE ROAD
Representees
Not yet archived · Original link
REPRESENTEE MRS L BROWN 3 FLEURET CLOSE
Representees
Not yet archived · Original link
REPRESENTEE MRS L EWIN MONTSWELL HOUSE
Representees
Not yet archived · Original link
REPRESENTEE MRS L GRANT 8 HURSLEY DRIVE
Representees
Not yet archived · Original link
REPRESENTEE MRS L SINFIELD 27 GREAT ELMS CLOSE
Representees
Not yet archived · Original link
REPRESENTEE MRS M RICHARDS 47 HOBSON WAY
Representees
Not yet archived · Original link
REPRESENTEE MRS MARIAN AGER, 31 THE WARREN
Representees
Not yet archived · Original link
REPRESENTEE MRS PATRICIA WELLS 1 ASHLEY CROSS CLOSE
Representees
Not yet archived · Original link
REPRESENTEE MRS S L STRONACH 8 LONG COPSE
Representees
Not yet archived · Original link
REPRESENTEE MRS S LOVELL 39 CRAWTE AVENUE
Representees
Not yet archived · Original link
REPRESENTEE MRS S PRITCHARD 20 EASTCOT CLOSE
Representees
Not yet archived · Original link
REPRESENTEE MRS S SHEPPARD WILVERLEY
Representees
Not yet archived · Original link
REPRESENTEE MRS SARAH SUSSEX 21 FOXCROFT DRIVE
Representees
Not yet archived · Original link
REPRESENTEE MRS THOMSON-MILLER
Representees
Not yet archived · Original link
REPRESENTEE MS D LILLEY 10 HURSLEY DRIVE
Representees
Not yet archived · Original link
REPRESENTEE N PARRISH 7 CHERRYTON GARDENS
Representees
Not yet archived · Original link
REPRESENTEE N VERCOE ROBINS 67 WILVERLEY PLACE
Representees
Not yet archived · Original link
REPRESENTEE NEW FOREST ASSOCIATION (FRIENDS OF THE NEW FOREST
Representees
Not yet archived · Original link
REPRESENTEE NIGEL READ 1 ALUM CLOSE
Representees
Not yet archived · Original link
REPRESENTEE P HUMPHRISS TIMBERS
Representees
Not yet archived · Original link
REPRESENTEE P J ALEXANDER 61 HOLBURY DROVE
Representees
Not yet archived · Original link
REPRESENTEE PAMELA JONES 9 TIMBERLEY CLOSE
Representees
Not yet archived · Original link
REPRESENTEE PAUL WEBB 92 ROLLESTONE ROAD
Representees
Not yet archived · Original link
REPRESENTEE PAULA OAKLEY 67 ROLLESTONE ROAD
Representees
Not yet archived · Original link
REPRESENTEE PAULA PRESTON 11 ACORN CLOSE
Representees
Not yet archived · Original link
REPRESENTEE PETER MOSS 66 ROLLESTONE ROAD
Representees
Not yet archived · Original link
REPRESENTEE PHILIP BUTTERFIELD 3 MARLBOROUGH COURT
Representees
Not yet archived · Original link
REPRESENTEE R HALEY 73 LIME KILN LANE
Representees
Not yet archived · Original link
REPRESENTEE RACHEL SHRIVE GREENEDGE
Representees
Not yet archived · Original link
REPRESENTEE RESPONSE - MISS ALBRECHT, 20 KINGS RIDE
Representees
Not yet archived · Original link
REPRESENTEE RESPONSE - MR AND MRS SMITH, LITTLE BRITIAN
Representees
Not yet archived · Original link
REPRESENTEE RESPONSE - MR TILLYER, ROWDOWN COTTAGE
Representees
Not yet archived · Original link
REPRESENTEE RESPONSE - MR TILLYER, ROWDOWN COTTAGE
Representees
Not yet archived · Original link
REPRESENTEE RESPONSE - MR TILLYER, ROWDOWN COTTAGE
Representees
Not yet archived · Original link
REPRESENTEE RICHARD THOMPSON 16 ALUM CLOSE
Representees
Not yet archived · Original link
REPRESENTEE RUSSELL OAKLEY 67 ROLLESTONE ROAD
Representees
Not yet archived · Original link
REPRESENTEE S WRIGHT 61 ROLLESTONE ROAD
Representees
Not yet archived · Original link
REPRESENTEE SADIE THORN 15 SMITH CLOSE
Representees
Not yet archived · Original link
REPRESENTEE SAMUEL MILLS 22 HEATHER ROAD
Representees
Not yet archived · Original link
REPRESENTEE SANDIE KING 6 SHAPTON CLOSE
Representees
Not yet archived · Original link
REPRESENTEE SANDIE MOSS 66 ROLLESTONE ROAD
Representees
Not yet archived · Original link
REPRESENTEE SANDRA BIDDLECOMBE TANGLEWOOD
Representees
Not yet archived · Original link
REPRESENTEE SARA LYONS 16 ALUM CLOSE
Representees
Not yet archived · Original link
REPRESENTEE SARAH TOOMBS 5 BERNWOOD GROVE
Representees
Not yet archived · Original link
REPRESENTEE SCOTT STRRONACH. 8 LONG COPSE. HOLBURY
Representees
Not yet archived · Original link
REPRESENTEE SHARLENE CLARKE 41 ROLLESTONE ROAD
Representees
Not yet archived · Original link
REPRESENTEE SHARON ELKIN 58 CHURCH FARM CLOSE
Representees
Not yet archived · Original link
REPRESENTEE SOPHIE CLARK 8 NASH ROAD
Representees
Not yet archived · Original link
REPRESENTEE SOPHIE EKAND 15 MANOR ROAD
Representees
Not yet archived · Original link
REPRESENTEE STEPHEN R TAYLOR 11 FAIRWAY ROAD
Representees
Not yet archived · Original link
REPRESENTEE STEVE HILL MEADOW VIEW
Representees
Not yet archived · Original link
REPRESENTEE STEVEN FORSBERG 3 TRENLEY CLOSE
Representees
Not yet archived · Original link
REPRESENTEE STUART CHALLIS FLAT 7 FURZE COURT
Representees
Not yet archived · Original link
REPRESENTEE SUE ROBERTS. 33 SPRINGFIELD AVENUE. HOLBURY
Representees
Not yet archived · Original link
REPRESENTEE TERRI BABEY 49 CRAWTE AVE
Representees
Not yet archived · Original link
REPRESENTEE TONI HASEMANHURST 15 MOPLEY CLOSE
Representees
Not yet archived · Original link
REPRESENTEE TONY DRODGE FOREST EDGE, CHAPEL LANE. LANGLEY
Representees
Not yet archived · Original link
REPRESENTEE V & M FARMER 7 ROLLESTONE ROAD
Representees
Not yet archived · Original link
REPRESENTEE VERA SHERWOOD 8 WILVERLEY PLACE
Representees
Not yet archived · Original link
REPRESENTEE VICKI HUMHREY 33 REDRISE CLOSE
Representees
Not yet archived · Original link
REPRESENTEE- JUSTIN PACKMAN - ON BEHALF OF THE RESIDENTS OF HOLBURY
Representees
Not yet archived · Original link
REPRESENTEEE - VIRGINIA GUY 23 ROLLESTONE ROAD
Representees
Not yet archived · Original link
REPRESENTEEMRS SARA-JANE HARVEY-LEE 39 HOBSON WAY
Representees
Not yet archived · Original link
REPRSENTEE MRS S STORRY WEETWOOD NORTH ROAD
Representees
Not yet archived · Original link
REPRSENTEE MRS SHERRIFF 3 ASHLEY CROSS CLOSE
Representees
Not yet archived · Original link
REPRSENTEE MRS T M THROPP BRAMLEY COTTAGE 223 HAMPTON LANE
Representees
Not yet archived · Original link
REPRSENTEE MRS TRACEY DEBELL HOLLYMEAD WEST COMMON
Representees
Not yet archived · Original link
REPRSENTEE MRS WILLEMIEN COLLINS 77 STUDLEY AVENUE
Representees
Not yet archived · Original link
RESPONSE TO CONSULTEE COMMENTS
Reports
Not yet archived · Original link
RESPONSE TO HCC
Applications Processing
Not yet archived · Original link
RESPONSE TO NFDC ECOLOGIST
Reports
Not yet archived · Original link
RESPONSE TO NHS CARE BOARD
Applications Processing
Not yet archived · Original link
REVISED PART 3 TN DRAINAGE LAYOUT PLAN
Plans
Not yet archived · Original link
REVISED RESPONSE HCC EDUCATION
Consultee Comment
Not yet archived · Original link
ROB CLOTHIER ROUGHDOWN HOUSE
Representees
Not yet archived · Original link
ROLLESTONE ROAD IMPROVEMENT PLAN
Plans
Not yet archived · Original link
ROLLESTONE ROAD IMPROVEMENT WORKS
Plans
Not yet archived · Original link
ROLLESTONE ROAD PEDESTRIAN CROSSING VISIBILITY SPLAYS
Plans
Not yet archived · Original link
SAM CLOTHIER ROUGHDOWN HOUSE
Representees
Not yet archived · Original link
SCH OF ACCOMMODATION REV N
Applications Processing
Not yet archived · Original link
SCH OF ACCOMMODATION SUMMARY
Applications Processing
Not yet archived · Original link
SITE ACCESS ARRANGEMENTS
Plans
Not yet archived · Original link
SITE LAYOUT
Plans
Not yet archived · Original link
SITE LAYOUT
Superseded Plans
Not yet archived · Original link
Plans
Archived · Original link
SITE MASTERPLAN
Superseded Plans
Not yet archived · Original link
SITE NOTICE 1
Applications Processing
Not yet archived · Original link
SITE NOTICE 2
Applications Processing
Not yet archived · Original link
SITE NOTICE 3
Applications Processing
Not yet archived · Original link
SITE NOTICE 4
Applications Processing
Not yet archived · Original link
SITE NOTICE 5
Applications Processing
Not yet archived · Original link
SITE NOTICE 6
Applications Processing
Not yet archived · Original link
SSEN ELECTRICITY COMPANY
Consultee Comment
Not yet archived · Original link
STATEMENT OF COMMUNITY INVOLVEMENT
Submitted Applications
Not yet archived · Original link
STATEMENT OF COMMUNITY INVOLVEMENT
Submitted Applications
Not yet archived · Original link
SUPERSEDED AIR QUALITY ASSESSMENT
Superseded Plans
Not yet archived · Original link
SUPERSEDED ANRG & WGOS DRAINAGE REPORT (PART 1)
Superseded Plans
Not yet archived · Original link
SUPERSEDED ARBORICULTURAL IMPLICATIONS REPORT
Superseded Plans
Not yet archived · Original link
SUPERSEDED ARCHAEOLOGICAL DESK BASED ASSESSMENT
Superseded Plans
Not yet archived · Original link
SUPERSEDED BIODIVERSITY NET GAIN REPORT
Superseded Plans
Not yet archived · Original link
SUPERSEDED BNG METRIC
Superseded Plans
Not yet archived · Original link
SUPERSEDED BUILT HERITAGE STATEMENT
Superseded Plans
Not yet archived · Original link
SUPERSEDED C2 - COMPETENCY STATEMENT
Superseded Plans
Not yet archived · Original link
SUPERSEDED DESIGN & ACCESS STATEMENT (PART 1)
Superseded Plans
Not yet archived · Original link
SUPERSEDED DESIGN & ACCESS STATEMENT (PART 2)
Superseded Plans
Not yet archived · Original link
SUPERSEDED DESIGN & ACCESS STATEMENT (PART 3)
Superseded Plans
Not yet archived · Original link
SUPERSEDED DESIGN & ACCESS STATEMENT (PART 4)
Superseded Plans
Not yet archived · Original link
SUPERSEDED DESIGN & ACCESS STATEMENT (PART 5)
Superseded Plans
Not yet archived · Original link
SUPERSEDED DRAINAGE LAYOUT
Plans
Not yet archived · Original link
SUPERSEDED ECOLOGICAL ASSSESMENT
Superseded Plans
Not yet archived · Original link
SUPERSEDED ENVIRONMENTAL STATEMENT
Superseded Plans
Not yet archived · Original link
SUPERSEDED ENVIRONMENTAL STATEMENT NON-TECHNICAL SUMMARY
Superseded Plans
Not yet archived · Original link
SUPERSEDED FLOOD RISK ASSESSMENT
Superseded Plans
Not yet archived · Original link
SUPERSEDED FOUL WATER DRAINAGE STRATEGY
Superseded Plans
Not yet archived · Original link
SUPERSEDED HEIGHTS PARAMETER PLAN
Superseded Plans
Not yet archived · Original link
SUPERSEDED ILLUSTRATIVE MASTERPLAN
Superseded Plans
Not yet archived · Original link
SUPERSEDED LAND USE PARAMETER PLAN
Superseded Plans
Not yet archived · Original link
SUPERSEDED LIGHTING ASSESSMENT
Superseded Plans
Not yet archived · Original link
SUPERSEDED LOCATION PLAN
Superseded Plans
Not yet archived · Original link
SUPERSEDED MINERAL SAFEGUARDING ASSESSMENT
Superseded Plans
Not yet archived · Original link
SUPERSEDED MOVEMENT PARAMETER PLAN
Superseded Plans
Not yet archived · Original link
SUPERSEDED NOISE IMPACT ASSESSMENT
Superseded Plans
Not yet archived · Original link
SUPERSEDED POS AND ANRG AREAS
Superseded Plans
Not yet archived · Original link
SUPERSEDED SURFACE WATER DRAINAGE STRATEGY
Superseded Plans
Not yet archived · Original link
SUPERSEDED SUSTAINABILITY STATEMENT
Superseded Plans
Not yet archived · Original link
SUPERSEDED TECHNICAL NOTE TO ASSIST HRA
Superseded Plans
Not yet archived · Original link
SURFACE WATER DRAINAGE NOTE
Applications Processing
Not yet archived · Original link
SUSTAINABILITY PART 2 INDICATIVE DRAINAGE STRATEGY PLAN
Submitted Applications
Not yet archived · Original link
SUSTAINABILITY STATEMENT
Submitted Applications
Not yet archived · Original link
SWEPT PATH ANALYSIS
Plans
Not yet archived · Original link
SWEPT PATH ANALYSIS
Plans
Not yet archived · Original link
T-JUNCTION ACCESS ARRANGEMENTS
Plans
Not yet archived · Original link
TECHNICAL NOTE RESPONSE TO HIGHWAY AUTHORITY
Submitted Applications
Not yet archived · Original link
TECHNICAL RESPONSE TO NFDC ECOLOGY
Reports
Not yet archived · Original link
TOPOGRAPHICAL SURVEY PLAN SHEET 1
Plans
Not yet archived · Original link
TOPOGRAPHICAL SURVEY PLAN SHEET 10
Plans
Not yet archived · Original link
TOPOGRAPHICAL SURVEY PLAN SHEET 11
Plans
Not yet archived · Original link
TOPOGRAPHICAL SURVEY PLAN SHEET 12
Plans
Not yet archived · Original link
TOPOGRAPHICAL SURVEY PLAN SHEET 13
Plans
Not yet archived · Original link
TOPOGRAPHICAL SURVEY PLAN SHEET 14
Plans
Not yet archived · Original link
TOPOGRAPHICAL SURVEY PLAN SHEET 15
Plans
Not yet archived · Original link
TOPOGRAPHICAL SURVEY PLAN SHEET 2
Plans
Not yet archived · Original link
TOPOGRAPHICAL SURVEY PLAN SHEET 3
Plans
Not yet archived · Original link
TOPOGRAPHICAL SURVEY PLAN SHEET 4
Plans
Not yet archived · Original link
TOPOGRAPHICAL SURVEY PLAN SHEET 5
Plans
Not yet archived · Original link
TOPOGRAPHICAL SURVEY PLAN SHEET 6
Plans
Not yet archived · Original link
TOPOGRAPHICAL SURVEY PLAN SHEET 7
Plans
Not yet archived · Original link
TOPOGRAPHICAL SURVEY PLAN SHEET 8
Plans
Not yet archived · Original link
TOPOGRAPHICAL SURVEY PLAN SHEET 9
Plans
Not yet archived · Original link
TRANSPORT ASSESSMENT (OCT 25)
Submitted Applications
Not yet archived · Original link
TRANSPORT ASSESSMENT - VOL 1
Submitted Applications
Not yet archived · Original link
TRANSPORT ASSESSMENT - VOL 2
Submitted Applications
Not yet archived · Original link
TRANSPORT ASSESSMENT - VOL 3
Submitted Applications
Not yet archived · Original link
TRAVEL PLAN FRAMEWORK (OCT 2025)
Submitted Applications
Not yet archived · Original link
UPDATE FROM NP ARCHAEOLOGIST
Consultee Comment
Not yet archived · Original link
UPDATED MINERALS STATEMENT
Reports
Not yet archived · Original link
UTILITY SEARCH TECHNICAL NOTE
Submitted Applications
Not yet archived · Original link
UTILITY SEARCHED TECHNICAL NOTE (OCT 25)
Submitted Applications
Not yet archived · Original link
UTILITY SEARCHES TECHNICAL NOTE V6
Submitted Applications
Not yet archived · Original link
UTILITY SEARCHES TECHNICAL NOTE VOL 6
Submitted Applications
Not yet archived · Original link
VISITOR SURVEY REPORT (JUNE 2024)
Applications Processing
Not yet archived · Original link

Have your say

Your comment matters. Councils must consider every representation that raises material planning considerations.

Write a comment