← Back to New Forest District Council
Application
25/10220
New Forest District Council · IDOX
Status
Awaiting decision
New housing
Received
07 Mar 2025
New dwellings
1
What you can do
Take Action
Make your voice heard. Authorities need to hear from people who support new homes.
Summary
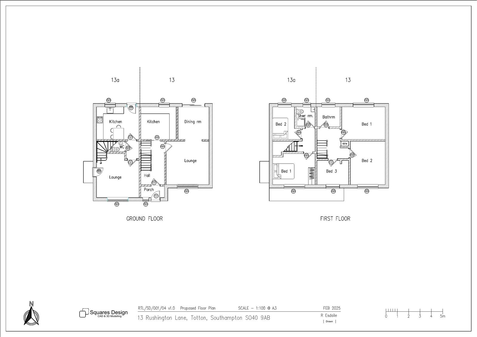
Subdivision of a four-bedroom house to form two dwellings with external alterations and parking.
Full Proposal
Subdivision of existing 4-bedroom house to provide two dwellings; associated external alterations; porch canopy; access alterations; additional hardsurfacing for vehicular parking
Detail pages
- View live detail on council site
- No archived detail page available.
Documents
APPLICATION FORM REDACTED
Submitted Applications
Not downloaded
· Council link
BIODIVERSITY STATEMENT
Submitted Applications
Not downloaded
· Council link
CIL FORM
Submitted Applications
Not downloaded
· Council link
CONSULTEE - HCC HIGHWAYS
Consultee Comment
Not downloaded
· Council link
CONSULTEE - TOTTON AND ELING TOWN COUNCIL, CIVIC CENTRE
Consultee Comment
Not downloaded
· Council link
COPY OF CERTIFICATE B NOTIFICATION
Submitted Applications
Not downloaded
· Council link
DESIGN & ACCESS STATEMENT
Submitted Applications
Not downloaded
· Council link
ECOLOGIST
Pre-Application Enquiries
Not downloaded
· Council link
EXISTING ELEVATIONS
Plans
Not downloaded
· Council link
EXISTING FLOOR PLANS
Plans
Not downloaded
· Council link
EXISTING SITE PLAN
Plans
Archived copy
· Council link
FENCE, CYCLE STORE & REFUSE STORE
Plans
Not downloaded
· Council link
PROPOSED ELEVATIONS
Plans
Not downloaded
· Council link
PROPOSED FLOOR PLANS
Plans
Archived copy
· Council link
PROPOSED SITE PLAN
Plans
Archived copy
· Council link
SITE LOCATION & BLOCK PLANS
Plans
Not downloaded
· Council link