← New Forest District Council

Status

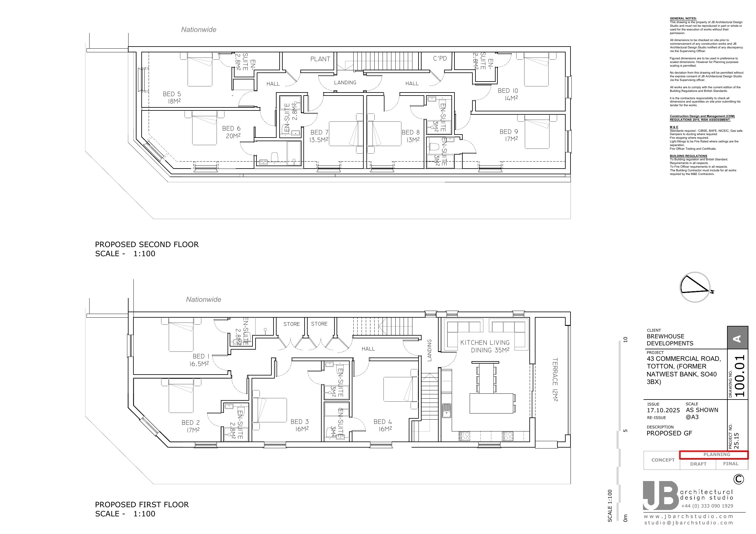
Registered Change of use
Received
13 Jan 2026
New homes
10

Full proposal

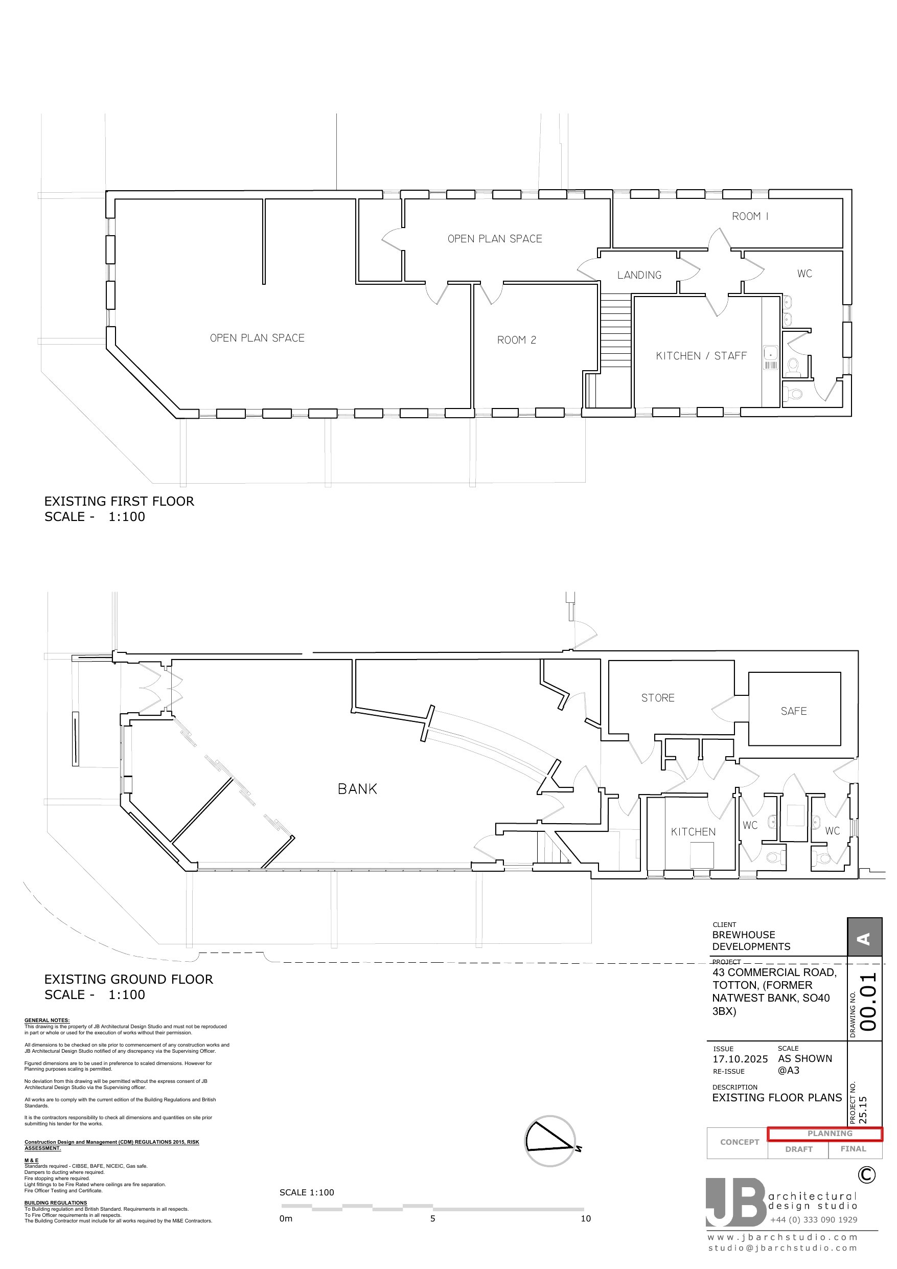
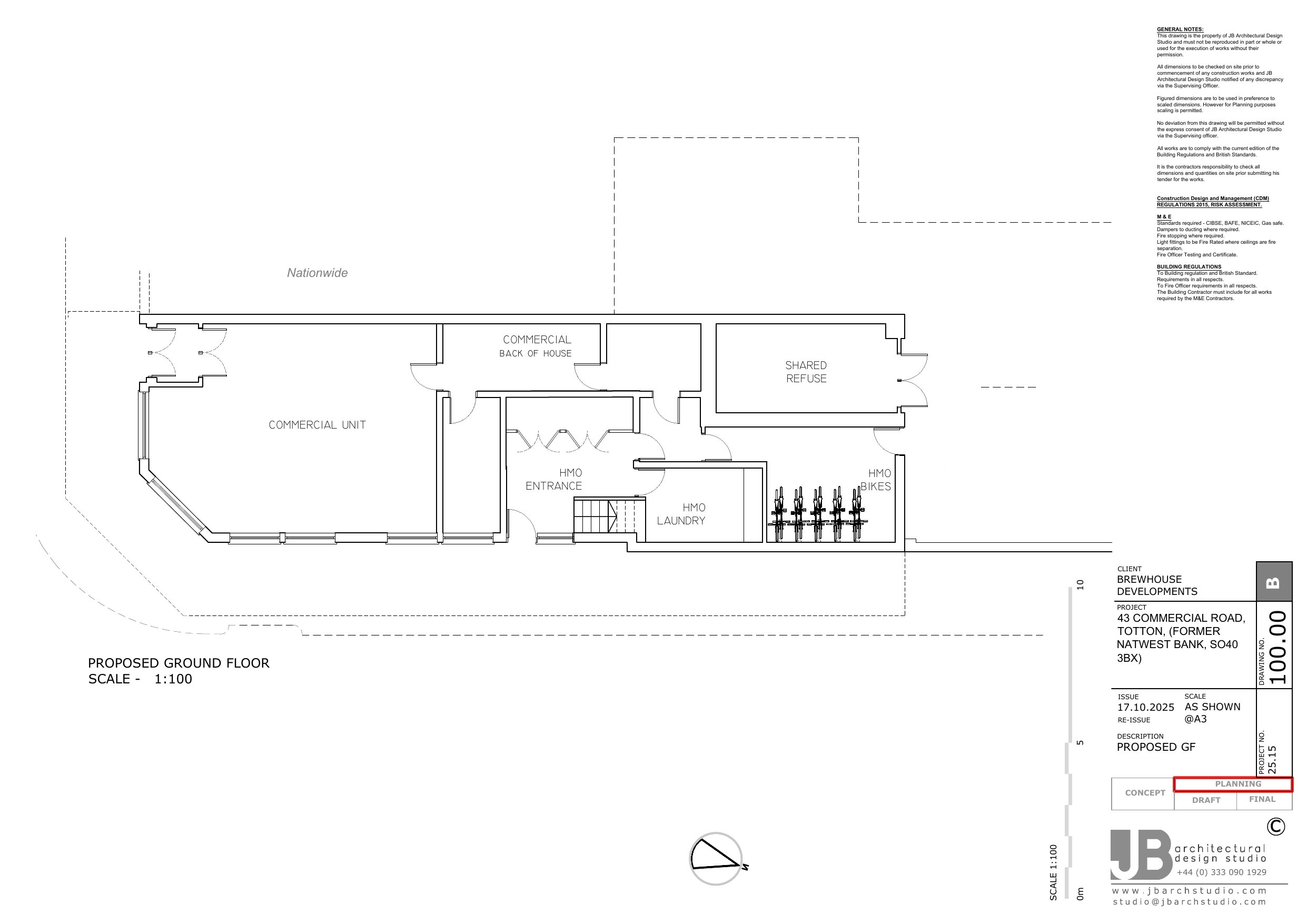
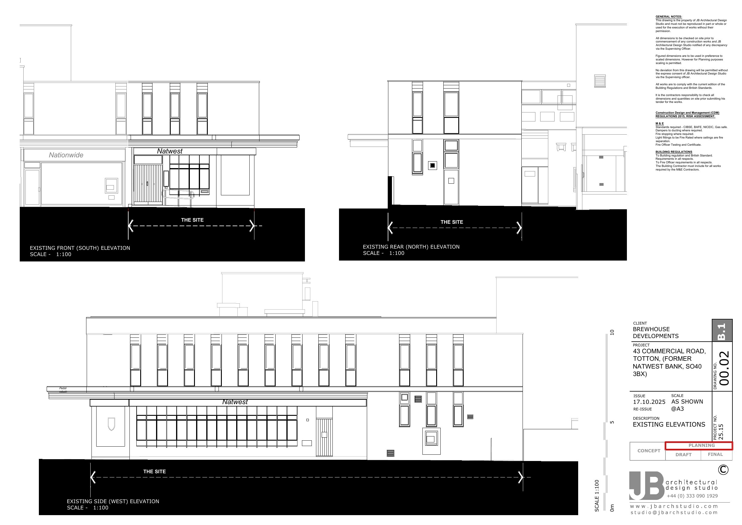
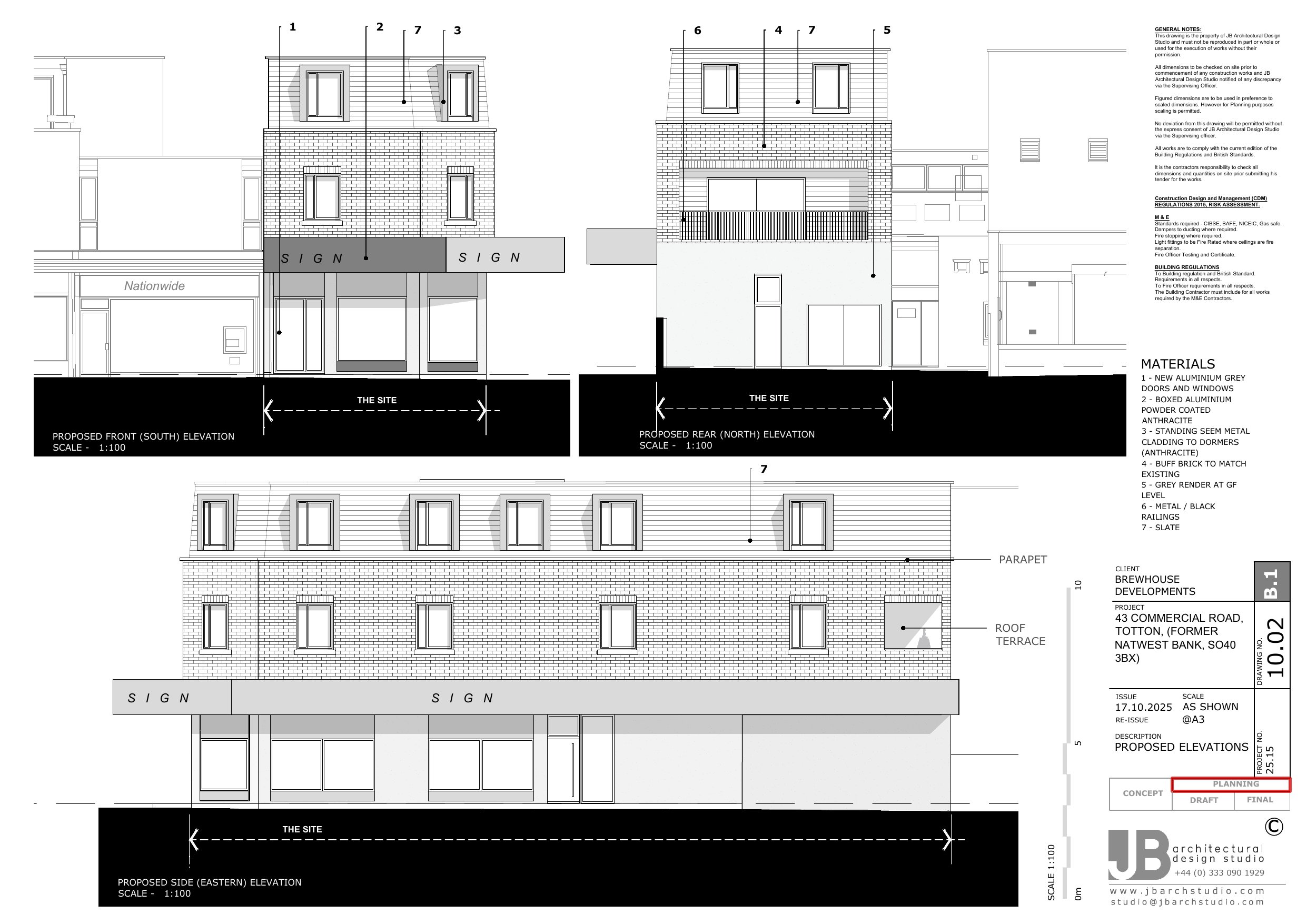
Change of use of upper floors to form a 10-bed HMO, including an upward extension to facilitate the creation of a new second floor; external alterations, including fenestration, material and fascia alterations and the creation of a first floor roof terrace; partial retention of ground floor commercial use

Documents

Submitted Applications
Archived · Original link
Submitted Applications
Archived · Original link
Submitted Applications
Archived · Original link
Submitted Applications
Archived · Original link
Submitted Applications
Archived · Original link
Consultee Comment
Archived · Original link
Submitted Applications
Archived · Original link
Plans
Archived · Original link
Submitted Applications
Archived · Original link

Have your say

Your comment matters. Councils must consider every representation that raises material planning considerations.

Write a comment