← New Forest District Council

Status

Registered Change of use
Received
23 Jan 2026
New homes
0

Full proposal

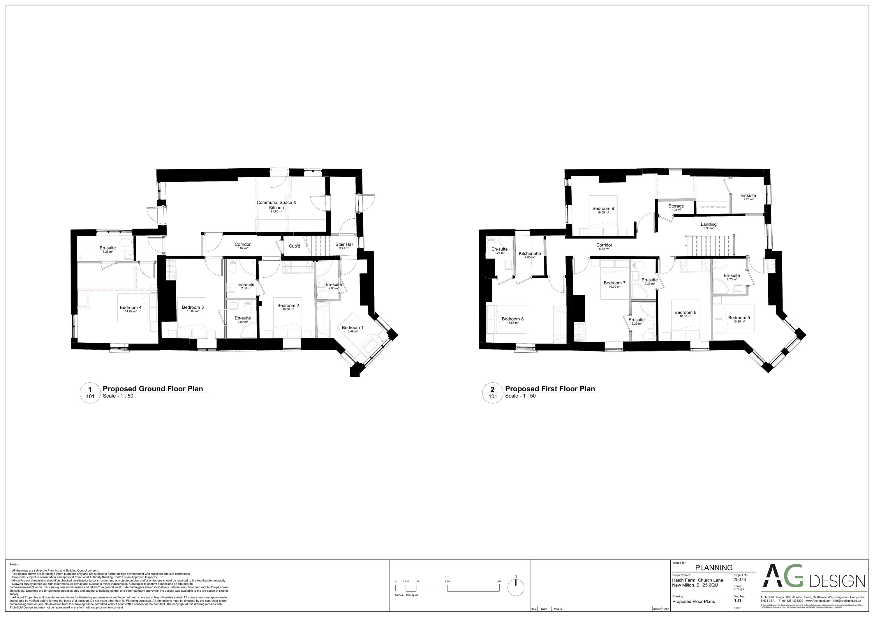
Change of use of the existing building from 2 flats (C3 Use) into a 9 Bedroom House in Multiple Occupation (HMO) (Sui Generis Use) with associated bin and cycle storage

Documents

AGENT EMAIL RE AMENDED PLANS
Applications Processing
Not yet archived · Original link
AIR QUALITY
Submitted Applications
Not yet archived · Original link
AMENDED EXISTING ELEVATIONS
Plans
Not yet archived · Original link
AMENDED PROPOSED ELEVATIONS
Plans
Not yet archived · Original link
APPLICATION FORM REDACTED
Submitted Applications
Not yet archived · Original link
CIL FORM
Submitted Applications
Not yet archived · Original link
COLIN DAVISON
Representees
Not yet archived · Original link
COLIN DAVISON
Representees
Not yet archived · Original link
COLIN DAVISON
Representees
Not yet archived · Original link
COLIN DAVISON
Representees
Not yet archived · Original link
CONSULTEE - ENVIRONMENTAL HEALTH CONTAMINATED LAND
Consultee Comment
Not yet archived · Original link
CONSULTEE - HCC HIGHWAYS
Consultee Comment
Not yet archived · Original link
DESIGN, ACCESS, PLANNING & HERITAGE
Submitted Applications
Not yet archived · Original link
EXISTING ELEVATIONS
Plans
Not yet archived · Original link
EXISTING FLOOR PLANS
Plans
Not yet archived · Original link
INITIAL BRIEFING FROM CASE OFFICER
Applications Processing
Not yet archived · Original link
LETTER TO AGENT
Applications Processing
Not yet archived · Original link
PROPOSED ELEVATIONS
Plans
Not yet archived · Original link
REPRESENTEE - MISS JILL PERRYMAN, FLA 16, FOREST COURT
Representees
Not yet archived · Original link
REPRESENTEE - MISS MARION BREHAUT, 20 BYRON ROAD
Representees
Not yet archived · Original link
REPRESENTEE - MR COLIN DAVISON, 1 GLEBE COTTAGES
Representees
Not yet archived · Original link
REPRESENTEE - MR COLIN DAVISON, 1 GLEBE COTTAGES
Representees
Not yet archived · Original link
REPRESENTEE - MR DAVISON, 1 GLEBE COTTAGE
Representees
Not yet archived · Original link
REPRESENTEE - MR GRAHAM BALDWIN, 2 MANOR FARM CLOSE
Representees
Not yet archived · Original link
REPRESENTEE - MR JON WESTALL, ST MARY'S CHURCH
Representees
Not yet archived · Original link
REPRESENTEE COLIN DAVIDSON
Representees
Not yet archived · Original link
WATER QUALITY CHECKLIST
Submitted Applications
Not yet archived · Original link

Have your say

Your comment matters. Councils must consider every representation that raises material planning considerations.

Write a comment