← New Forest District Council

Status

Registered House extension
Received
03 Feb 2026
New homes
0

Full proposal

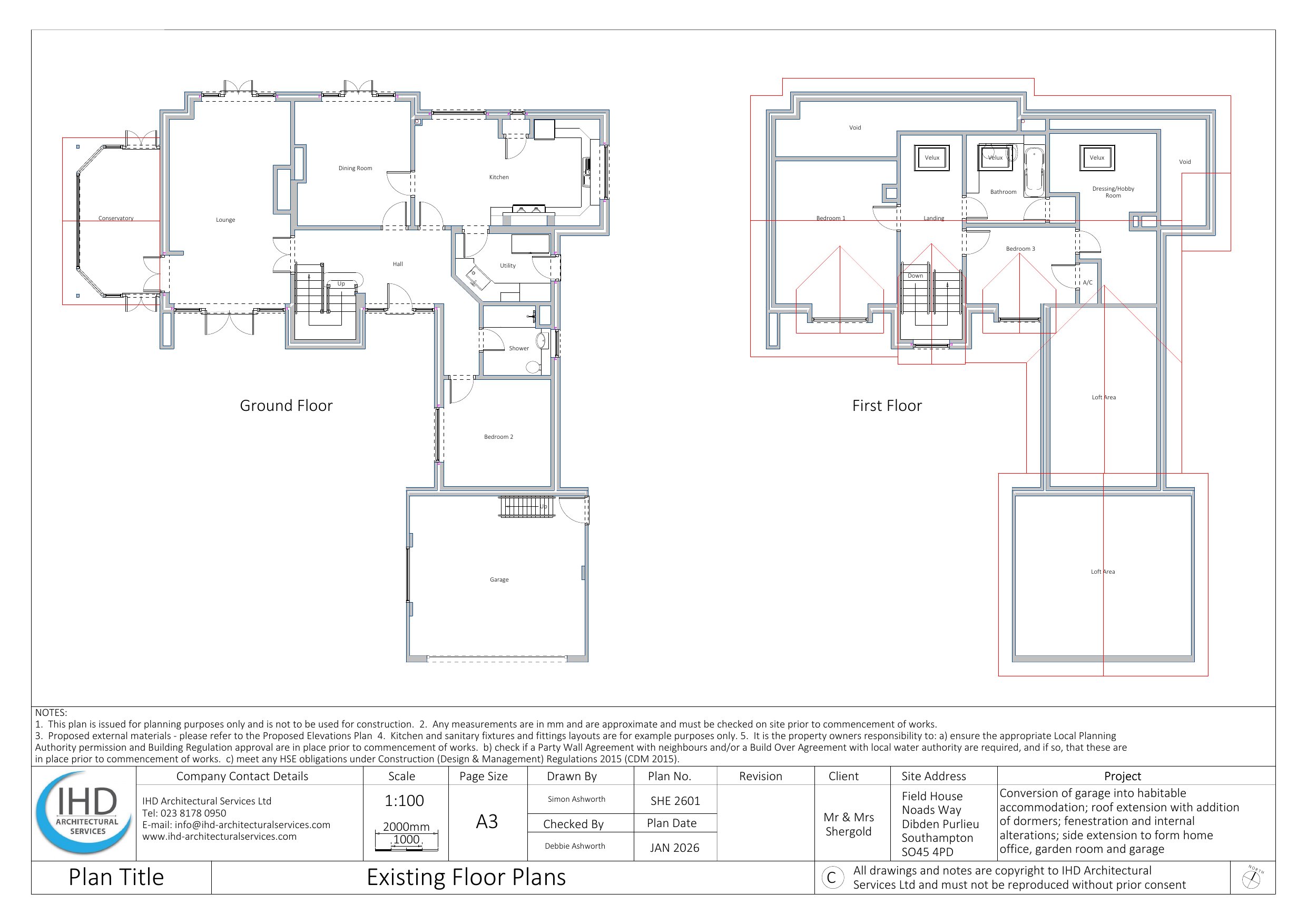
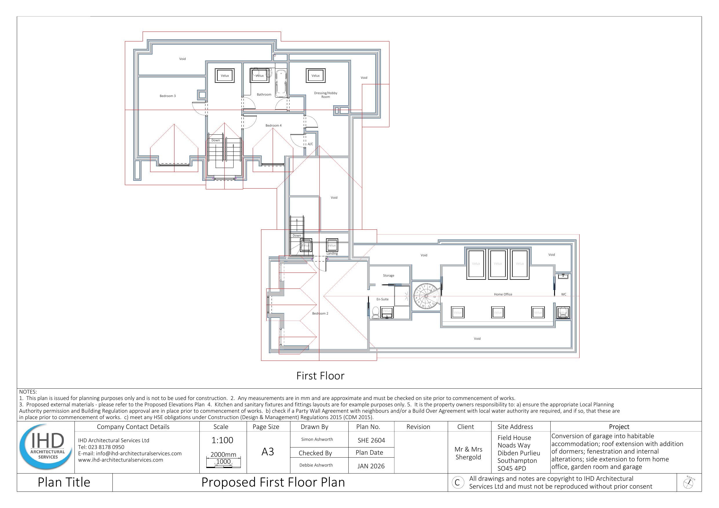
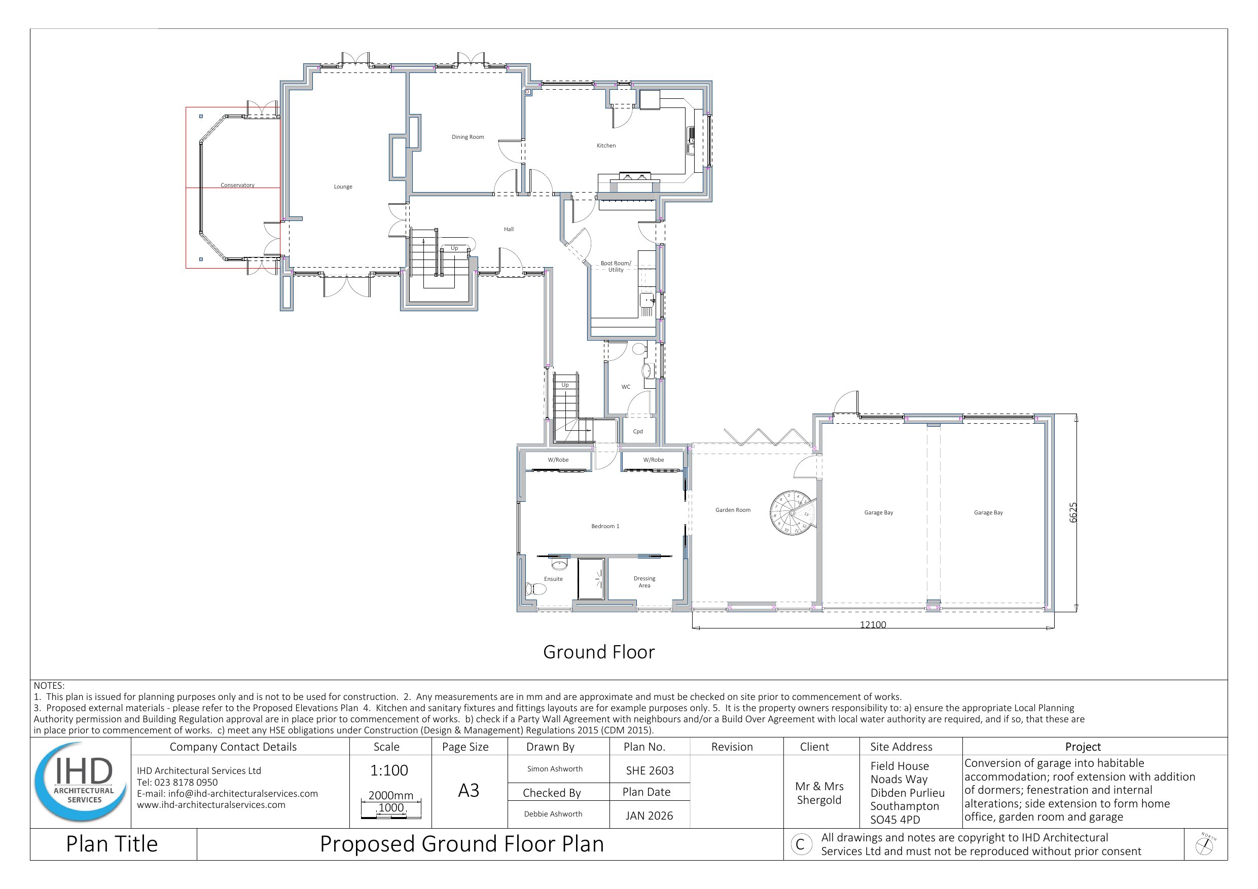
Conversion of garage into habitable accommodation with associated external alterations and roof extension with dormers; fenestration alterations; side extension

Documents

Submitted Applications
Archived · Original link
Applications Processing
Archived · Original link
Submitted Applications
Archived · Original link
Submitted Applications
Archived · Original link
Submitted Applications
Archived · Original link
Plans
Archived · Original link
Plans
Archived · Original link

Have your say

Your comment matters. Councils must consider every representation that raises material planning considerations.

Write a comment