← New Forest District Council

Status

Registered New housing
Received
Last month
New homes
3

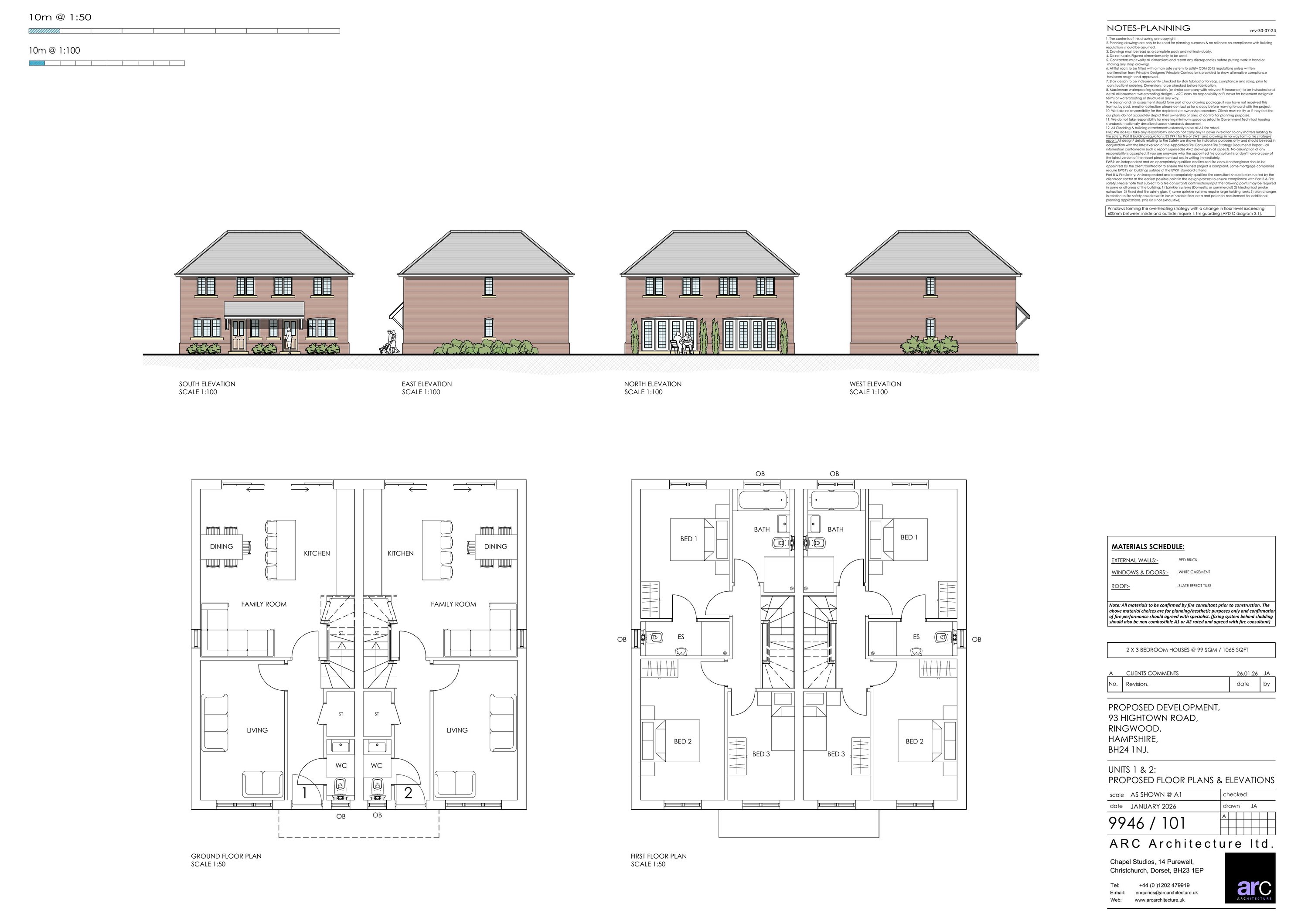
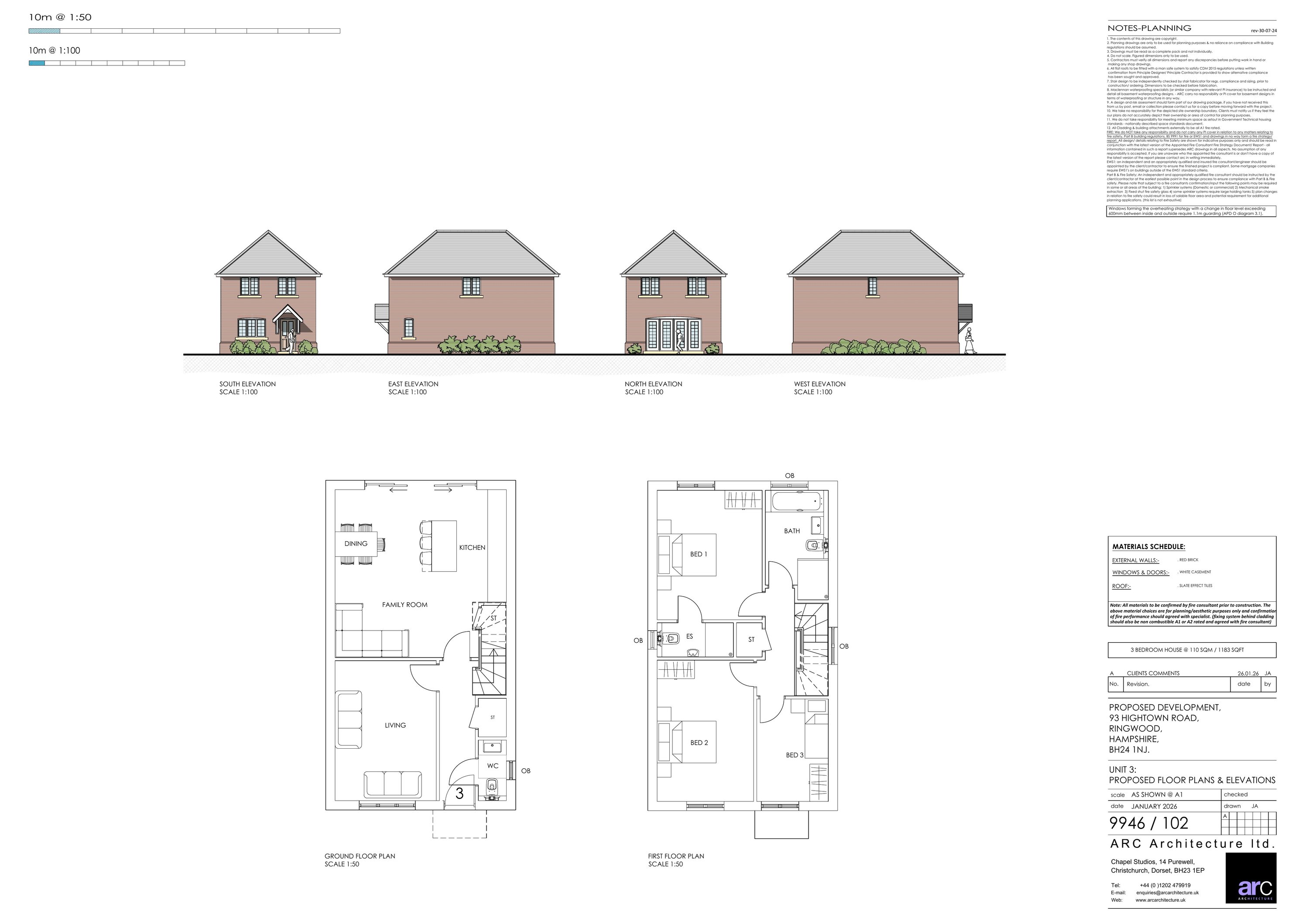
Full proposal

Demolition of the existing dwelling and the erection of a pair of semi-detached houses and a detached house, with on site car parking and shared vehicular access (closure of existing access)

Documents

Submitted Applications
Archived · Original link
Submitted Applications
Archived · Original link
BNG METRIC
Submitted Applications
Not yet archived · Original link
Submitted Applications
Archived · Original link
Submitted Applications
Archived · Original link
CONDITION ASSESSMENTS
Submitted Applications
Not yet archived · Original link
Plans
Archived · Original link
Plans
Archived · Original link
Plans
Archived · Original link
Submitted Applications
Archived · Original link

Have your say

Your comment matters. Councils must consider every representation that raises material planning considerations.

Write a comment