← New Forest District Council

Status

Registered House extension
Received
Last month
New homes
0

Full proposal

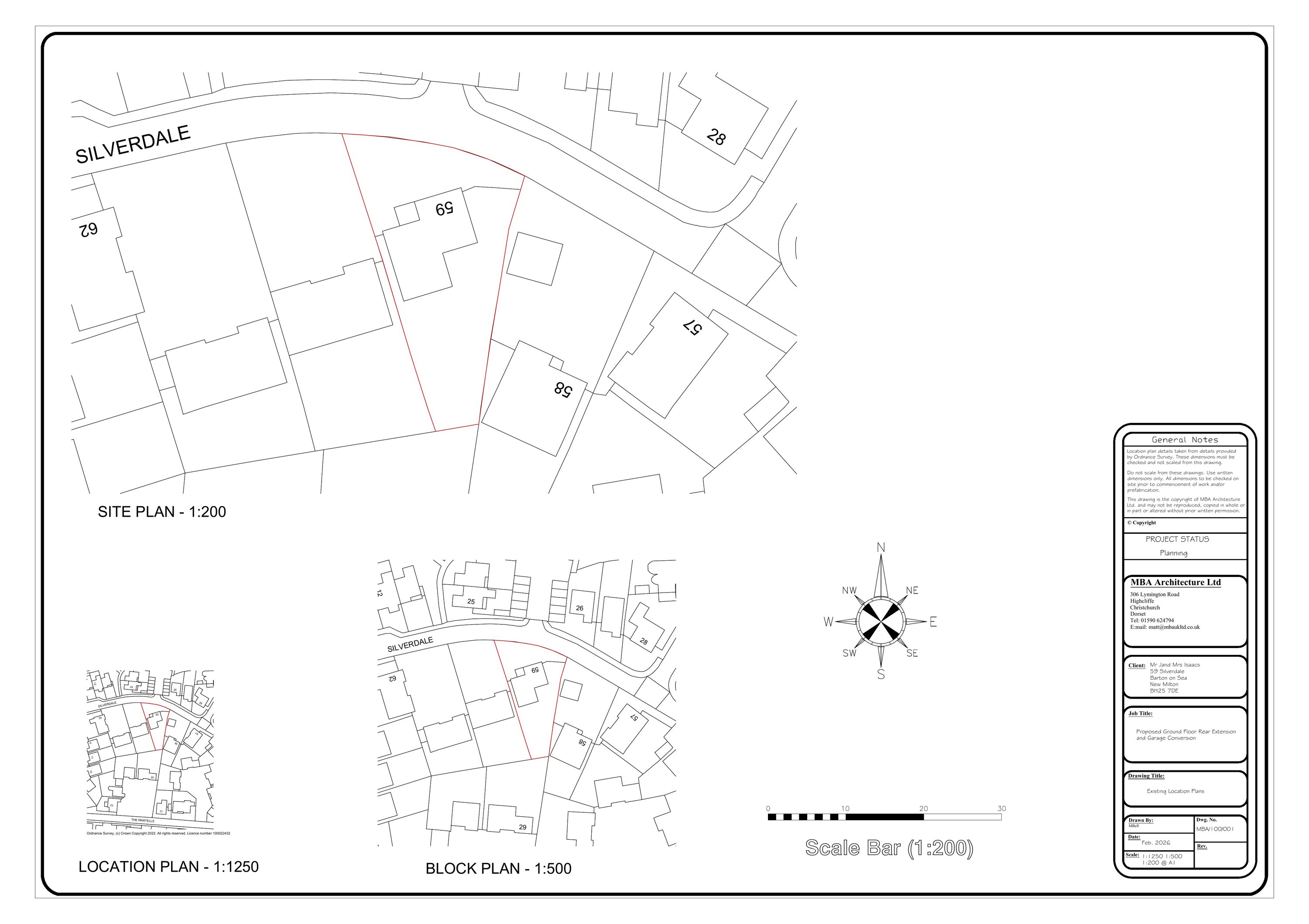
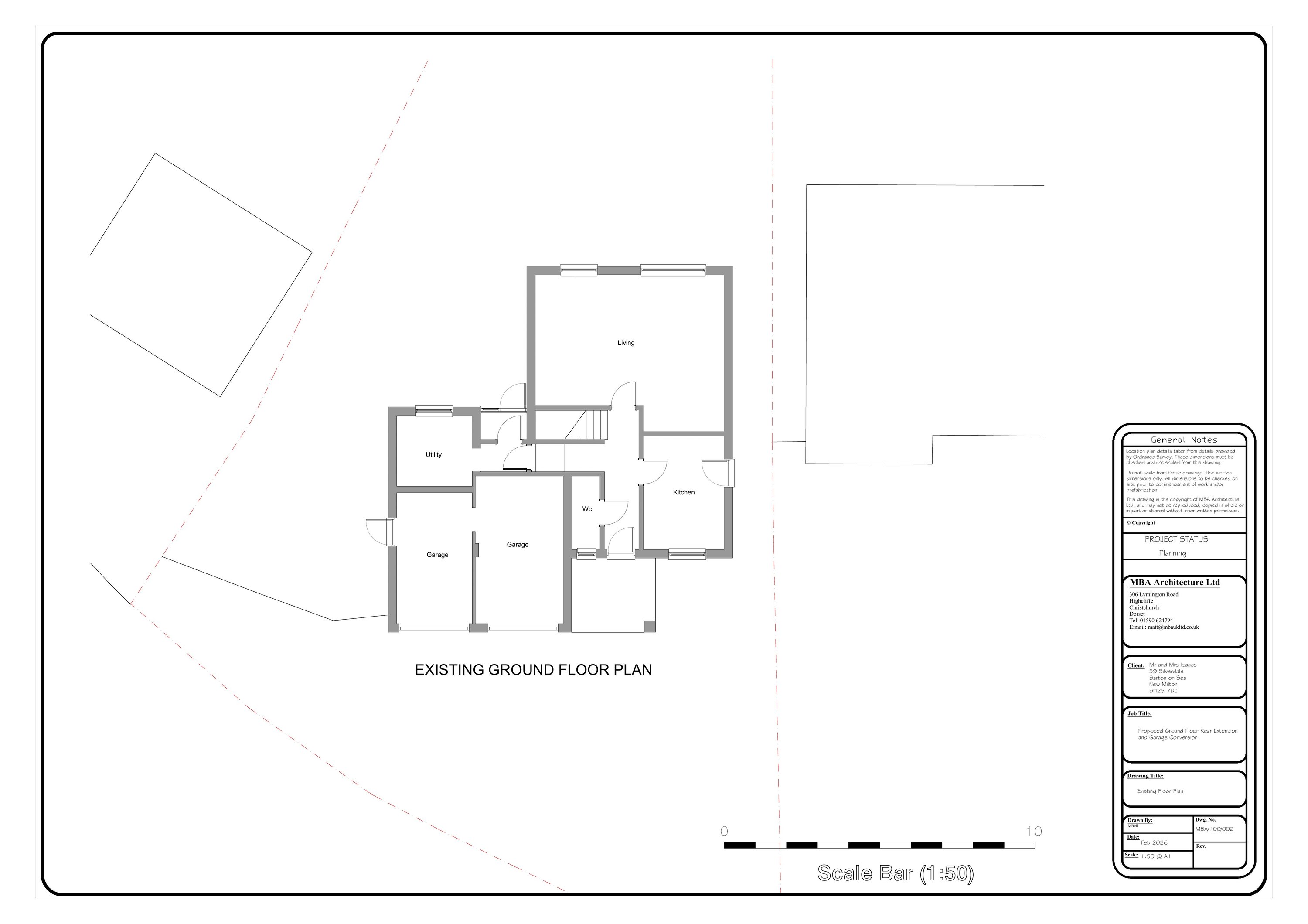
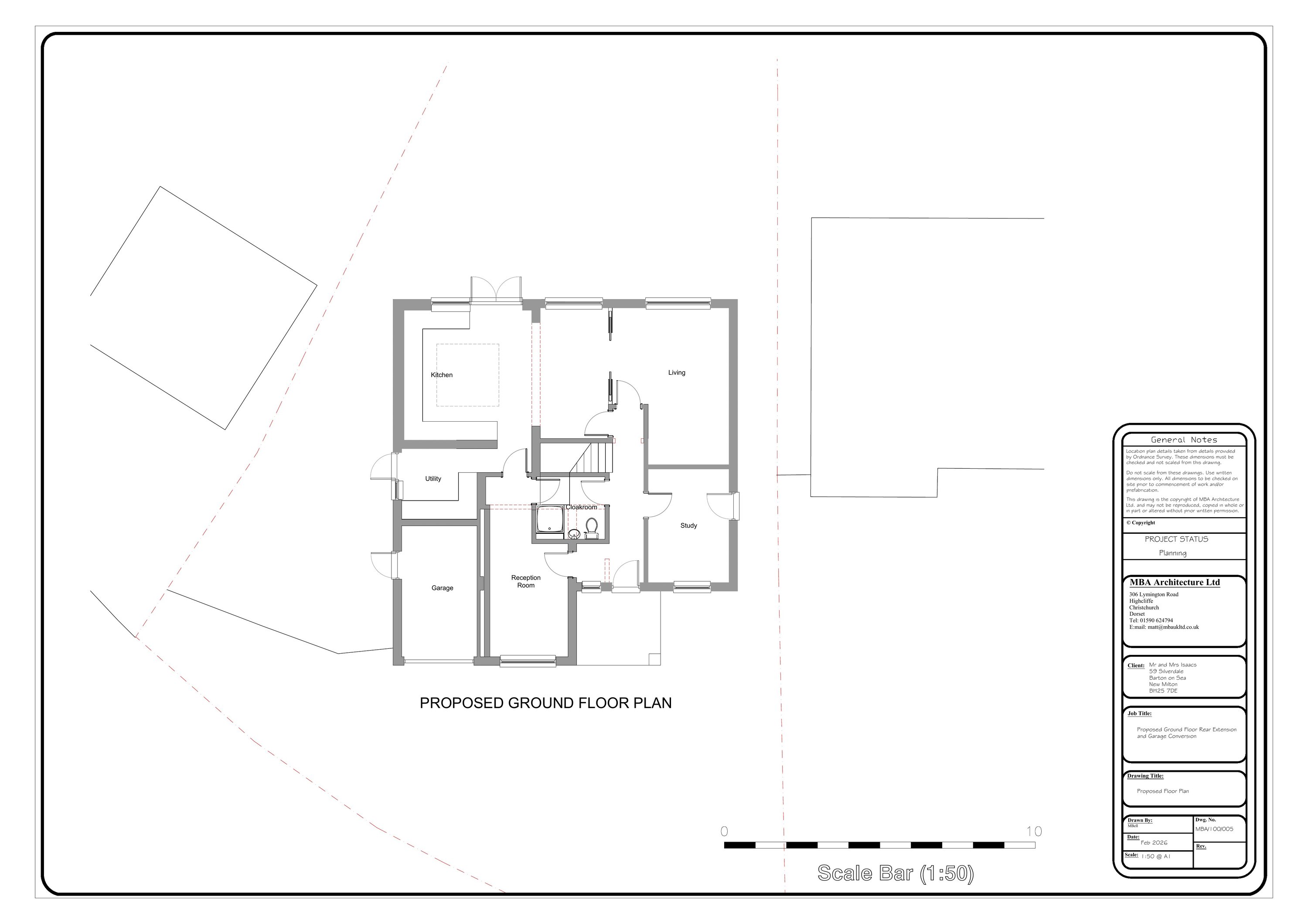
Ground floor rear/side extension and conversion of garage to provide extra living space.

Documents

Submitted Applications
Archived · Original link
Submitted Applications
Archived · Original link
Plans
Archived · Original link
Submitted Applications
Archived · Original link
Applications Processing
Archived · Original link
Plans
Archived · Original link

Have your say

Your comment matters. Councils must consider every representation that raises material planning considerations.

Write a comment