← New Forest District Council

Status

Registered House extension
Received
Last month
New homes
0

Full proposal

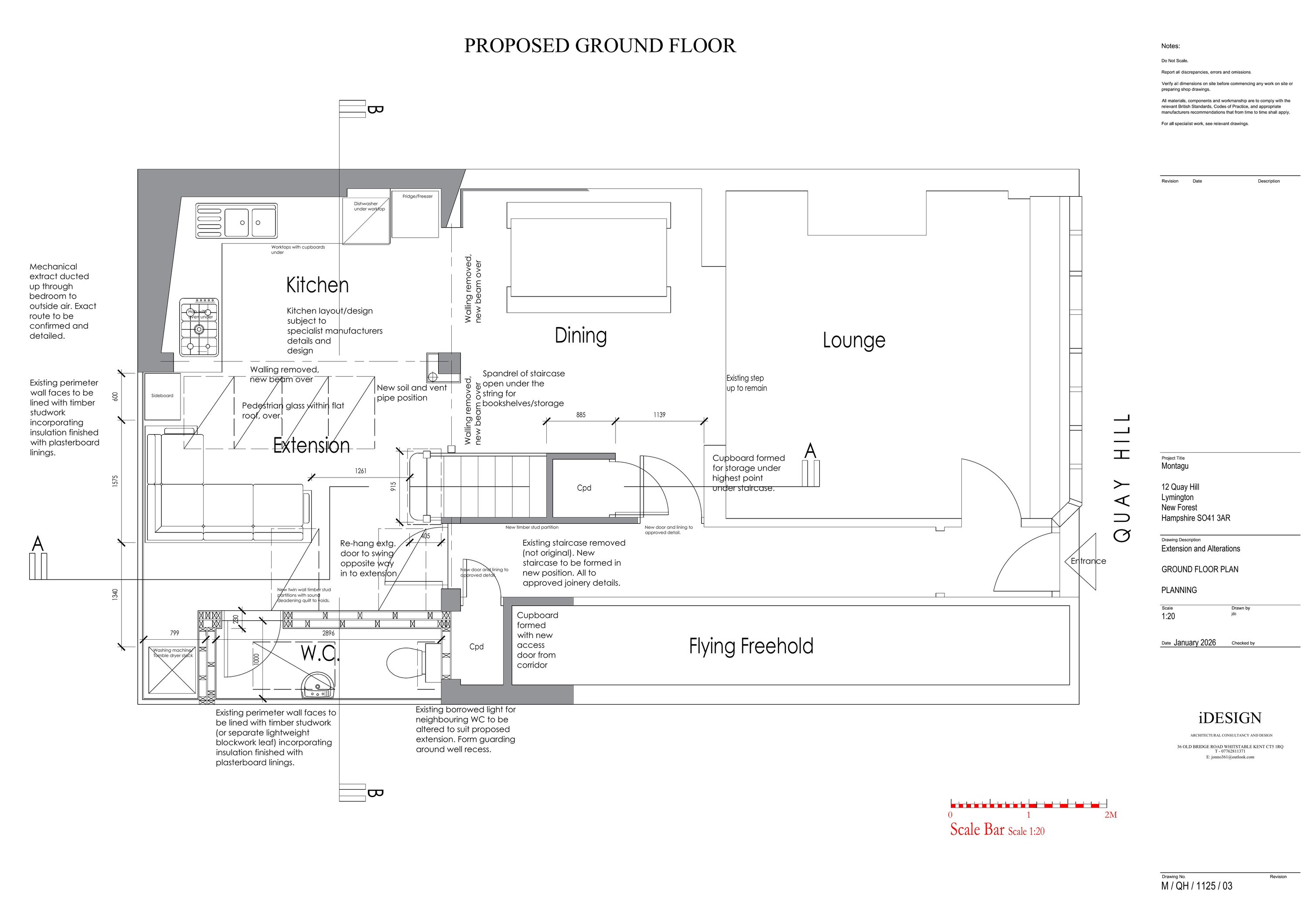
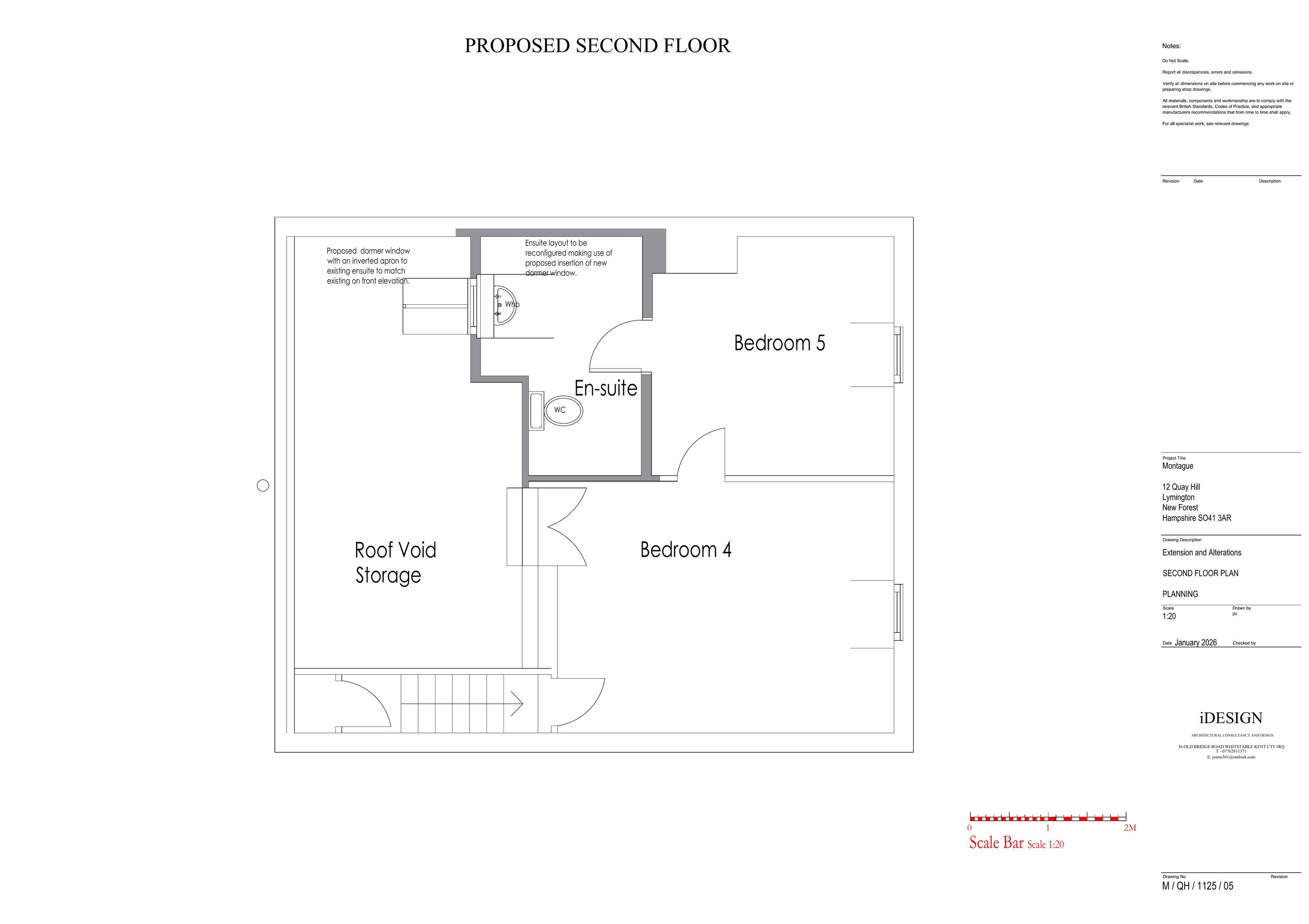
Rear extension to enclose rear yard, rear dormer to existing pitched roof

Documents

Submitted Applications
Archived · Original link
BIODIVERSITY CHECKLIST
Submitted Applications
Not yet archived · Original link
Plans
Archived · Original link
Submitted Applications
Archived · Original link
Submitted Applications
Archived · Original link
Submitted Applications
Archived · Original link
Applications Processing
Archived · Original link
Plans
Archived · Original link

Have your say

Your comment matters. Councils must consider every representation that raises material planning considerations.

Write a comment