26/10192
New Forest District Council
Status
Registered
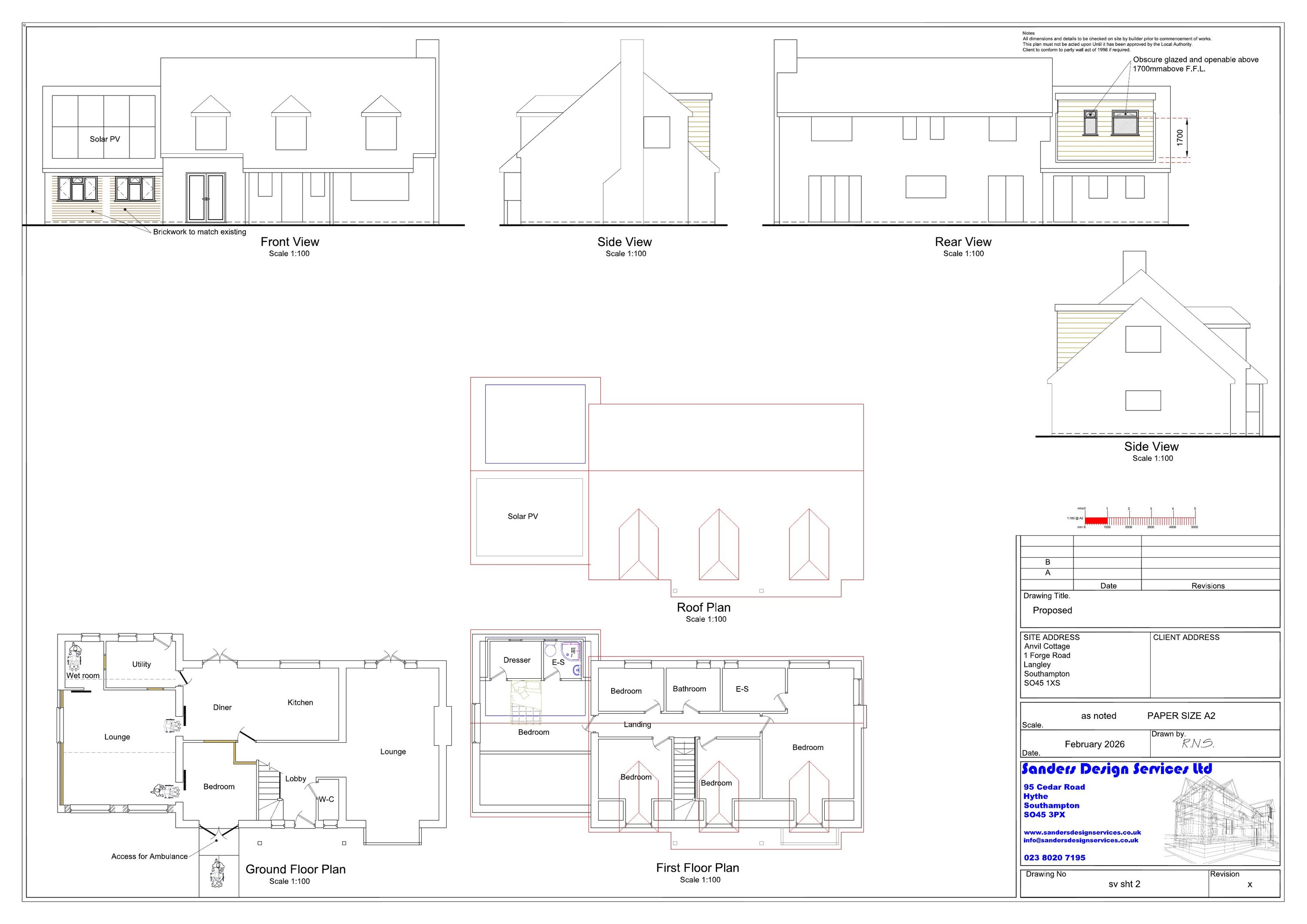
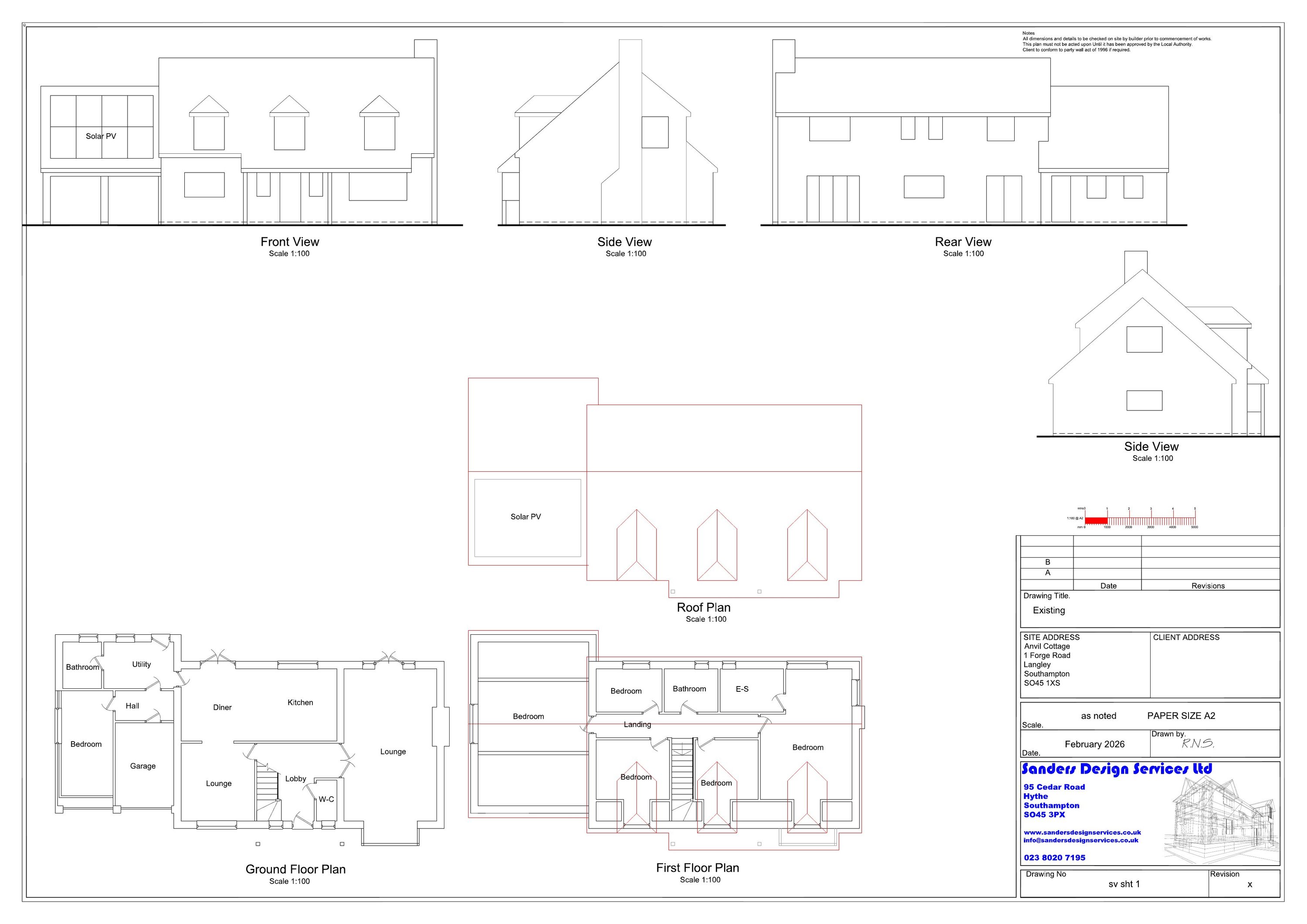
House extension
Received
Last month
New homes
0
Full proposal
Garage conversion, rear dormer & fenestration alteration & ramp access
Documents
Have your say
Your comment matters. Councils must consider every representation that raises material planning considerations.