← New Forest District Council

Status

Registered House extension
Received
Last month
New homes
0

Full proposal

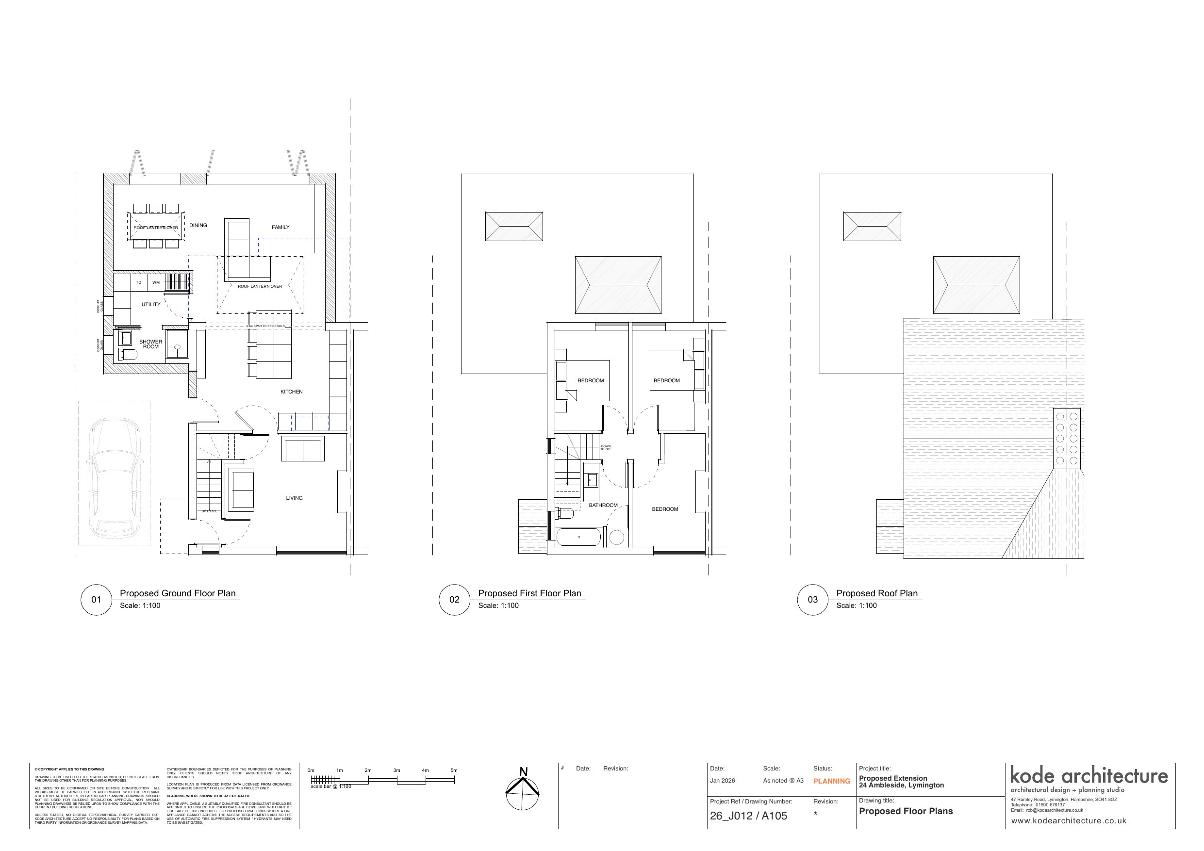
Single-storey side and rear extension; demolition of existing extension and garages

Documents

Submitted Applications
Archived · Original link
Submitted Applications
Archived · Original link
Submitted Applications
Archived · Original link

Have your say

Your comment matters. Councils must consider every representation that raises material planning considerations.

Write a comment