← New Forest District Council

Status

Registered House extension
Received
26 days ago
New homes
0

Full proposal

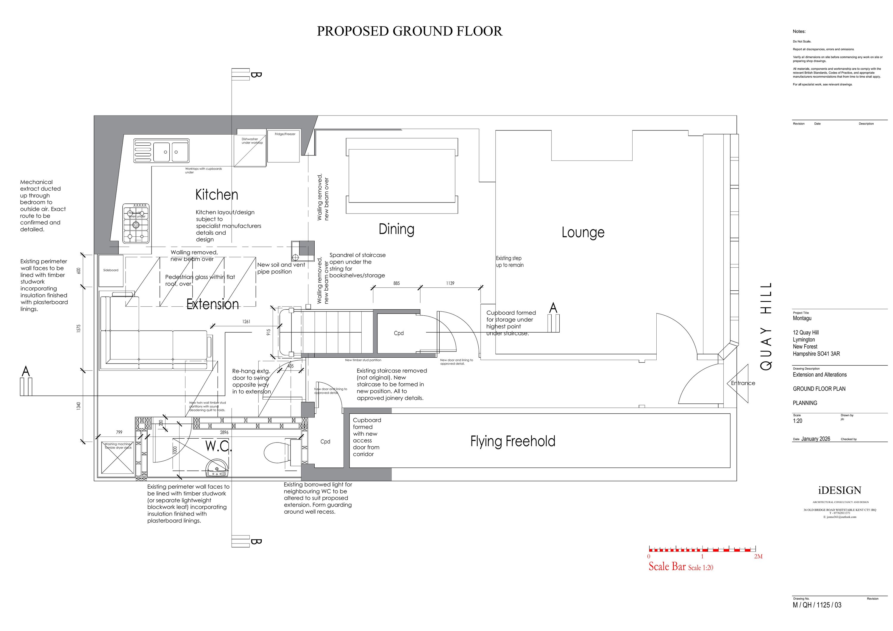
Rear extension to enclose yard, rear dormer to existing pitched roof; roof terrace at first floor

Documents

Submitted Applications
Archived · Original link
BIO DIVERSITY CHECK LIST
Submitted Applications
Not yet archived · Original link
Plans
Archived · Original link
Submitted Applications
Archived · Original link
Submitted Applications
Archived · Original link
Submitted Applications
Archived · Original link
Plans
Archived · Original link
Plans
Archived · Original link
Plans
Archived · Original link

Have your say

Your comment matters. Councils must consider every representation that raises material planning considerations.

Write a comment