← New Forest District Council

Status

Registered House extension
Received
25 days ago
New homes
0

Full proposal

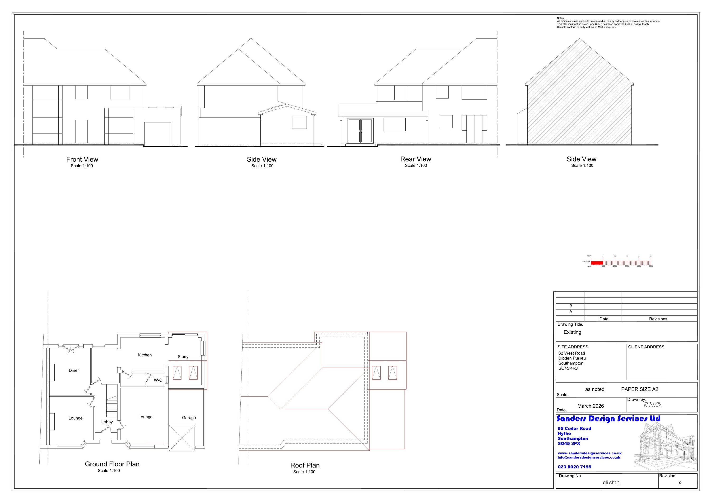
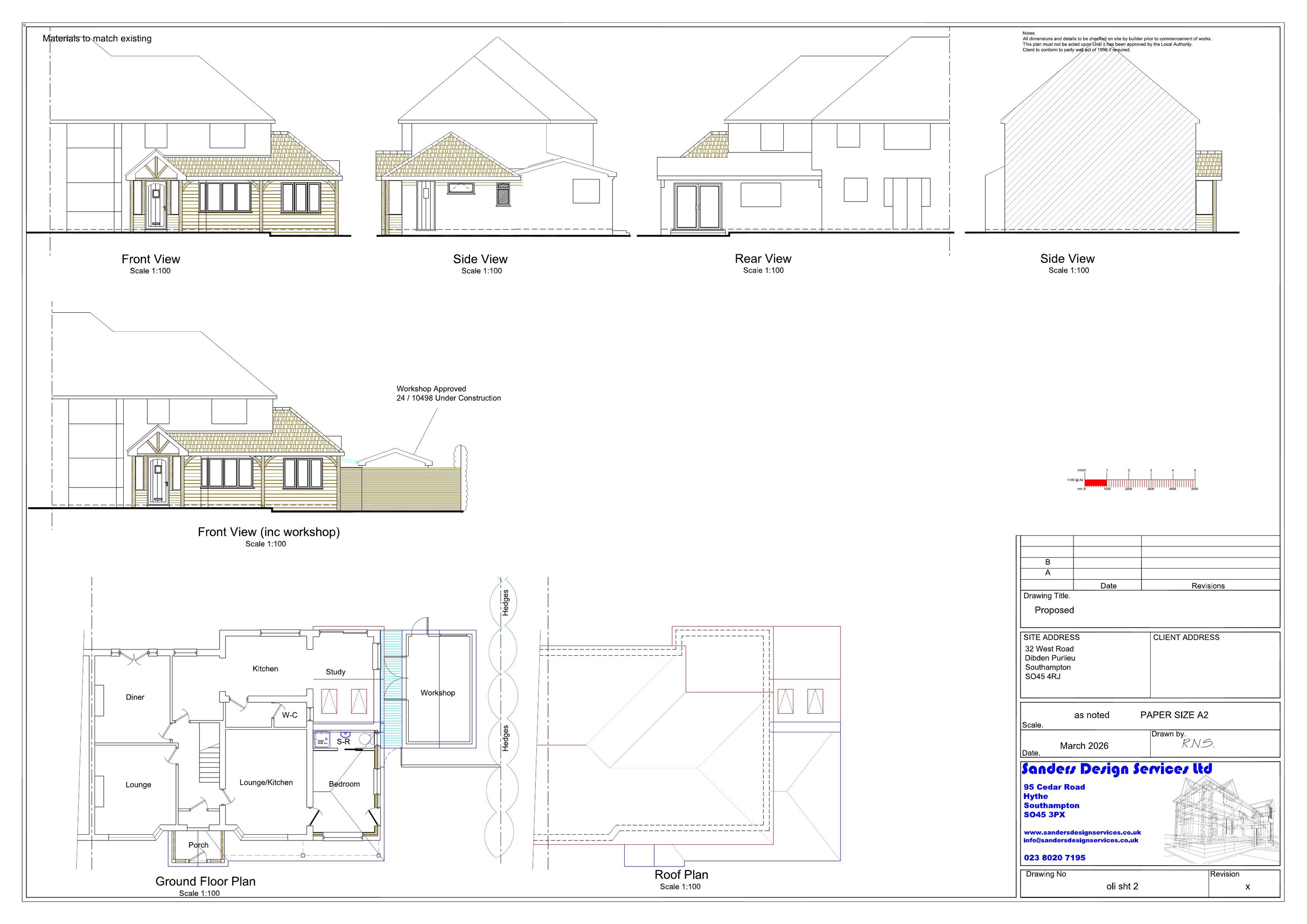
New pitched roof to existing attached garage; conversion of garage to form annexe and associated fenestration alterations; porch & veranda to the front of the property

Documents

Submitted Applications
Archived · Original link
Submitted Applications
Archived · Original link
Submitted Applications
Archived · Original link
Submitted Applications
Archived · Original link
Submitted Applications
Archived · Original link
Submitted Applications
Archived · Original link
Plans
Archived · Original link

Have your say

Your comment matters. Councils must consider every representation that raises material planning considerations.

Write a comment