← New Forest National Park Authority
26/00022FULL
New Forest National Park Authority
Status
Pending Decision
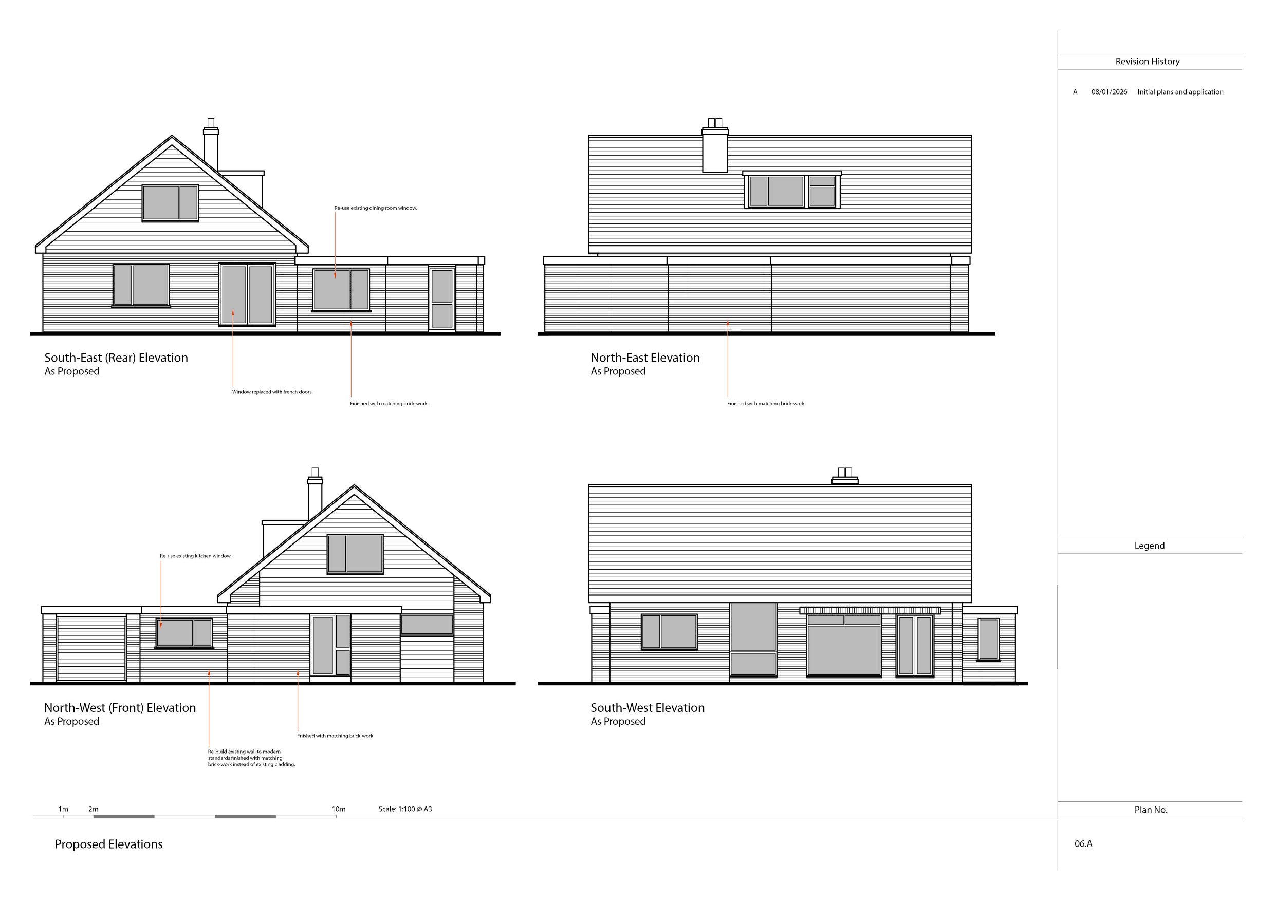
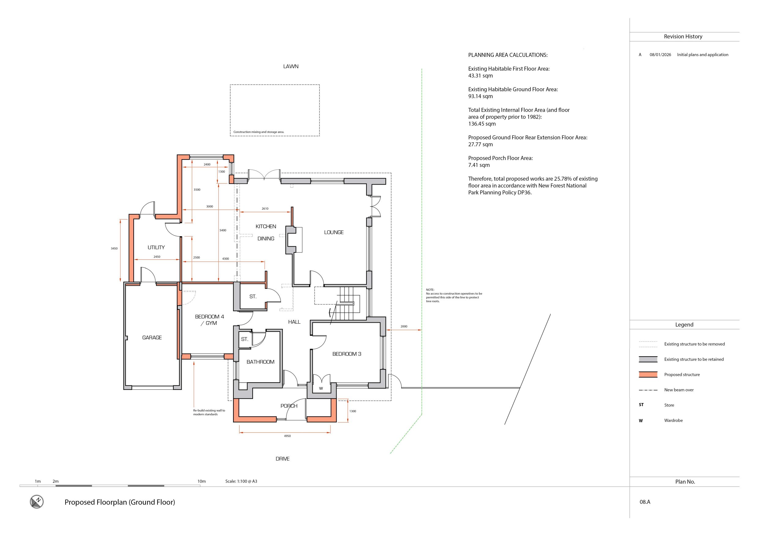
House extension
Received
12 Jan 2026
New homes
0
Full proposal
Single-storey extensions; replacement infill extension; porch
Documents
Have your say
Your comment matters. Councils must consider every representation that raises material planning considerations.