← Back to Newham

Status

Unknown status Change of use
Received n/a
New dwellings 1

What you can do

Take Action

Make your voice heard. Authorities need to hear from people who support new homes.

Summary

Convert single dwelling into two flats with rear dormer, balcony and rooflights.

Full Proposal

Conversion of existing single dwelling house into 2 flats (1 x 1 bed & 1 x 2 bed) with erection of rear dormer extension with rear balcony and 2 front roof lights.

Detail pages

Documents

APPLICATION FORM
Application Form
Not downloaded · Council link
CIL FORM
CIL
Not downloaded · Council link
DECISION NOTICE
Decision
Not downloaded · Council link
DELEGATED REPORT
Decision
Not downloaded · Council link
EXISTING AND PROPOSED ROOF PLANS
Drawing
Not downloaded · Council link
EXISTING BLOCK PLAN
Drawing
Not downloaded · Council link
EXISTING FRONT AND REAR ELEVATIONS
Revised Drawing
Not downloaded · Council link
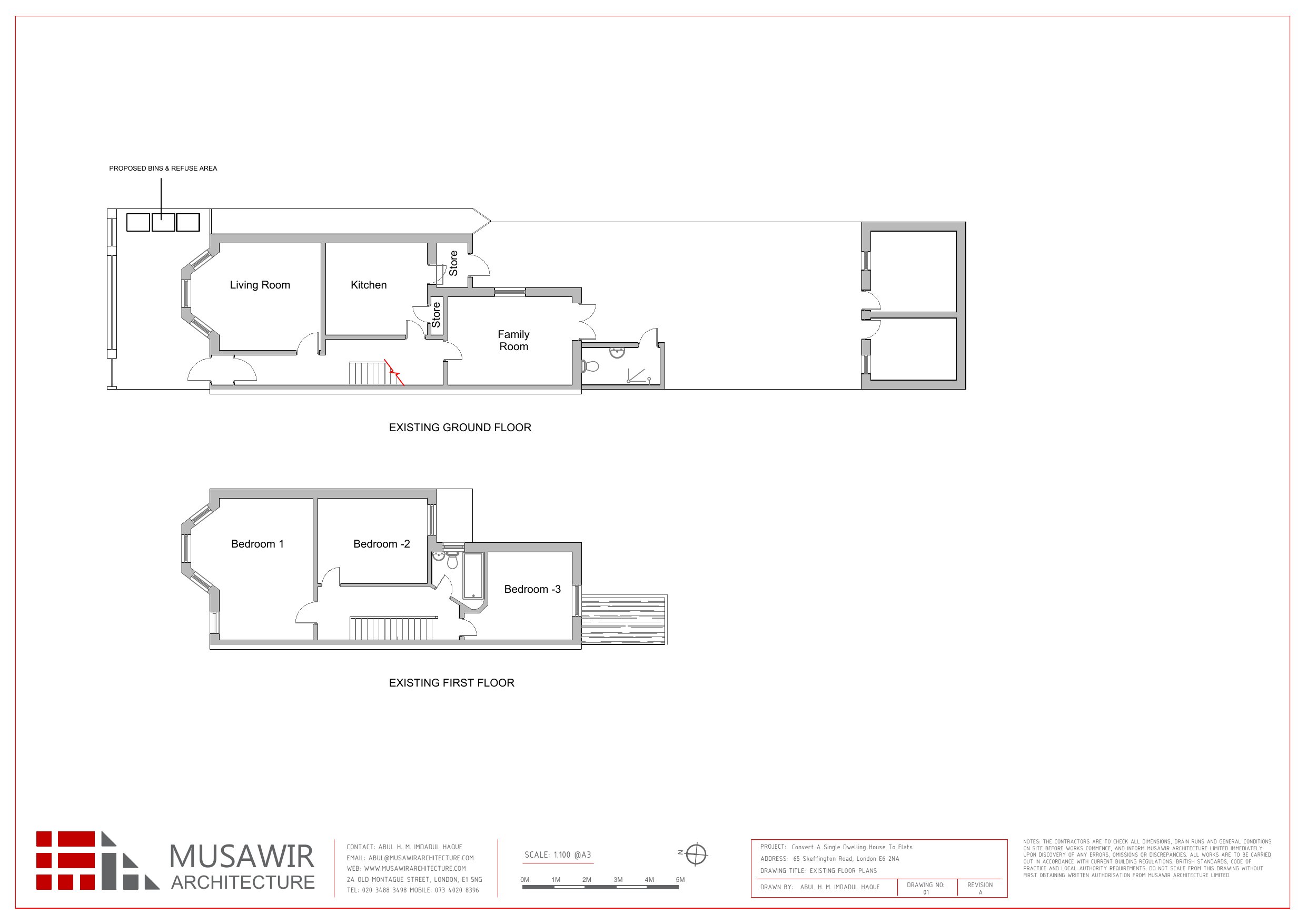
EXISTING GROUND AND FIRST FLOOR PLANS
Revised Drawing
Not downloaded · Council link
EXISTING SIDE ELEVATIONS
Revised Drawing
Not downloaded · Council link
LOCATION PLAN
Drawing
Not downloaded · Council link
PLANNING STATEMENT
Documentation
Not downloaded · Council link
PROPOSED FLOOR AND ROOF PLANS
Revised Drawing
Not downloaded · Council link
PROPOSED FLOOR PLANS
Revised Drawing
Archived copy · Council link
PROPOSED FRONT AND REAR ELEVATIONS
Revised Drawing
Not downloaded · Council link
PROPOSED SIDE ELEVATIONS
Revised Drawing
Not downloaded · Council link